Avico Greentop

Eladó téglalakás
Cegléd, földszint

+ 4 kép 1/7
54 800 000 Ft54.8 M Ft 761 111 Ft/m2
3 szoba
72 m²
földszint
építés éve:2025

Részletes adatok

Fűtés: Egyéb
Emelet: földszint
Energetikai besorolás: Nem adta meg a hirdető

Az OTP Bank lakáshitel ajánlataFizetett hirdetés

+36 70 465
Törökné Varga Rita
referens

Érdekel az OTP Bank kedvezményes lakáshitel ajánlata? *

* A kérdésre „Igen” válasz bejelölése esetén, az „Üzenet küldése” gombra kattintva kijelentem, hogy az OTP Bank Nyrt. Adatkezelési tájékoztatójának tartalmát megismertem és tudomásul vettem.

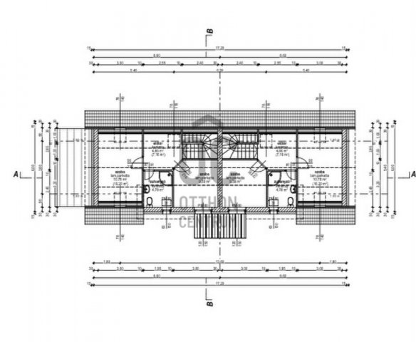
Eladó téglalakás leírása

Az ingatlan jellemzői:
- 72 nm
- lakáson belüli 2 szintes lakás
- nappali-étkező és 2 hálószoba
- jó elosztás
- modern kivitelezés és tervezés
- tégla építés
- saját kert
- társasházi albetétesítés

A tervezett épületre vonatkozó jellemzők:
Falszerkezet
A külső teherhordó falak 30 N+F típusú kerámia falazatok, a külső határoló falak kívülről 15 cm vastag polisztirol hőszigetelést kapnak.
10 cm-es válaszfalak

Épületgépészeti rendszer
Az épület fűtése hőszivattyúval, a padlófűtéssel kerül kialakításra.

Nyílászárók
A beépítésre kerülő ablakok, és külső ajtók műanyag nyílászárók, 3 rétegű hőszigetelt üvegezéssel
Az épületre hagyományos szerkezetű nyeregtető készül

Burkolatok
A szobákban laminált padló. többi helyiség hidegburkolatot kap

Átadás: 2026.02.28.

Irodánkban teljeskörű jogi és bankfüggetlen hiteltanácsadással segítjük vásárlását. CSOK PLUSZ szintén igénybe vehető, mindegyik lakásra.
A hirdetésben szereplő információk a megbízótól kapott adatok alapján készültek, pontosságukért felelősséget nem vállalunk!

Hirdetés feltöltve: 2026. 04. 17.

3 szobás téglalakások ára Cegléden

Ebből az összehasonlításból megtudhatod, hogyan viszonyul a lakás ára a környékbeli téglalakások átlagos árához. Ez nem azt jelenti, hogy ennyivel olcsóbb vagy drágább, mint amennyit a lakás ér, hanem hogy ennyivel tér el a környékbeli átlagtól.

Ennek a m² ára
Cegléd m² ár
761 e Ft
874 e Ft 13%
Ennek az ára
Cegléd átlagár
54.8 M Ft m Ft
63.2 m Ft 13%

Az ingatlan elhelyezkedése

Cím: Cegléd, földszint

Eladó téglalakások a környékről

Göd
Eladó téglalakás

Göd

44.9 M Ft
3 szoba
58 m²
Cegléd
Eladó téglalakás

Cegléd

83.9 M Ft
2 szoba
85 m²
Göd
Eladó téglalakás

Göd

28.9 M Ft
2 szoba
44 m²
Göd
Eladó téglalakás

Göd

32.5 M Ft
2 szoba
44 m²
Cegléd
Eladó téglalakás

Cegléd

89.9 M Ft
4 szoba
87 m²
Cegléd
Eladó téglalakás

Cegléd

75.19 M Ft
4 szoba
77 m²
Göd
Eladó téglalakás

Göd

90 M Ft
2 szoba
44 m²
Cegléd
Eladó téglalakás

Cegléd

42.8 M Ft
2 szoba
66 m²
Cegléd
Eladó téglalakás

Cegléd

55.5 M Ft
3 szoba
86 m²
Göd
Eladó téglalakás

Göd

42.9 M Ft
3 szoba
61 m²
Cegléd
Eladó téglalakás

Cegléd

48.8 M Ft
3 szoba
78 m²
Göd
Eladó téglalakás

Göd

46.5 M Ft
4 szoba
72 m²
Göd
Eladó téglalakás

Göd

66.9 M Ft
4 szoba
94 m²
Cegléd
Eladó téglalakás

Cegléd

68 M Ft
4 szoba
86 m²
Cegléd
Eladó téglalakás

Cegléd

47.85 M Ft
2 szoba
87 m²
Cegléd
Eladó téglalakás

Cegléd

28.8 M Ft
1 + 1 szoba
49 m²
Cegléd
Eladó téglalakás

Cegléd

70.5 M Ft
3 szoba
86 m²
Göd
Eladó téglalakás

Göd

29.5 M Ft
2 szoba
44 m²
Göd
Eladó téglalakás

Göd

27.9 M Ft
2 szoba
43 m²
Cegléd
Eladó téglalakás

Cegléd

77.69 M Ft
4 szoba
87 m²
Göd
Eladó téglalakás

Göd

27.9 M Ft
2 szoba
43 m²
Cegléd
Eladó téglalakás

Cegléd

68 M Ft
5 szoba
86 m²
Göd
Eladó téglalakás

Göd

28.9 M Ft
2 szoba
46 m²
Göd
Eladó téglalakás

Göd

32.5 M Ft
2 szoba
44 m²

Falusi CSOK ingatlanok

Gelse
Eladó családi ház

Gelse

49.9 M Ft
3 szoba
97 m²
Pálfa
Eladó családi ház

Pálfa

26.99 M Ft
3 szoba
90 m²
Isztimér
Eladó családi ház

Isztimér

105 M Ft
6 szoba
138 m²
Balatonszemes
Eladó téglalakás

Balatonszemes

125.2 M Ft
2 szoba
50 m²
Vokány
Eladó családi ház

Vokány

30 M Ft
4 szoba
100 m²
Szőlősgyörök
Eladó családi ház

Szőlősgyörök

29.9 M Ft
3 szoba
85 m²
Letenye
Eladó családi ház

Letenye

31.99 M Ft
3 szoba
105 m²
Bősárkány
Eladó családi ház

Bősárkány

60 M Ft
4 szoba
107 m²