City Pearl

Eladó téglalakás
Cegléd, Családi ház

+ 6 kép 1/9
59 000 000 Ft59 M Ft 842 857 Ft/m2
4 szoba
70 m2
Családi ház
építés éve:2025

Részletes adatok

Telekméret: 100 m2
Fűtés: Egyéb
Emelet: 1. emelet
Parkolás: Kocsibeálló
Közmű: Víz, Gáz, Villany, Csatorna
Energetikai besorolás: A+

Az OTP Bank lakáshitel ajánlataFizetett hirdetés

+36 30 943
Egressi Zsolt (tulajdonos)
Körültekintő Ingatlan - hirdetünk ön helyett!

Érdekel az OTP Bank kedvezményes lakáshitel ajánlata? *

* A kérdésre „Igen” válasz bejelölése esetén, az „Üzenet küldése” gombra kattintva kijelentem, hogy az OTP Bank Nyrt. Adatkezelési tájékoztatójának tartalmát megismertem és tudomásul vettem.

Eladó téglalakás leírása

Az ingatlan közvetlenül a tulajdonostól eladó, elérhetősége: Egressi Zsolt +36309437452

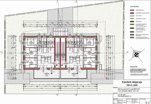
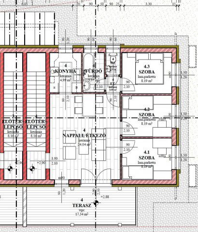
Cegléden, új utcában, új lakóparkban épülő, 4 lakásos társasház 1. emeletén 70 m²-es, 4 szobás, erkélyes (13 nm), kb. 100 nm kizárólagos használatú kerttel és a társasház udvarán belül egy darab, burkolt kocsibeállóval rendelkező tégla lakás eladó.
A lakás nappalija déli fekvésű, a lakás hőszivattyús fűtésű, A+ energetikai besorolású.
Az építkezés folyamatban van, várható átadás: 2025.11.30.

Hirdetés feltöltve: 2026. 01. 04. Utoljára módosítva: 2026. 01. 04.

4 szobás téglalakások ára Cegléden

Ebből az összehasonlításból megtudhatod, hogyan viszonyul a lakás ára a környékbeli téglalakások átlagos árához. Ez nem azt jelenti, hogy ennyivel olcsóbb vagy drágább, mint amennyit a lakás ér, hanem hogy ennyivel tér el a környékbeli átlagtól.

Ennek a m² ára
Cegléd m² ár
843 e Ft
854 e Ft 1%
Ennek az ára
Cegléd átlagár
59 M Ft m Ft
72.9 m Ft 19%

Az ingatlan elhelyezkedése

Cím: Cegléd, Családi ház

Eladó téglalakások a környékről

Eladó téglalakás
Eladó téglalakás

Cegléd

72.799 M Ft
4 szoba
81 m2
Eladó téglalakás
Eladó téglalakás

Cegléd

28.8 M Ft
1 + 1 szoba
49 m2
Eladó téglalakás
Eladó téglalakás

Göd

32.5 M Ft
2 szoba
44 m2
Eladó téglalakás
Eladó téglalakás

Göd

27.9 M Ft
2 szoba
43 m2
Eladó téglalakás
Eladó téglalakás

Cegléd

39.9 M Ft
1 szoba
51 m2
Eladó téglalakás
Eladó téglalakás

Cegléd

55.5 M Ft
3 szoba
86 m2
Eladó téglalakás
Eladó téglalakás

Göd

44.5 M Ft
3 szoba
73 m2
Eladó téglalakás
Eladó téglalakás

Göd

66.9 M Ft
4 szoba
94 m2
Eladó téglalakás
Eladó téglalakás

Göd

27.9 M Ft
2 szoba
43 m2
Eladó téglalakás
Eladó téglalakás

Göd

44.5 M Ft
3 szoba
70 m2
Eladó téglalakás
Eladó téglalakás

Cegléd

68 M Ft
4 szoba
86 m2
Eladó téglalakás
Eladó téglalakás

Cegléd

79.117 M Ft
4 szoba
86 m2
Eladó téglalakás
Eladó téglalakás

Göd

27.9 M Ft
2 szoba
43 m2
Eladó téglalakás
Eladó téglalakás

Göd

90 M Ft
2 szoba
44 m2
Eladó téglalakás
Eladó téglalakás

Göd

44.5 M Ft
3 szoba
69 m2
Eladó téglalakás
Eladó téglalakás

Göd

28.9 M Ft
2 szoba
46 m2
Eladó téglalakás
Eladó téglalakás

Cegléd

68.3 M Ft
5 szoba
86 m2
Eladó téglalakás
Eladó téglalakás

Göd

32.9 M Ft
2 szoba
44 m2
Eladó téglalakás
Eladó téglalakás

Cegléd

22.8 M Ft
2 szoba
49 m2
Eladó téglalakás
Eladó téglalakás

Cegléd

76.257 M Ft
2 szoba
80 m2
Eladó téglalakás
Eladó téglalakás

Göd, Oázis utca

27.9 M Ft
2 szoba
44 m2
Eladó téglalakás
Eladó téglalakás

Göd

42.5 M Ft
3 szoba
65 m2
Eladó téglalakás
Eladó téglalakás

Cegléd

68 M Ft
5 szoba
86 m2
Eladó téglalakás
Eladó téglalakás

Göd

28.9 M Ft
2 szoba
46 m2

Falusi CSOK ingatlanok

Eladó családi ház
Eladó családi ház

Nágocs

72.3 M Ft
4 + 1 szoba
170 m2
Eladó családi ház
Eladó családi ház

Bugac

90 M Ft
5 szoba
230 m2
Eladó családi ház
Eladó családi ház

Boldva

25.99 M Ft
2 szoba
130 m2
Eladó családi ház
Eladó családi ház

Somogyegres

3.9 M Ft
2 szoba
59 m2
Eladó családi ház
Eladó családi ház

Abaújszántó

19.99 M Ft
3 szoba
84 m2
Eladó családi ház
Eladó családi ház

Miháld

39.9 M Ft
5 szoba
101 m2
Eladó családi ház
Eladó családi ház

Lesencetomaj

67.9 M Ft
3 szoba
90 m2
Eladó családi ház
Eladó családi ház

Tiszatenyő

13.99 M Ft
2 szoba
63 m2