Avico Greentop

Eladó téglalakás
Cegléd, földszint

+ 8 kép 1/11
63 500 000 Ft63.5 M Ft 894 366 Ft/m2
4 szoba
71 m2
földszint
építés éve:2025

Részletes adatok

Fűtés: Egyéb
Energetikai besorolás: Nem adta meg a hirdető

Az OTP Bank lakáshitel ajánlataFizetett hirdetés

+36 70 465
Perjési Éva
referens

Érdekel az OTP Bank kedvezményes lakáshitel ajánlata? *

* A kérdésre „Igen” válasz bejelölése esetén, az „Üzenet küldése” gombra kattintva kijelentem, hogy az OTP Bank Nyrt. Adatkezelési tájékoztatójának tartalmát megismertem és tudomásul vettem.

Eladó téglalakás leírása

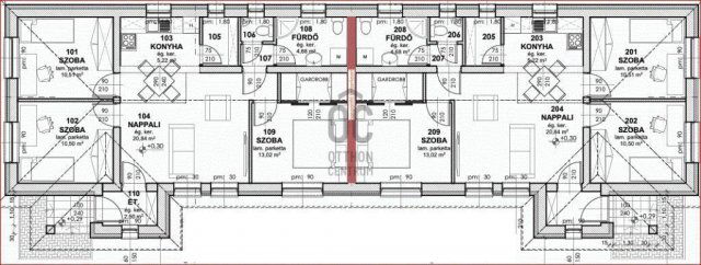
Eladó Cegléden, az Alszegi út közelében egy 2 lakásos társasházban kialakított 71 nm-es lakás.

Az ingatlan műszaki paraméterei:
- Tartó szerkezet:
Az épület alapozása sávalapozással történik, 30 cm vastag viablokk falazat
- Válaszfalak :
10 cm vastag válaszfal téglából készülnek
- Födém szerkezet :
Az épületen fa gerendás födém készül fenyő gerendákkal
- Tetőszerkezet :
Fából készül, hagyományos ács és csavaros kötésekkel, fogópárokkal
- Nyílászáró szerkezetek : műanyag
- Burkolatok :
Meleg padlós helyiségnél laminált parketta, hidegpadlós helyiségeknél kerámia burkolat
- Térburkolat: Viacolor térburkolat készül
- Fűtés: Hőszivattyús fűtés plusz,zárt égésterű gázkazánokkal, radiátoros fűtéssel lesz megoldva
- Parkoló: A telken belül két gépkocsi parkolása megoldott

Elosztása: nappali, konyha + 3 hálószoba

Bővebb információkért keressen bizalommal!
Ne hagyja ki ezt a remek lehetőséget!

Irodánkban teljes körű jogi és bankfüggetlen hiteltanácsadással segítjük vásárlását.
A hirdetésben szereplő információk a megbízótól kapott adatok alapján készültek, pontosságukért felelősséget nem vállalunk!

Hirdetés feltöltve: 2025. 12. 04. Utoljára módosítva: 2025. 12. 04.

4 szobás téglalakások ára Cegléden

Ebből az összehasonlításból megtudhatod, hogyan viszonyul a lakás ára a környékbeli téglalakások átlagos árához. Ez nem azt jelenti, hogy ennyivel olcsóbb vagy drágább, mint amennyit a lakás ér, hanem hogy ennyivel tér el a környékbeli átlagtól.

Ennek a m² ára
Cegléd m² ár
894 e Ft
838 e Ft -7%
Ennek az ára
Cegléd átlagár
63.5 M Ft m Ft
72.8 m Ft 13%

Az ingatlan elhelyezkedése

Cím: Cegléd, földszint

Eladó téglalakások a környékről

Eladó téglalakás
Eladó téglalakás

Göd

27.9 M Ft
2 szoba
43 m2
Eladó téglalakás
Eladó téglalakás

Göd

42.5 M Ft
3 szoba
65 m2
Eladó téglalakás
Eladó téglalakás

Cegléd

28.8 M Ft
1 + 1 szoba
49 m2
Eladó téglalakás
Eladó téglalakás

Göd

44.5 M Ft
3 szoba
73 m2
Eladó téglalakás
Eladó téglalakás

Cegléd

87.999 M Ft
2 szoba
93 m2
Eladó téglalakás
Eladó téglalakás

Göd

44.9 M Ft
3 szoba
58 m2
Eladó téglalakás
Eladó téglalakás

Cegléd

76.1 M Ft
3 szoba
87 m2
Eladó téglalakás
Eladó téglalakás

Göd

27.9 M Ft
2 szoba
43 m2
Eladó téglalakás
Eladó téglalakás

Göd

29.5 M Ft
2 szoba
47 m2
Eladó téglalakás
Eladó téglalakás

Cegléd

42 M Ft
3 szoba
87 m2
Eladó téglalakás
Eladó téglalakás

Cegléd

72.789 M Ft
2 szoba
77 m2
Eladó téglalakás
Eladó téglalakás

Cegléd

68 M Ft
4 szoba
86 m2
Eladó téglalakás
Eladó téglalakás

Göd

28.9 M Ft
2 szoba
44 m2
Eladó téglalakás
Eladó téglalakás

Göd

42.9 M Ft
3 szoba
61 m2
Eladó téglalakás
Eladó téglalakás

Cegléd

64 M Ft
1 szoba
62 m2
Eladó téglalakás
Eladó téglalakás

Göd

66.9 M Ft
4 szoba
94 m2
Eladó téglalakás
Eladó téglalakás

Cegléd

47.85 M Ft
2 szoba
87 m2
Eladó téglalakás
Eladó téglalakás

Cegléd

42.8 M Ft
2 szoba
66 m2
Eladó téglalakás
Eladó téglalakás

Cegléd

72.799 M Ft
4 szoba
81 m2
Eladó téglalakás
Eladó téglalakás

Cegléd

38.9 M Ft
3 szoba
67 m2
Eladó téglalakás
Eladó téglalakás

Cegléd

68 M Ft
5 szoba
86 m2
Eladó téglalakás
Eladó téglalakás

Göd

44.5 M Ft
3 szoba
69 m2
Eladó téglalakás
Eladó téglalakás

Cegléd

66.8 M Ft
3 szoba
86 m2
Eladó téglalakás
Eladó téglalakás

Göd

44.5 M Ft
3 szoba
70 m2

Falusi CSOK ingatlanok

Eladó családi ház
Eladó családi ház

Vásárosdombó

14.99 M Ft
2 szoba
69 m2
Eladó családi ház
Eladó családi ház

Jakabszállás

320 M Ft
15 szoba
665 m2
Eladó családi ház
Eladó családi ház

Fertőd

189.9 M Ft
4 szoba
175 m2
Eladó családi ház
Eladó családi ház

Besnyő

99 M Ft
6 szoba
189 m2
Eladó családi ház
Eladó családi ház

Győrság

93.6 M Ft
5 szoba
122 m2
Eladó családi ház
Eladó családi ház

Magyarszék

48.5 M Ft
3 + 1 szoba
86 m2
Eladó családi ház
Eladó családi ház

Balatonberény, Kodály Zotán utca 34

61.9 M Ft
4 + 1 szoba
95 m2
Eladó családi ház
Eladó családi ház

Gáborján

5.5 M Ft
2 szoba
68 m2