River Life

Eladó téglalakás
Budapest, XXIII. kerület, 1. emelet

+ 14 kép 1/17
109 500 000 Ft109.5 M Ft 1 520 833 Ft/m2
3 szoba
72 m²
1. emelet
építés éve:2026

Részletes adatok

Fűtés: Egyéb
Emelet: 1. emelet
Parkolás: Kocsibeálló
Energetikai besorolás: Nem adta meg a hirdető

Az OTP Bank lakáshitel ajánlataFizetett hirdetés

+36 30 397
Göbölyös Ágnes
referens

Érdekel az OTP Bank kedvezményes lakáshitel ajánlata? *

* A kérdésre „Igen” válasz bejelölése esetén, az „Üzenet küldése” gombra kattintva kijelentem, hogy az OTP Bank Nyrt. Adatkezelési tájékoztatójának tartalmát megismertem és tudomásul vettem.

Eladó téglalakás leírása

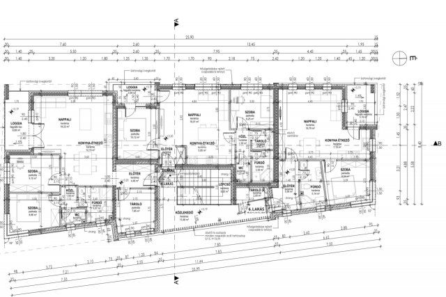
Eladó egy új építésű, összesen 6 lakásból álló társasház valamennyi lakása.

Az ingatlan Soroksár új kertvárosi lakóparkjában, csendes, családbarát környezetben található, ahol a nyugodt életvitel és a jó városi elérhetőség harmonikusan találkozik.

A város zajától távol, mégis kiváló infrastruktúrával rendelkezik: üzletek, szolgáltatások és tömegközlekedés könnyen elérhetők.

A Soroksári kiserdő és a Duna közelsége különleges, természetközeli hangulatot biztosít, amely valódi otthonérzetet nyújt a leendő tulajdonosok számára.

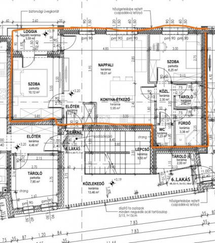
4. lakás: 69 nm, Emeleti,
- előtér,
- tároló,
- 2 szoba,
- Amerikai konyha, étkező,
- nappali,
- Fürdő
- Wc,
- közlekedő
- Erkély 7nm.
- 109.500.000 Ft

További lakások az emeleten:
5. lakás: 82.750.000 Ft

MŰSZAKI TARTALOM

Szerkezet és szigetelés
• ProKoncept rendszerű falazat (25–35 cm vastagság)
• 15 cm vastag grafitos hőszigetelés a homlokzaton
• Lábazati és koszorú előtti hőszigetelés
• Talajnedvesség elleni bitumenes szigetelés
• Kiemelkedő hő- és hangszigetelési tulajdonságok

Tető
• Égetett agyag cserépfedés
• Alacsony hajlásszögű tetőrészeken korcolt fémlemez fedés
• Tartós, időjárásálló szerkezeti kialakítás

Nyílászárók
• Műanyag nyílászárók, 3 rétegű hőszigetelő üvegezéssel
• Jó hő- és hangszigetelési értékek
• Teraszajtók szintén 3 rétegű üvegezéssel

Fűtés – gépészet
• Levegő–víz hőszivattyús fűtési rendszer
• Felületfűtés (padlófűtés)
• Elektromos bojleres melegvíz-ellátás

Energia & jövőállóság
• Energiatakarékos, korszerű műszaki megoldások
• Napelem későbbi kiépítésének lehetősége
• Elektromos autó töltés előkészítése

Burkolatok, belső kialakítás
• Gipszkarton álmennyezet
• Burkolatok magas minőségben, választható kivitelben

Parkolás, környezet
• Telken belüli parkolás
• Minden lakáshoz saját autóbeálló
• Földszinti lakásokhoz saját kis kert
• Aszfaltozott utca, kiépített közművek

Az elkészült lakások lakhatási engedéllyel kerülnek átadásra!!!
Tervezett átadás: 2026. év vége!

Ütemezés: 20% foglaló, a fennmaradó összeg megbeszélés alapján.

Az ingatlan 3%-os Otthon Start hitellel is megvásárolható.

Irodánk 30 éves szakmai tapasztalattal áll ügyfelei rendelkezésére!
Bankfüggetlen hitelcentrummal, jogi hátérrel segítjük ingatlanvásárlását!
Várom szíves megkeresését, hívjon bizalommal! ...TOVÁBBI, TÖBBEZRES INGATLAN KÍNÁLAT: www.gdn-ingatlan.hu - GDN azonosító: 392884

Hirdetés feltöltve: 2026. 02. 22. Utoljára módosítva: 2026. 04. 01.

3 szobás téglalakások ára Budapesten

Ebből az összehasonlításból megtudhatod, hogyan viszonyul a lakás ára a környékbeli téglalakások átlagos árához. Ez nem azt jelenti, hogy ennyivel olcsóbb vagy drágább, mint amennyit a lakás ér, hanem hogy ennyivel tér el a környékbeli átlagtól.

Ennek a m² ára
XXIII. kerület m² ár
Budapest m² ár
1521 e Ft
1225 e Ft -24%
1706 e Ft 11%
Ennek az ára
XXIII. kerület átlagár
Budapest átlagár
109.5 M Ft m Ft
83.5 m Ft -31%
131.2 m Ft 17%

Az ingatlan elhelyezkedése

Cím: Budapest, XXIII. kerület, 1. emelet

Eladó ingatlanok a környékről

XI. kerület, Kőérberek, Kánai út 31
Eladó téglalakás

Budapest, XI. kerület

160.99 M Ft
3 szoba
74 m²
XI. kerület, Kőérberek, Kánai út 31
Eladó téglalakás

Budapest, XI. kerület

148.49 M Ft
3 szoba
69 m²
XXIII. kerület
Eladó téglalakás

Budapest, XXIII. kerület

85 M Ft
3 szoba
84 m²
XXIII. kerület
Eladó téglalakás

Budapest, XXIII. kerület

58 M Ft
2 szoba
40 m²
XXIII. kerület
Eladó téglalakás

Budapest, XXIII. kerület

89 M Ft
2 + 2 szoba
90 m²
XXIII. kerület
Eladó téglalakás

Budapest, XXIII. kerület

66.9 M Ft
3 szoba
90 m²
XXIII. kerület
Eladó téglalakás

Budapest, XXIII. kerület

89 M Ft
2 + 2 szoba
90 m²
XI. kerület, Kőérberek, Kánai út 31
Eladó téglalakás

Budapest, XI. kerület

179.99 M Ft
4 szoba
88 m²
XXIII. kerület
Eladó téglalakás

Budapest, XXIII. kerület

89 M Ft
2 + 2 szoba
90 m²
XI. kerület, Kőérberek, Kánai út 31
Eladó téglalakás

Budapest, XI. kerület

135.49 M Ft
3 szoba
65 m²
XXIII. kerület
Eladó téglalakás

Budapest, XXIII. kerület

54.9 M Ft
2 szoba
70 m²
XXIII. kerület
Eladó téglalakás

Budapest, XXIII. kerület

54.9 M Ft
2 szoba
70 m²
XXIII. kerület
Eladó téglalakás

Budapest, XXIII. kerület

69.9 M Ft
3 szoba
87 m²
XXIII. kerület
Eladó téglalakás

Budapest, XXIII. kerület

58 M Ft
2 szoba
40 m²
VIII. kerület, Józsefváros, Népszínház utca 38
Eladó téglalakás

Budapest, VIII. kerület

159.99 M Ft
7 szoba
176 m²
XXIII. kerület
Eladó téglalakás

Budapest, XXIII. kerület

64.9 M Ft
2 szoba
62 m²
XXIII. kerület
Eladó téglalakás

Budapest, XXIII. kerület

38 M Ft
2 szoba
38 m²
II. kerület
Eladó családi ház

Budapest, II. kerület

750 M Ft
7 + 1 szoba
550 m²
XI. kerület, Kőérberek, Kánai út 31
Eladó téglalakás

Budapest, XI. kerület

121.99 M Ft
3 szoba
61 m²
XI. kerület, Kőérberek, Kánai út 31
Eladó téglalakás

Budapest, XI. kerület

117.49 M Ft
3 szoba
63 m²
III. kerület
Eladó panellakás

Budapest, III. kerület

82.5 M Ft
1 + 2 szoba
55 m²
XI. kerület, Kőérberek, Kánai út 31
Eladó téglalakás

Budapest, XI. kerület

204.99 M Ft
4 szoba
85 m²
III. kerület
Eladó panellakás

Budapest, III. kerület

69.9 M Ft
2 szoba
50 m²
XI. kerület, Kőérberek, Kánai út 31
Eladó téglalakás

Budapest, XI. kerület

125.99 M Ft
3 szoba
63 m²

Falusi CSOK ingatlanok

Szigetbecse
Eladó családi ház

Szigetbecse

59 M Ft
3 szoba
70 m²
Bácsbokod
Eladó családi ház

Bácsbokod

55 M Ft
6 szoba
250 m²
Ádánd
Eladó családi ház

Ádánd

74.99 M Ft
5 szoba
150 m²
Sződ
Eladó családi ház

Sződ

116 M Ft
5 szoba
136 m²
Nagykarácsony
Eladó családi ház

Nagykarácsony

34.9 M Ft
3 szoba
112 m²
Pannonhalma
Eladó téglalakás

Pannonhalma

68 M Ft
4 szoba
153 m²
Fonyód
Eladó téglalakás

Fonyód

175 M Ft
3 szoba
79 m²
Onga
Eladó családi ház

Onga

81.9 M Ft
4 szoba
109 m²