Astora Márvány8

Eladó téglalakás
Budapest, XXIII. kerület, 1. emelet

+ 10 kép 1/13
77 575 000 Ft77.575 M Ft 1 463 679 Ft/m2
3 szoba
53 m²
1. emelet
építés éve:2026

Részletes adatok

Fűtés: Egyéb
Emelet: 1. emelet
Parkolás: Kocsibeálló
Energetikai besorolás: Nem adta meg a hirdető

Az OTP Bank lakáshitel ajánlataFizetett hirdetés

+36 30 397
Göbölyös Ágnes
referens

Érdekel az OTP Bank kedvezményes lakáshitel ajánlata? *

* A kérdésre „Igen” válasz bejelölése esetén, az „Üzenet küldése” gombra kattintva kijelentem, hogy az OTP Bank Nyrt. Adatkezelési tájékoztatójának tartalmát megismertem és tudomásul vettem.

Eladó téglalakás leírása

Eladó egy új építésű, összesen 6 lakásból álló társasház valamennyi lakása.

Az ingatlan Soroksár új kertvárosi lakóparkjában, csendes, családbarát környezetben található, ahol a nyugodt életvitel és a jó városi elérhetőség harmonikusan találkozik.

A város zajától távol, mégis kiváló infrastruktúrával rendelkezik: üzletek, szolgáltatások és tömegközlekedés könnyen elérhetők.

A Soroksári kiserdő és a Duna közelsége különleges, természetközeli hangulatot biztosít, amely valódi otthonérzetet nyújt a leendő tulajdonosok számára.

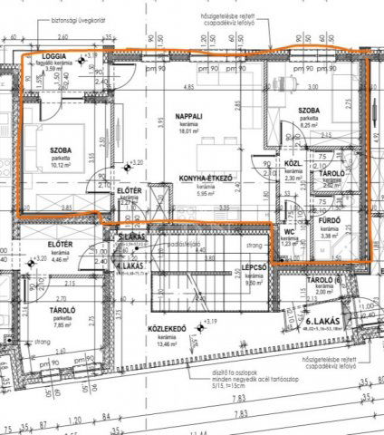
A meghirdetett lakás:
5. lakás:
- Emelet,
- 53,5 nm,
- 2 szoba,
- Amerikai konyhás nappali,
- Fürdő-Wc,
- Kamra,
- Erkély 3,7nm.
- 77.575.000 Ft

1. lakás:
- Földszint,
- 108.750.000 Ft

2. lakás:
- Földszint,
- 65.250.000 Ft

3. lakás:
- Földszint,
- 69.600.000 Ft

4. lakás:
- Emelet,
- 100.050.000 Ft

6. lakás:
- Emelet,
- 69.600.000 Ft

MŰSZAKI TARTALOM

Szerkezet és szigetelés
• ProKoncept rendszerű falazat (25–35 cm vastagság)
• 15 cm vastag grafitos hőszigetelés a homlokzaton
• Lábazati és koszorú előtti hőszigetelés
• Talajnedvesség elleni bitumenes szigetelés
• Kiemelkedő hő- és hangszigetelési tulajdonságok

Tető
• Égetett agyag cserépfedés
• Alacsony hajlásszögű tetőrészeken korcolt fémlemez fedés
• Tartós, időjárásálló szerkezeti kialakítás

Nyílászárók
• Műanyag nyílászárók, 3 rétegű hőszigetelő üvegezéssel
• Jó hő- és hangszigetelési értékek
• Teraszajtók szintén 3 rétegű üvegezéssel

Fűtés – gépészet
• Levegő–víz hőszivattyús fűtési rendszer
• Felületfűtés (padlófűtés)
• Elektromos bojleres melegvíz-ellátás

Energia & jövőállóság
• Energiatakarékos, korszerű műszaki megoldások
• Napelem későbbi kiépítésének lehetősége
• Elektromos autó töltés előkészítése

Burkolatok, belső kialakítás
• Gipszkarton álmennyezet
• Burkolatok magas minőségben, választható kivitelben

Parkolás, környezet
• Telken belüli parkolás
• Minden lakáshoz saját autóbeálló
• Földszinti lakásokhoz saját kis kert
• Aszfaltozott utca, kiépített közművek

Az elkészült lakások lakhatási engedéllyel kerülnek átadásra!!!
Tervezett átadás: 2026. év vége!

Ütemezés: 20% foglaló, a fennmaradó összeg megbeszélés alapján.

Az ingatlan 3%-os Otthon Start hitellel is megvásárolható.

Irodánk 30 éves szakmai tapasztalattal áll ügyfelei rendelkezésére!
Bankfüggetlen hitelcentrummal, jogi hátérrel segítjük ingatlanvásárlását!
Várom szíves megkeresését, hívjon bizalommal! ...TOVÁBBI, TÖBBEZRES INGATLAN KÍNÁLAT: www.gdn-ingatlan.hu - GDN azonosító: 392600

Hirdetés feltöltve: 2026. 02. 13. Utoljára módosítva: 2026. 02. 13.

3 szobás téglalakások ára Budapesten

Ebből az összehasonlításból megtudhatod, hogyan viszonyul a lakás ára a környékbeli téglalakások átlagos árához. Ez nem azt jelenti, hogy ennyivel olcsóbb vagy drágább, mint amennyit a lakás ér, hanem hogy ennyivel tér el a környékbeli átlagtól.

Ennek a m² ára
XXIII. kerület m² ár
Budapest m² ár
1464 e Ft
1188 e Ft -23%
1700 e Ft 14%
Ennek az ára
XXIII. kerület átlagár
Budapest átlagár
77.575 M Ft m Ft
80.3 m Ft 3%
131.5 m Ft 41%

Az ingatlan elhelyezkedése

Cím: Budapest, XXIII. kerület, 1. emelet

Eladó ingatlanok a környékről

XXIII. kerület
Eladó téglalakás

Budapest, XXIII. kerület

85 M Ft
3 szoba
84 m²
XXIII. kerület
Eladó téglalakás

Budapest, XXIII. kerület

85 M Ft
3 szoba
84 m²
X. kerület
Eladó panellakás

Budapest, X. kerület

54.9 M Ft
2 szoba
42 m²
XXIII. kerület
Eladó téglalakás

Budapest, XXIII. kerület

89 M Ft
2 + 2 szoba
90 m²
XXIII. kerület
Eladó téglalakás

Budapest, XXIII. kerület

58 M Ft
2 szoba
40 m²
XXIII. kerület
Eladó téglalakás

Budapest, XXIII. kerület

79.9 M Ft
3 szoba
87 m²
XII. kerület, Virányos
Eladó téglalakás

Budapest, XII. kerület

213.045 M Ft
2 szoba
59 m²
XXIII. kerület
Eladó téglalakás

Budapest, XXIII. kerület

38 M Ft
2 szoba
38 m²
XXIII. kerület
Eladó téglalakás

Budapest, XXIII. kerület

65.25 M Ft
2 szoba
52 m²
XXIII. kerület
Eladó téglalakás

Budapest, XXIII. kerület

89 M Ft
2 + 2 szoba
90 m²
XXIII. kerület, Soroksár
Eladó téglalakás

Budapest, XXIII. kerület

74.9 M Ft
3 szoba
107 m²
XXIII. kerület
Eladó téglalakás

Budapest, XXIII. kerület

85 M Ft
3 szoba
84 m²
XI. kerület, Kelenföld
Eladó téglalakás

Budapest, XI. kerület

78.675 M Ft
2 szoba
51 m²
X. kerület
Eladó téglalakás

Budapest, X. kerület

22.7 M Ft
1 szoba
25 m²
III. kerület
Eladó téglalakás

Budapest, III. kerület

143.5 M Ft
2 szoba
73 m²
XXIII. kerület, Soroksár
Eladó téglalakás

Budapest, XXIII. kerület

66.9 M Ft
3 szoba
90 m²
XXIII. kerület
Eladó téglalakás

Budapest, XXIII. kerület

89 M Ft
2 + 2 szoba
90 m²
XI. kerület
Eladó panellakás

Budapest, XI. kerület

92 M Ft
1 + 2 szoba
68 m²
XXIII. kerület, Soroksár, Grassalkovich út
Eladó téglalakás

Budapest, XXIII. kerület

66.9 M Ft
3 szoba
90 m²
XXIII. kerület, Soroksár
Eladó téglalakás

Budapest, XXIII. kerület

54.9 M Ft
2 szoba
70 m²
III. kerület
Eladó ikerház

Budapest, III. kerület

206.9 M Ft
5 + 1 szoba
162 m²
XVIII. kerület
Eladó téglalakás

Budapest, XVIII. kerület

64.99 M Ft
2 szoba
49 m²
XXIII. kerület
Eladó téglalakás

Budapest, XXIII. kerület

58 M Ft
2 szoba
40 m²
XIV. kerület
Eladó téglalakás

Budapest, XIV. kerület

73.9 M Ft
2 szoba
50 m²

Falusi CSOK ingatlanok

Románd
Eladó családi ház

Románd

49.9 M Ft
3 szoba
100 m²
Újszilvás
Eladó családi ház

Újszilvás

38 M Ft
3 szoba
100 m²
Szalánta
Eladó családi ház

Szalánta

149.9 M Ft
10 szoba
301 m²
Vásárosdombó
Eladó családi ház

Vásárosdombó

14.99 M Ft
2 szoba
69 m²
Perkáta
Eladó családi ház

Perkáta

62.4 M Ft
5 szoba
120 m²
Balatonakali
Eladó ikerház

Balatonakali

129 M Ft
4 szoba
145 m²
Győrság
Eladó családi ház

Győrság

89.9 M Ft
4 szoba
92 m²
Tabdi
Eladó családi ház

Tabdi

95 M Ft
45 szoba
1490 m²