Metrodom

Eladó téglalakás
Budapest, XXI. kerület, Ikerház

+ 11 kép 1/14
73 500 000 Ft73.5 M Ft 1 080 882 Ft/m2
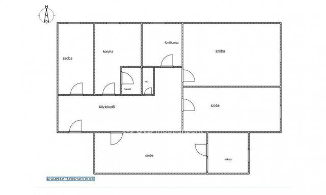
2 + 2 szoba
68 m2
Ikerház
építés éve:1983

Részletes adatok

Állapot: Felújított
Fűtés: Gázkonvektor
Emelet: 2. emelet
Energetikai besorolás: A

Az OTP Bank lakáshitel ajánlataFizetett hirdetés

+36 20 461
Dsugán Béla
Terc Kft.

Érdekel az OTP Bank kedvezményes lakáshitel ajánlata? *

* A kérdésre „Igen” válasz bejelölése esetén, az „Üzenet küldése” gombra kattintva kijelentem, hogy az OTP Bank Nyrt. Adatkezelési tájékoztatójának tartalmát megismertem és tudomásul vettem.

Eladó téglalakás leírása

Tágas, azonnal költözhető otthon Csepel központközeli részén ideális családoknak!
Csepel kedvelt, központhoz közeli részén eladó egy 68 m2-es, kiváló elosztású lakás, amely tökéletes választás lehet családok számára.
Az ingatlan 2 szobával és 2 félszobával rendelkezik, így kényelmes életteret biztosít akár több gyermekes családnak is, vagy otthoni munkavégzéshez.
A lakás egy 4 emeletes, rendezett társasház 2. emeletén található.
Tehermentes, üres, azonnal költözhető, így nincs várakozás ? akár azonnal birtokba vehető.
Főbb jellemzők:
68 m2 lakóterület
2 szoba + 2 félszoba
Műanyag nyílászárók redőnnyel
1 db klímaberendezés
Parkettás szobák, a többi helyiség járólapos
Frissen festett helyiségek
Konvektoros, egyedi fűtés
Külön vízóra alacsony rezsi
Csendes, világos lakás
Elhelyezkedés:
A lakás kiváló lokációval rendelkezik: közel található Csepel központja, piac, pláza, üzletek, óvoda, iskola.
A közlekedés kiváló, több buszmegálló pár perc sétára elérhető.
Parkolás az utcán, a ház előtt ingyenes, ami nagy előny a családok számára.
Ez az ingatlan ideális választás azoknak, akik praktikus elosztású, azonnal költözhető, jó környéken lévő otthont keresnek Csepelen.

Referencia szám: M320267

Hirdetés feltöltve: 2026. 01. 14. Utoljára módosítva: 2026. 01. 14.

4 szobás téglalakások ára Budapesten

Ebből az összehasonlításból megtudhatod, hogyan viszonyul a lakás ára a környékbeli téglalakások átlagos árához. Ez nem azt jelenti, hogy ennyivel olcsóbb vagy drágább, mint amennyit a lakás ér, hanem hogy ennyivel tér el a környékbeli átlagtól.

Ennek a m² ára
XXI. kerület m² ár
Budapest m² ár
1081 e Ft
1053 e Ft -3%
1758 e Ft 39%
Ennek az ára
XXI. kerület átlagár
Budapest átlagár
73.5 M Ft m Ft
86 m Ft 15%
183.9 m Ft 60%

Az ingatlan elhelyezkedése

Cím: Budapest, XXI. kerület, Ikerház

Eladó ingatlanok a környékről

Eladó téglalakás
Eladó téglalakás

III. kerület, Óbuda, Szomolnok utca

89.9 M Ft
2 + 2 szoba
96 m2
Eladó téglalakás
Eladó téglalakás

XXI. kerület

49.9 M Ft
1 szoba
36 m2
Eladó téglalakás
Eladó téglalakás

VII. kerület, Belső Erzsébetváros, Rózsa utca

170 M Ft
5 szoba
124 m2
Eladó téglalakás
Eladó téglalakás

XXI. kerület

112 M Ft
4 szoba
102 m2
Eladó téglalakás
Eladó téglalakás

XXI. kerület

29.9 M Ft
1 szoba
25 m2
Eladó téglalakás
Eladó téglalakás

XIV. kerület, Barack utca 16

154.629 M Ft
3 + 1 szoba
92 m2
Eladó téglalakás
Eladó téglalakás

XIV. kerület, Barack utca 16

111.539 M Ft
2 + 1 szoba
65 m2
Eladó téglalakás
Eladó téglalakás

XXI. kerület

29.9 M Ft
1 szoba
25 m2
Eladó téglalakás
Eladó téglalakás

XXI. kerület, Csillagtelep

79.9 M Ft
4 szoba
112 m2
Eladó téglalakás
Eladó téglalakás

XXI. kerület, Gyártelep, Motorkerékpár utca

30 M Ft
1 szoba
36 m2
Eladó téglalakás
Eladó téglalakás

XXI. kerület

86.6 M Ft
3 szoba
70 m2
Eladó téglalakás
Eladó téglalakás

XIV. kerület, Barack utca 16

93.392 M Ft
2 + 1 szoba
67 m2
Eladó téglalakás
Eladó téglalakás

VII. kerület, Belső Erzsébetváros, Erzsébet körút

160 M Ft
3 szoba
88 m2
Eladó téglalakás
Eladó téglalakás

XXI. kerület, Csepel belváros, Kossuth

57.5 M Ft
2 szoba
53 m2
Eladó téglalakás
Eladó téglalakás

XXI. kerület

34 M Ft
2 szoba
48 m2
Eladó téglalakás
Eladó téglalakás

XIV. kerület, Barack utca 16

96.655 M Ft
2 + 1 szoba
65 m2
Eladó téglalakás
Eladó téglalakás

XIV. kerület, Barack utca 16

129.805 M Ft
3 + 1 szoba
92 m2
Eladó téglalakás
Eladó téglalakás

V. kerület, Belváros, Petőfi Sándor utca

134 M Ft
2 szoba
59 m2
Eladó téglalakás
Eladó téglalakás

XXI. kerület

29.9 M Ft
1 szoba
25 m2
Eladó téglalakás
Eladó téglalakás

XXI. kerület, Csillagtelep

59.99 M Ft
2 szoba
45 m2
Eladó téglalakás
Eladó téglalakás

XIV. kerület, Barack utca 16

96.649 M Ft
2 + 1 szoba
65 m2
Eladó téglalakás
Eladó téglalakás

VI. kerület, Külső Terézváros, Szív utca

119.5 M Ft
3 szoba
94 m2
Eladó téglalakás
Eladó téglalakás

XIV. kerület, Barack utca 16

129.734 M Ft
3 + 1 szoba
92 m2
Eladó téglalakás
Eladó téglalakás

XIV. kerület, Barack utca 16

93.73 M Ft
2 + 1 szoba
68 m2

Falusi CSOK ingatlanok

Eladó családi ház
Eladó családi ház

Szentistván

22.5 M Ft
2 + 1 szoba
120 m2
Eladó családi ház
Eladó családi ház

Csurgó

23.5 M Ft
4 szoba
80 m2
Eladó családi ház
Eladó családi ház

Herend

119.6 M Ft
5 szoba
108 m2
Eladó családi ház
Eladó családi ház

Perkáta

62.4 M Ft
5 szoba
120 m2
Eladó családi ház
Eladó családi ház

Őriszentpéter

29.8 M Ft
1 szoba
44 m2
Eladó családi ház
Eladó családi ház

Kenyeri

39.9 M Ft
3 szoba
94 m2
Eladó családi ház
Eladó családi ház

Nagybörzsöny

79.9 M Ft
4 szoba
149 m2
Eladó családi ház
Eladó családi ház

Bakonya

38.5 M Ft
2 szoba
75 m2