Aerogate Homes

Eladó téglalakás
Budapest, XX. kerület, földszint

+ 7 kép 1/10
56 900 000 Ft56.9 M Ft 1 161 224 Ft/m2
1 + 1 szoba
49 m²
földszint
építés éve:1980

Részletes adatok

Fűtés: Gázkazán
Emelet: földszint
Energetikai besorolás: Nem adta meg a hirdető

Az OTP Bank lakáshitel ajánlataFizetett hirdetés

+36 20 223
Csukárdi Zsolt
OTP Ingatlanpont XV. kerület

Érdekel az OTP Bank kedvezményes lakáshitel ajánlata? *

* A kérdésre „Igen” válasz bejelölése esetén, az „Üzenet küldése” gombra kattintva kijelentem, hogy az OTP Bank Nyrt. Adatkezelési tájékoztatójának tartalmát megismertem és tudomásul vettem.

Eladó téglalakás leírása

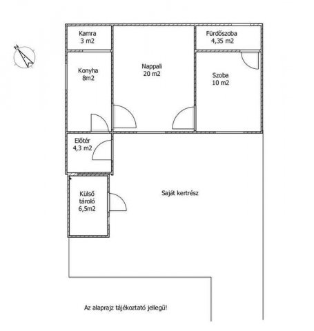
Eladó Budapest, XX., Pesterzsébet nagyon jó közlekedésű, kertvárosias részén br. 63, nettó 49 nm-es, másfél szobás, részben már felújított önálló kis ház. Az ingatlan saját, külön leválasztott bejárattal, kizárólagos használatú kertrésszel rendelkezik. Jelenleg osztatlan közös tulajdon még használati megállapodással, de tavaly júniusban már be lett adva a Földhivatalhoz a társasházzá való nyilvánítási kérelem, az albetétesítés. Felújításra és szigetelésre került a tető, a teljes villanyvezeték hálózat, a külső nyílászárók, belső melegburkolatok. A ház 10 cm-es dryvit szigetelést is kapott. A kert rendezett, új térburkolatos járda került kialakításra. A fürdőszoba még felújítandó - ez már az új tulajdonosra vár!
Kellemes otthon alakítható ki fiatalok, újrakezdők, kis családosok számára. A közelben, sétatávolságra kisboltok, piac, cukrászda, gyógyszertár, iskolák, ovi, bölcsi...
Kiváló közlekedéssel rendelkezik: az 52-es és 2B villamos közvetlen közelségben, a 36, 136, 123, 224, 224E, 966, és 923-as buszok pár perc sétával elérhetők.
Ügyfeleink számára teljes körű ügyintézéssel állunk rendelkezésre. Kínálatunkból választott ingatlan finanszírozásához kedvezményes hitelmegoldásokat kínálunk, illetve az adásvételi szerződés megkötéséhez megbízható ügyvédi közreműködést is tudunk biztosítani!
Ha hirdetésünk felkeltette érdeklődését, kérem hívjon bizalommal a hét bármely napján!

Hirdetés feltöltve: 2026. 04. 08. Utoljára módosítva: 2026. 04. 09.

2 szobás téglalakások ára Budapesten

Ebből az összehasonlításból megtudhatod, hogyan viszonyul a lakás ára a környékbeli téglalakások átlagos árához. Ez nem azt jelenti, hogy ennyivel olcsóbb vagy drágább, mint amennyit a lakás ér, hanem hogy ennyivel tér el a környékbeli átlagtól.

Ennek a m² ára
XX. kerület m² ár
Budapest m² ár
1161 e Ft
1116 e Ft -4%
1692 e Ft 31%
Ennek az ára
XX. kerület átlagár
Budapest átlagár
56.9 M Ft m Ft
61.5 m Ft 8%
88.8 m Ft 36%

Az ingatlan elhelyezkedése

Cím: Budapest, XX. kerület, földszint

Eladó ingatlanok a környékről

XX. kerület
Eladó téglalakás

Budapest, XX. kerület

107 M Ft
4 szoba
87 m²
XX. kerület, Erzsébetfalva, Jókai Mór utca
Eladó téglalakás

Budapest, XX. kerület

75 M Ft
2 szoba
68 m²
XI. kerület, Kőérberek, Kánai út 31
Eladó téglalakás

Budapest, XI. kerület

90.99 M Ft
2 szoba
46 m²
XI. kerület, Kőérberek, Kánai út 31
Eladó téglalakás

Budapest, XI. kerület

246.99 M Ft
4 szoba
100 m²
XX. kerület
Eladó téglalakás

Budapest, XX. kerület

73 M Ft
3 szoba
61 m²
XI. kerület, Kőérberek, Kánai út 31
Eladó téglalakás

Budapest, XI. kerület

96.49 M Ft
2 szoba
45 m²
XX. kerület
Eladó téglalakás

Budapest, XX. kerület

73 M Ft
3 szoba
67 m²
XX. kerület
Eladó téglalakás

Budapest, XX. kerület

99.9 M Ft
659 m²
452 m²
XI. kerület, Kőérberek, Kánai út 31
Eladó téglalakás

Budapest, XI. kerület

125.49 M Ft
3 szoba
61 m²
XI. kerület, Kőérberek, Kánai út 31
Eladó téglalakás

Budapest, XI. kerület

204.99 M Ft
4 szoba
85 m²
XI. kerület, Kőérberek, Kánai út 31
Eladó téglalakás

Budapest, XI. kerület

254.99 M Ft
5 szoba
118 m²
XX. kerület
Eladó téglalakás

Budapest, XX. kerület

85 M Ft
3 szoba
70 m²
XI. kerület, Kőérberek, Kánai út 31
Eladó téglalakás

Budapest, XI. kerület

121.99 M Ft
3 szoba
61 m²
XI. kerület, Kőérberek, Kánai út 31
Eladó téglalakás

Budapest, XI. kerület

129.99 M Ft
3 szoba
60 m²
XI. kerület, Kőérberek, Kánai út 31
Eladó téglalakás

Budapest, XI. kerület

179.99 M Ft
4 szoba
88 m²
XI. kerület, Kőérberek, Kánai út 31
Eladó téglalakás

Budapest, XI. kerület

121.49 M Ft
3 szoba
63 m²
XI. kerület, Kőérberek, Kánai út 31
Eladó téglalakás

Budapest, XI. kerület

170.99 M Ft
4 szoba
88 m²
XX. kerület
Eladó téglalakás

Budapest, XX. kerület

79 M Ft
3 szoba
66 m²
XX. kerület
Eladó téglalakás

Budapest, XX. kerület

148 M Ft
4 szoba
126 m²
XI. kerület, Kőérberek, Kánai út 31
Eladó téglalakás

Budapest, XI. kerület

156.49 M Ft
4 szoba
90 m²
XI. kerület, Kőérberek, Kánai út 31
Eladó téglalakás

Budapest, XI. kerület

88.49 M Ft
2 szoba
46 m²
XI. kerület, Kőérberek, Kánai út 31
Eladó téglalakás

Budapest, XI. kerület

101.99 M Ft
2 szoba
49 m²
XI. kerület, Kőérberek, Kánai út 31
Eladó téglalakás

Budapest, XI. kerület

160.99 M Ft
3 szoba
74 m²
XX. kerület
Eladó téglalakás

Budapest, XX. kerület

45 M Ft
2 szoba
65 m²

Falusi CSOK ingatlanok

Balatonszemes
Eladó téglalakás

Balatonszemes

129.9 M Ft
3 szoba
67 m²
Balatonszemes
Eladó téglalakás

Balatonszemes

199.9 M Ft
4 szoba
90 m²
Batyk, Dózsa György utca
Eladó családi ház

Batyk

22 M Ft
5 szoba
94 m²
Törtel
Eladó családi ház

Törtel

20 M Ft
2 szoba
63 m²
Tormafölde
Eladó családi ház

Tormafölde

22 M Ft
2 szoba
70 m²
Kiszombor, Óbébai utca
Eladó családi ház

Kiszombor

32.9 M Ft
4 szoba
140 m²
Győrság
Eladó családi ház

Győrság

79.9 M Ft
4 szoba
92 m²
Tornyiszentmiklós
Eladó családi ház

Tornyiszentmiklós

29.9 M Ft
3 szoba
110 m²