Astora Art House

Eladó téglalakás
Budapest, XX. kerület, földszint

+ 6 kép 1/9
56 900 000 Ft56.9 M Ft 1 161 224 Ft/m2
1 + 1 szoba
49 m²
földszint
építés éve:1980

Részletes adatok

Fűtés: Gázkazán
Emelet: földszint
Komfort: Összkomfortos
Energetikai besorolás: Nem adta meg a hirdető

Az OTP Bank lakáshitel ajánlataFizetett hirdetés

+36 20 461
Dsugán Béla
Terc Kft.

Érdekel az OTP Bank kedvezményes lakáshitel ajánlata? *

* A kérdésre „Igen” válasz bejelölése esetén, az „Üzenet küldése” gombra kattintva kijelentem, hogy az OTP Bank Nyrt. Adatkezelési tájékoztatójának tartalmát megismertem és tudomásul vettem.

Eladó téglalakás leírása

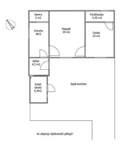
Eladó Budapest, XX., Pesterzsébet nagyon jó közlekedésű, kertvárosias részén egy br. 63, nettó 49 nm-es, másfél szobás, részben már felújított önálló kis ház. Az ingatlan saját, külön leválasztott bejárattal, kizárólagos használatú kertrésszel rendelkezik. Jelenleg osztatlan közös tulajdon még használati megállapodással, de tavaly júniusban már be lett adva a Földhivatalhoz a társasházzá való nyilvánítási kérelem, az albetétesítés. Felújításra és szigetelésre került a tető, a teljes villanyvezeték hálózat, a külső nyílászárók, belső melegburkolatok. A ház 10 cm-es dryvit szigetelést is kapott. A fürdőszoba még felújítandó - ez már az új tulajdonosra vár!
Kellemes otthon alakítható ki fiatalok, újrakezdők, kis családosok számára. A közelben, sétatávolságra kisboltok, piac, cukrászda, gyógyszertár, iskolák, ovi, bölcsi...
Kiváló közlekedéssel rendelkezik: az 52-es és 2B villamos közvetlen közelségben, a 36, 136, 123, 224, 224E, 966, és 923-as buszok pár perc sétával elérhetők.
Ügyfeleink számára teljes körű ügyintézéssel állunk rendelkezésre. Kínálatunkból választott ingatlan finanszírozásához kedvezményes hitelmegoldásokat kínálunk, illetve az adásvételi szerződés megkötéséhez megbízható ügyvédi közreműködést is tudunk biztosítani!
Ha hirdetésünk felkeltette érdeklődését, kérem hívjon bizalommal a hét bármely napján!„Energetikai tanúsítvány jelenleg még nem áll rendelkezésre.”

Az energetikai tanúsítvány készítése folyamatban van, amint rendelkezésre áll, úgy azzal a hirdetés frissítésre kerül.

Referencia szám: M323895

Hirdetés feltöltve: 2026. 03. 06. Utoljára módosítva: 2026. 05. 13.

2 szobás téglalakások ára Budapesten

Ebből az összehasonlításból megtudhatod, hogyan viszonyul a lakás ára a környékbeli téglalakások átlagos árához. Ez nem azt jelenti, hogy ennyivel olcsóbb vagy drágább, mint amennyit a lakás ér, hanem hogy ennyivel tér el a környékbeli átlagtól.

Ennek a m² ára
XX. kerület m² ár
Budapest m² ár
1161 e Ft
1110 e Ft -5%
1690 e Ft 31%
Ennek az ára
XX. kerület átlagár
Budapest átlagár
56.9 M Ft m Ft
61.6 m Ft 8%
88.7 m Ft 36%

Az ingatlan elhelyezkedése

Cím: Budapest, XX. kerület, földszint

Eladó ingatlanok a környékről

XIII. kerület, Angyalföld, Tahi utca
Eladó téglalakás

Budapest, XIII. kerület

59.6 M Ft
1 szoba
38 m²
XX. kerület
Eladó téglalakás

Budapest, XX. kerület

73 M Ft
3 szoba
67 m²
VI. kerület, Külső Terézváros, Városligeti fasor
Eladó téglalakás

Budapest, VI. kerület

185 M Ft
2 szoba
95 m²
XX. kerület
Eladó téglalakás

Budapest, XX. kerület

89.9 M Ft
659 m²
452 m²
VII. kerület, Belső Erzsébetváros, Kis Diófa utca
Eladó téglalakás

Budapest, VII. kerület

108.5 M Ft
2 szoba
85 m²
XIX. kerület
Eladó téglalakás

Budapest, XIX. kerület

33.9 M Ft
1 szoba
25 m²
XX. kerület
Eladó téglalakás

Budapest, XX. kerület

148 M Ft
4 szoba
126 m²
XX. kerület, Tótfalusi Kis Miklós sétány
Eladó téglalakás

Budapest, XX. kerület

76.99 M Ft
1 + 3 szoba
75 m²
III. kerület
Eladó családi ház

Budapest, III. kerület

375 M Ft
3 szoba
165 m²
XX. kerület
Eladó téglalakás

Budapest, XX. kerület

29.9 M Ft
2 szoba
43 m²
XX. kerület
Eladó téglalakás

Budapest, XX. kerület

85 M Ft
3 szoba
70 m²
XX. kerület
Eladó téglalakás

Budapest, XX. kerület

75 M Ft
2 szoba
68 m²
XIV. kerület
Eladó téglalakás

Budapest, XIV. kerület

81 M Ft
2 szoba
46 m²
VI. kerület, Külső Terézváros, Városligeti fasor
Eladó téglalakás

Budapest, VI. kerület

308 M Ft
3 szoba
190 m²
XX. kerület
Eladó téglalakás

Budapest, XX. kerület

82 M Ft
2 szoba
57 m²
XIV. kerület
Eladó téglalakás

Budapest, XIV. kerület

79.6 M Ft
2 szoba
46 m²
XIII. kerület
Eladó téglalakás

Budapest, XIII. kerület

142 M Ft
4 szoba
126 m²
VI. kerület, Külső Terézváros, Városligeti fasor
Eladó téglalakás

Budapest, VI. kerület

308 M Ft
3 szoba
190 m²
III. kerület, Csillaghegy
Eladó telek

Budapest, III. kerület

199.5 M Ft
977 m²
0 m²
XVI. kerület
Eladó ikerház

Budapest, XVI. kerület

239 M Ft
4 szoba
160 m²
XX. kerület
Eladó téglalakás

Budapest, XX. kerület

34.9 M Ft
3 szoba
26 m²
XIX. kerület
Eladó családi ház

Budapest, XIX. kerület

33.9 M Ft
1 szoba
25 m²
XX. kerület
Eladó téglalakás

Budapest, XX. kerület

148 M Ft
4 szoba
126 m²
XX. kerület, Erzsébetfalva, Jókai Mór utca
Eladó téglalakás

Budapest, XX. kerület

75 M Ft
2 szoba
68 m²

Falusi CSOK ingatlanok

Tápiószőlős
Eladó családi ház

Tápiószőlős

9.9 M Ft
3 szoba
0 m²
Segesd
Eladó családi ház

Segesd

79.9 M Ft
8 szoba
500 m²
Győrság
Eladó családi ház

Győrság

89.9 M Ft
4 szoba
92 m²
Csurgó
Eladó családi ház

Csurgó

19.9 M Ft
4 szoba
136 m²
Bázakerettye
Eladó családi ház

Bázakerettye

28 M Ft
2 szoba
57 m²
Zalaszentiván
Eladó ikerház

Zalaszentiván

54.99 M Ft
5 szoba
160 m²
Zsámbok
Eladó családi ház

Zsámbok

54.85 M Ft
3 szoba
120 m²
Balatonszemes
Eladó téglalakás

Balatonszemes

125.2 M Ft
2 szoba
50 m²