Eladó téglalakás
Budapest, XVII. kerület, Rákoscsaba, földszint
Részletes adatok
Az OTP Bank lakáshitel ajánlataFizetett hirdetés
Induló törlesztőrészlet
101 262 Ft /hóTörlesztőrészlet a 13. hónaptól
129 106 Ft /hóInduló törlesztőrészlet
135 016 Ft /hóTörlesztőrészlet a 13. hónaptól
172 142 Ft /hóA tájékoztatás nem teljes körű és nem minősül ajánlattételnek. Az OTP Évnyerő Lakáshitelei 1 éves türelmi idős kölcsönök, amellyel az első 12 hónapban alacsonyabb a havi törlesztőrészlet. A tőke törlesztését a 13. hónaptól kell megkezdeni.
Eladó téglalakás leírása
Ha már unja a típuslakásokat, ezt a projektet érdemes megtekintenie:
Sokszor jogosan éri az a vád a kivitelezőket, hogy csak a bevétel érdekli őket és ’’kispórolják az anyagot’’ a nagyobb profit érdekében. Jelen esetben a kedves vásárló teljesen biztos lehet a jócskán átlagon felüli minőségben, hiszen egy 10 éve folyamatosan működő, számos referenciával rendelkező vállalkozó saját családjának szánt, magánszemély tulajdonában álló projektje vált eladóvá Rákoscsabán!
Az építkezés jelen szakaszában (emelt szerkezetkész) még lehetősége van kiválasztani a burkolatokat, szanitereket saját ízlésének megfelelően!
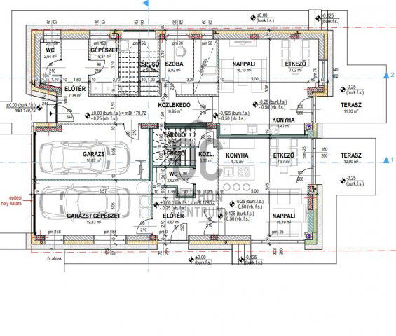
Az épület alapvető műszaki tartalma (kérésre természetesen elküldöm a részletes dokumentációt):
- A teraszok savmart üvegkorláttal ellátottak, kültéri világítást az ár tartalmazza
- Napelem alapszerelés
- Elektromos kapu, személykapu beléptetővel
- Elektromos, motoros redőnyök
- Gazdaságos hőszivattyús padlófűtés és mennyezet hűtés kerül beépítésre, mindkét lakáshoz külön-külön, illetve a meleg vízellátást is hőszivattyú biztosítja
- Hővisszanyerős szellőztetőrendszer
- Az épület alatt 15 cm vastag vasalt aljzatbeton készült.
- Hőhídmentes alumínium tokszerkezetű nyílászárók
- Külső falazat anyaga: 30cm-es Porotherm tégla
- A lábazati részeken a falra 25 cm vastag XPS hőszigetelés került
- Külső szigetelés: 20cm vastag EPS
- Válaszfalak anyaga: 10cm-es válaszfaltégla
- A ház födémjei monolit vasbetonból készültek.
- Az épület lapostetős, egyenes rétegrenddel. A lapostető vízszigetelése két réteg PVC lemez szigeteléssel történt. A lejtést a legalább 2 %-os lejtésben vágott poliizocianurát (PIR) keményhab hőszigetelő tábla biztosítja. A tetőre kavics leterhelő réteg került
- Az épületet szegélyező attikák és az emeleti erkélyek szegélyei antracit színű bádogburkolattal burkoltak. Jelenleg a projekt állapota emelt szerkezetkész. Ebben az állapotban is megvásárolható akár lakásonként, akár a teljes épület 550.000 Ft/m2 áron.
Amennyiben további kérdése akad, hívjon a hét bármely napján. Ne habozzon sokáig, nehogy lemaradjon! Irodánk pénzügyi szakértője díjmentesen nyújt segítséget Önnek a legjobb finanszírozás megtalálásához.
143900000 Ft
Csuha Attila +36704545076
Email: csuha.attila@oc.hu
Várom megtisztelő hívását a hét bármely napján!
Referencia szám: U0047289-ZE
Hirdetés feltöltve: 2025. 08. 28. Utoljára módosítva: 2025. 10. 11.
4 szobás téglalakások ára Budapesten
Ebből az összehasonlításból megtudhatod, hogyan viszonyul a lakás ára a környékbeli téglalakások átlagos árához. Ez nem azt jelenti, hogy ennyivel olcsóbb vagy drágább, mint amennyit a lakás ér, hanem hogy ennyivel tér el a környékbeli átlagtól.
Az ingatlan elhelyezkedése
Cím: Budapest, XVII. kerület, Rákoscsaba, földszint
Eladó ingatlanok a környékről
