River Life

Eladó téglalakás
Budapest, XV. kerület, Rákospalota, 1. emelet

1/2
85 400 000 Ft85.4 M Ft 1 094 872 Ft/m2
3 szoba
78 m2
1. emelet
építés éve:2026

Részletes adatok

Fűtés: Egyéb
Emelet: 1. emelet
Energetikai besorolás: Nem adta meg a hirdető

Az OTP Bank lakáshitel ajánlataFizetett hirdetés

+36 1 230
Tecnocasa - Imobiliare Kft.
referens

Érdekel az OTP Bank kedvezményes lakáshitel ajánlata? *

* A kérdésre „Igen” válasz bejelölése esetén, az „Üzenet küldése” gombra kattintva kijelentem, hogy az OTP Bank Nyrt. Adatkezelési tájékoztatójának tartalmát megismertem és tudomásul vettem.

Eladó téglalakás leírása

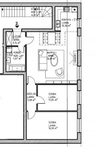
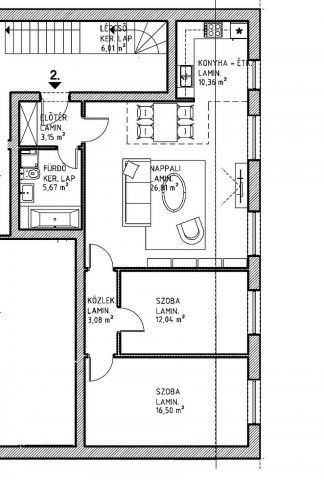
XV. KERÜLETBEN: FREKVENTÁLT RÉSZEN, ELADÓ ÚJ ÉPÍTÉSŰ, 78 M2, AMERIKAI KONYHÁS NAPPALIS, 2 SZOBÁS, I.EMELETI TÁRSASHÁZI TÉGLALAKÁS.

A LAKÁS JELLEMZŐI:

A lakás várható átadási határideje 2026 év vége. A társasház 7 lakásos lesz, 3 szintes, 30-as porotherm téglából épül, amelyet egy 10 cm-es grafitos szigeteléssel is ellátnak majd.

A lakásban tágas amerikai konyhás nappali, 2 szoba, fürdőszoba, előszoba és közlekedő kerül kialakításra.

A nyílászárók 6 légkamrás, 3 rétegű hőszigetelt ablakok lesznek. A fűtést kondenzációs kazán fogja biztosítani, a hideg burkolatok alatt padlófűtés kerül kialakításra, a szobákban pedig lapradiátorokat szerelnek fel és 1 hűtő-fűtő klímát.

Az ár tartalmazza a burkolatok, szerelvények és szaniterek beépítését, az anyag árat nem.

Igény esetén extra költséggel kérhető: elektromos redőny, kamera, riasztó, konyhabútor, beépített szekrények.

Lehetőség van plusz tároló (2.000.000 Ft/db), illetve udvari autóbeálló (2.500.000 Ft/db.) vásárlásához.

Referencia ingatlanok megtekintése is lehetséges.

FINANSZÍROZÁS:

Az ingatlan TEHERMENTES lesz, hitelre is megvásárolható. Bankfüggetlen tanácsadóink, az ország összes pénzintézete közül gyorsan és gördülékenyen találja meg az Önnek legmegfelelőbb konstrukciót, egyedi kedvezményekkel. A hitel közvetítés díjmentes.

Várjuk hívását munkanapokon 09:00-18:00 között.

A hirdetésben szereplő adatok tájékoztató jellegűek.

Amennyiben eladná saját ingatlanát, több mint 10 éve működő, kifejezetten a kerületre szakosodott irodánktól, INGYENES ÉRTÉKBECSLÉST kérhet.

Hirdetés feltöltve: 2025. 12. 13. Utoljára módosítva: 2026. 01. 13.

3 szobás téglalakások ára Budapesten

Ebből az összehasonlításból megtudhatod, hogyan viszonyul a lakás ára a környékbeli téglalakások átlagos árához. Ez nem azt jelenti, hogy ennyivel olcsóbb vagy drágább, mint amennyit a lakás ér, hanem hogy ennyivel tér el a környékbeli átlagtól.

Ennek a m² ára
Rákospalota m² ár
XV. kerület m² ár
Budapest m² ár
1095 e Ft
1312 e Ft 17%
1305 e Ft 16%
1688 e Ft 35%
Ennek az ára
Rákospalota átlagár
XV. kerület átlagár
Budapest átlagár
85.4 M Ft m Ft
78.3 m Ft -9%
80.4 m Ft -6%
130.6 m Ft 35%

Az ingatlan elhelyezkedése

Cím: Budapest, XV. kerület, Rákospalota, 1. emelet

Eladó ingatlanok a környékről

Eladó téglalakás
Eladó téglalakás

XV. kerület

93.392 M Ft
3 szoba
67 m2
Eladó téglalakás
Eladó téglalakás

XV. kerület

68.9 M Ft
2 szoba
52 m2
Eladó téglalakás
Eladó téglalakás

XV. kerület, Rákospalota

161.856 M Ft
1 + 3 szoba
142 m2
Eladó téglalakás
Eladó téglalakás

IV. kerület

87.5 M Ft
3 szoba
60 m2
Eladó téglalakás
Eladó téglalakás

XV. kerület

113.588 M Ft
3 szoba
68 m2
Eladó téglalakás
Eladó téglalakás

XV. kerület

145 M Ft
4 szoba
100 m2
Eladó téglalakás
Eladó téglalakás

VII. kerület, Belső Erzsébetváros, Rózsa utca

170 M Ft
5 szoba
124 m2
Eladó téglalakás
Eladó téglalakás

XV. kerület

129.734 M Ft
4 szoba
92 m2
Eladó téglalakás
Eladó téglalakás

XI. kerület, Gellérthegy, Gyula utca

130 M Ft
2 szoba
56 m2
Eladó téglalakás
Eladó téglalakás

XV. kerület

69.5 M Ft
2 szoba
45 m2
Eladó téglalakás
Eladó téglalakás

VI. kerület, Külső Terézváros, Szófia utca

112.9 M Ft
4 szoba
103 m2
Eladó téglalakás
Eladó téglalakás

V. kerület, Belváros, Belgrád rakpart

78 M Ft
1 + 1 szoba
42 m2
Eladó téglalakás
Eladó téglalakás

XV. kerület

68.9 M Ft
2 szoba
52 m2
Eladó téglalakás
Eladó téglalakás

XV. kerület

118.945 M Ft
4 szoba
92 m2
Eladó téglalakás
Eladó téglalakás

XV. kerület

96.649 M Ft
3 szoba
65 m2
Eladó téglalakás
Eladó téglalakás

XV. kerület

113 M Ft
3 szoba
76 m2
Eladó iroda
Eladó iroda

I. kerület, Víziváros, Széna tér

189 M Ft
4 szoba
90 m2
Eladó téglalakás
Eladó téglalakás

XIII. kerület, Angyalföld, Fiastyúk utca

39.9 M Ft
1 + 1 szoba
34 m2
Eladó családi ház
Eladó családi ház

XXII. kerület, Budafok, Baross utca

222 M Ft
6 + 1 szoba
200 m2
Eladó téglalakás
Eladó téglalakás

VI. kerület, Belső Terézváros, Jókai utca

87.6 M Ft
3 szoba
75 m2
Eladó téglalakás
Eladó téglalakás

III. kerület, Óbudaisziget, Folyamőr utca

69.9 M Ft
1 szoba
25 m2
Eladó téglalakás
Eladó téglalakás

XV. kerület

131.517 M Ft
3 szoba
74 m2
Eladó téglalakás
Eladó téglalakás

XV. kerület

69.5 M Ft
2 szoba
45 m2
Eladó téglalakás
Eladó téglalakás

XV. kerület

93.73 M Ft
3 szoba
68 m2

Falusi CSOK ingatlanok

Eladó családi ház
Eladó családi ház

Kislippó

16 M Ft
3 szoba
100 m2
Eladó családi ház
Eladó családi ház

Mezőlak, Arany János utca

35.7 M Ft
3 szoba
104 m2
Eladó téglalakás
Eladó téglalakás

Csurgó

13.5 M Ft
2 szoba
54 m2
Eladó családi ház
Eladó családi ház

Fonyód

89.9 M Ft
7 szoba
151 m2
Eladó családi ház
Eladó családi ház

Bogács

36.8 M Ft
2 szoba
64 m2
Eladó családi ház
Eladó családi ház

Sály, Kossuth Lajos 128

30.8 M Ft
6 szoba
160 m2
Eladó családi ház
Eladó családi ház

Palkonya

137 M Ft
6 szoba
160 m2
Eladó családi ház
Eladó családi ház

Vének

60 M Ft
3 szoba
76 m2