Oasis Residence

Eladó téglalakás
Budapest, XIX. kerület, Kispest, Bethlen Gábor utca, 2. emelet

+ 1 kép 1/4
53 400 000 Ft53.4 M Ft 1 570 588 Ft/m2
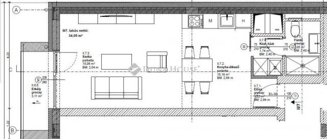
1 szoba
34 m²
2. emelet
építés éve:2026

Részletes adatok

Állapot: Újszerű
Fűtés: Egyéb
Emelet: 2. emelet
Extrák: Lift
Energetikai besorolás: Nem adta meg a hirdető
Zenga Premier

Friss hirdetések, amiket nem találsz meg más ingatlankereső portálon.

Fedezd fel elsőként a Zenga Premier címkés eladó ingatlanokat!

További részletek a zenga.hu-n

Az OTP Bank lakáshitel ajánlataFizetett hirdetés

+36 1 690
Zöldi Norbert
Duna House - Szent Imre-kertváros

Érdekel az OTP Bank kedvezményes lakáshitel ajánlata? *

* A kérdésre „Igen” válasz bejelölése esetén, az „Üzenet küldése” gombra kattintva kijelentem, hogy az OTP Bank Nyrt. Adatkezelési tájékoztatójának tartalmát megismertem és tudomásul vettem.

Eladó téglalakás leírása

Budapest 19. kerületében, a KÖKI Terminál szomszédságában új építésű társasházi lakások hőszivattyús fűtéssel, magas műszaki tartalommal, kivételes lokációval!

Befektetésnek is kitűnő lehetőség!!

Műszaki adatok:
- főfal: 30-as főfalak
- válaszfal: Porotherm 10 N+F válaszfallap
- energiatakarékos hőszivattyús rendszer padlófűtéssel (lakáson belül helyiségenként egyedi mérővel)
- a melegvizet hőszivattyú állítja elő a tárolásról pedig HMV gondoskodik
- 20 cm Rockwool kőzetgyapot homlokzati szigetelés
- hűtés magas oldalfali fan-coilokkal (hőszivattyú) felár ellenében
- 3 üvegrétegű, 6 kamrás hőszigetelt, műanyag nyílászárók
- szaniterek, meleg- és hidegburkolatok, valamint beltéri ajtók még választhatók
- gépkocsibeálló igény szerint vásárolható - 5 M Ft / db
- Lift (13 személyes, 1000 kg teherbírású személyfelvonó)

Már 20%- al foglalható, építési ütemnek megfelelő finanszírozással!
Az építtető cég, így minden állami támogatás igénybe vehető!

Várható átadás: 2026. IV. negyedév

Teljes műszaki leírás, dokumentáció megtekinthető irodánkban!

Hirdetés feltöltve: 2026. 03. 03.

1 szobás téglalakások ára Budapesten

Ebből az összehasonlításból megtudhatod, hogyan viszonyul a lakás ára a környékbeli téglalakások átlagos árához. Ez nem azt jelenti, hogy ennyivel olcsóbb vagy drágább, mint amennyit a lakás ér, hanem hogy ennyivel tér el a környékbeli átlagtól.

Ennek a m² ára
Kispest m² ár
XIX. kerület m² ár
Budapest m² ár
1571 e Ft
1616 e Ft 3%
1617 e Ft 3%
1712 e Ft 8%
Ennek az ára
Kispest átlagár
XIX. kerület átlagár
Budapest átlagár
53.4 M Ft m Ft
51.4 m Ft -4%
53.6 m Ft 0%
59.6 m Ft 10%

Az ingatlan elhelyezkedése

Cím: Budapest, XIX. kerület, Kispest, Bethlen Gábor utca, 2. emelet

Eladó ingatlanok a környékről

VIII. kerület, Józsefváros, Corvin sétány 2
Eladó téglalakás

Budapest, VIII. kerület

174.9 M Ft
3 szoba
72 m²
VII. kerület, Külső Erzsébetváros, Nefelejcs utca
Eladó téglalakás

Budapest, VII. kerület

86.5 M Ft
2 szoba
57 m²
XIX. kerület
Eladó téglalakás

Budapest, XIX. kerület

63.278 M Ft
1 szoba
34 m²
XIX. kerület, Kispest
Eladó téglalakás

Budapest, XIX. kerület

63.9 M Ft
3 szoba
93 m²
XVIII. kerület
Eladó ikerház

Budapest, XVIII. kerület

195 M Ft
4 szoba
150 m²
XIX. kerület, Kispest
Eladó téglalakás

Budapest, XIX. kerület

63.9 M Ft
3 szoba
93 m²
XVIII. kerület
Eladó családi ház

Budapest, XVIII. kerület

148 M Ft
6 szoba
179 m²
XIX. kerület
Eladó téglalakás

Budapest, XIX. kerület

56.631 M Ft
1 szoba
34 m²
XIX. kerület
Eladó téglalakás

Budapest, XIX. kerület

63.9 M Ft
3 szoba
93 m²
XIX. kerület
Eladó téglalakás

Budapest, XIX. kerület

62.85 M Ft
1 szoba
35 m²
XIII. kerület
Eladó téglalakás

Budapest, XIII. kerület

92.5 M Ft
3 szoba
76 m²
XIX. kerület
Eladó téglalakás

Budapest, XIX. kerület

63.9 M Ft
3 szoba
93 m²
XIX. kerület
Eladó téglalakás

Budapest, XIX. kerület

112.67 M Ft
3 szoba
60 m²
XIX. kerület
Eladó téglalakás

Budapest, XIX. kerület

117.753 M Ft
3 szoba
65 m²
VI. kerület
Eladó téglalakás

Budapest, VI. kerület

64.9 M Ft
1 szoba
44 m²
XVI. kerület
Eladó téglalakás

Budapest, XVI. kerület

67.99 M Ft
2 szoba
49 m²
IX. kerület
Eladó téglalakás

Budapest, IX. kerület

55 M Ft
1 szoba
24 m²
XIX. kerület
Eladó téglalakás

Budapest, XIX. kerület

82.022 M Ft
2 szoba
49 m²
XVIII. kerület
Eladó panellakás

Budapest, XVIII. kerület

88.9 M Ft
3 szoba
73 m²
XIX. kerület
Eladó téglalakás

Budapest, XIX. kerület

125 M Ft
4 szoba
140 m²
XIX. kerület
Eladó téglalakás

Budapest, XIX. kerület

84.466 M Ft
2 szoba
49 m²
XIX. kerület, Kispest
Eladó téglalakás

Budapest, XIX. kerület

63.9 M Ft
3 szoba
93 m²
XIX. kerület, József Attila utca
Eladó téglalakás

Budapest, XIX. kerület

63 M Ft
1 + 2 szoba
57 m²
IV. kerület, Újpest
Eladó téglalakás

Budapest, IV. kerület

110 M Ft
3 szoba
89 m²

Falusi CSOK ingatlanok

Bugac
Eladó családi ház

Bugac

55 M Ft
3 szoba
90 m²
Balatonfenyves
Eladó családi ház

Balatonfenyves

149 M Ft
8 szoba
270 m²
Felsőlajos
Eladó családi ház

Felsőlajos

100 M Ft
4 szoba
140 m²
Vilonya
Eladó családi ház

Vilonya

135 M Ft
4 szoba
202 m²
Magyarpolány
Eladó családi ház

Magyarpolány

90 M Ft
2 szoba
70 m²
Nyírbogdány
Eladó családi ház

Nyírbogdány

31.55 M Ft
1 + 2 szoba
73 m²
Kaposgyarmat
Eladó családi ház

Kaposgyarmat

695 M Ft
6 szoba
610 m²
Végegyháza
Eladó családi ház

Végegyháza

62.9 M Ft
4 + 1 szoba
150 m²