Seven Pearl

Eladó téglalakás
Budapest, XIX. kerület, Kispest, Városház Tér, 1. emelet

+ 17 kép 1/20
76 990 000 Ft76.99 M Ft 1 539 800 Ft/m2
3 szoba
50 m²
1. emelet
építés éve:2026

Részletes adatok

Fűtés: Egyéb
Emelet: 1. emelet
Parkolás: Garázs
Közmű: Víz, Villany, Csatorna, Szélessáv, Telefon
Energetikai besorolás: Nem adta meg a hirdető

Az OTP Bank lakáshitel ajánlataFizetett hirdetés

+36 70 638
Nefelejcs Ingatlaniroda
Nefelejcs Ingatlaniroda

Érdekel az OTP Bank kedvezményes lakáshitel ajánlata? *

* A kérdésre „Igen” válasz bejelölése esetén, az „Üzenet küldése” gombra kattintva kijelentem, hogy az OTP Bank Nyrt. Adatkezelési tájékoztatójának tartalmát megismertem és tudomásul vettem.

Eladó téglalakás leírása

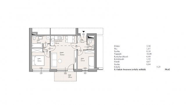
XIX. Kispesten, a Városház Tér vonzáskörzetében épülő projektben kínáljuk eladásra ezt az első emeleti, 50,62 m2-es, nappali plusz két hálószobás, hőszivattyúval és padlófűtéssel felszerelt, új építésű lakást, 2026 áprilisi költözéssel! A társasházban összesen 20 lakás került kialakításra. Minden lakáshoz tartozik saját teremgarázs is, melynek ára: 7,000,000,- forint.

Műszaki leírás a lakások belső kialakításáról.

Festés:
Diszperziós fehér festés
Nyílászárók:
Lakás bejárati ajtó:
1db műanyag biztonsági bejárati ajtó.

Belső nyílászárók:
Ajtók kilincsekkel MDF borítású dekorfóliás vagy erősített CPI fóliával ellátva
(kalkulált ár: 45.000 Ft)
Külső nyílászárók:
Német, műanyag profilú hőszigetelt ablakok, külső felület fehér színben, színazonos külső
párkánnyal, valamint erkélyajtók bukó-nyíló pánttal szerelve, illeszkedő
külső párkánnyal készre szerelve.
Az építési engedélyben szereplő méretekkel.
Általános meghatározás
Víz és fűtésszerelés:
padlófűtés kiépítése

nyomóvezeték: KPE, többrétegű műanyag csőből
lefolyó vezeték: PVC csőből
fűtéscsövezés: műanyag csővel + rézcsővel

vízcsövezés: műanyag csővel + rézcsővel
fűtés: Hőszivattyú-lakásonkénti hőmennyiségmérővel
meleg víz: Hőszivattyú - lakásonkénti vízórával
fürdőszobában: fürdőszobánként 1db elektromos törülközőszárítós radiátor
fürdőkád: 1db akril kád fehér színben, (kalk.ár: 55.000 Ft)
mosdó: 1db Alföldi vagy azzal megegyező (kalk.ár 25.000 Ft)
WC: 1-2 db beépített Geberit vagy azzal megegyező wc
kádtöltő csaptelep: egykaros krómozott kivitelben (kalk.ár: 19.500 Ft)
mosdó csaptelep: egykaros krómozott kivitelben (kalk.ár 19.500 Ft)
1 db mosógép kiállás a fürdőszobában vagy a konyhában elhelyezve
A lakásokban egyedi közműórák kerülnek elhelyezésre:
(hideg-meg víz 1-1 órával, elektromos áram villanyóra, fűtés hőmennyiségmérő) lakásonként önállóan
mérhetők
Elektromos szerelés:
elektromos teljesítmény: 1x 32A / lakás
elektromos hálózat kiépítése műanyag védőcsőben, vezetékekkel szerelve
A konyhában 1 db elektromos tűzhely kiállás 100x100-as kötődobozban
Prodax,Legrand vagy ezzel megegyező típusú elektromos szerelvények:
Konnektorok: Konyha: 4 db, Nappali: 4 db, szobánkként 2 db, közlekedőnkként 1 db,
fürdőszobánkként 2 db vízmentes.
Minden lámpatesthez 1 db kapcsoló
TV csatlakozás minden szobában és a nappaliban kiépítésre kerül
Épületszerkezet kialakítása:
Statikai Tervek szerint kerülnek kialakításra
Födémek: vasbeton
Teherhordó falazat: kitöltő falazású LEIER vagy Porotherm 30 N + vázkitöltéssel
Lakásokat elválasztó hangszigetelő falazat: Silka hang gátlóval
Válaszfalak: 10 cm vastagságú LEIER N+F téglából falazva
Külső homlokzat kialakítása:
Dryvit rendszer: 10 cm Nikecell, Dryvit háló ragasztása + fedőszínezés, kiviteli terv szerint
Terasz:
Az építési engedélyben feltüntetett méretű terasz kerül kialakításra.
Teraszok lekerítése korláttal került kivitelezésre
Lift:
Az épületben kiépítésre kerül.
Tereprendezés:
Tereprendezett terület kialakítása
Garázst minden lakáshoz megvásárolni kötelező!
Ügyvédi munkadíj: 0,9 % tartalmazza az előszerződés, végleges szerződés, társasházi alapító okirat díját. Az elírás és tévedés jogát fenntartjuk!

Hirdetés feltöltve: 2026. 02. 13. Utoljára módosítva: 2026. 05. 05.

3 szobás téglalakások ára Budapesten

Ebből az összehasonlításból megtudhatod, hogyan viszonyul a lakás ára a környékbeli téglalakások átlagos árához. Ez nem azt jelenti, hogy ennyivel olcsóbb vagy drágább, mint amennyit a lakás ér, hanem hogy ennyivel tér el a környékbeli átlagtól.

Ennek a m² ára
Kispest m² ár
XIX. kerület m² ár
Budapest m² ár
1540 e Ft
1304 e Ft -18%
1357 e Ft -14%
1706 e Ft 10%
Ennek az ára
Kispest átlagár
XIX. kerület átlagár
Budapest átlagár
76.99 M Ft m Ft
84.8 m Ft 9%
92.4 m Ft 17%
131.2 m Ft 41%

Az ingatlan elhelyezkedése

Cím: Budapest, XIX. kerület, Kispest, Városház Tér, 1. emelet

Eladó ingatlanok a környékről

XIX. kerület
Eladó téglalakás

Budapest, XIX. kerület

63.278 M Ft
1 szoba
34 m²
XI. kerület, Kőérberek, Kánai út 31
Eladó téglalakás

Budapest, XI. kerület

127.99 M Ft
3 szoba
55 m²
XIX. kerület
Eladó téglalakás

Budapest, XIX. kerület

84.311 M Ft
2 szoba
49 m²
XIX. kerület
Eladó téglalakás

Budapest, XIX. kerület

80.165 M Ft
2 szoba
44 m²
XIX. kerület
Eladó téglalakás

Budapest, XIX. kerület

112.67 M Ft
3 szoba
60 m²
XIX. kerület
Eladó téglalakás

Budapest, XIX. kerület

85.056 M Ft
2 szoba
48 m²
XIX. kerület
Eladó téglalakás

Budapest, XIX. kerület

101.485 M Ft
3 szoba
60 m²
XIX. kerület, József Attila utca
Eladó téglalakás

Budapest, XIX. kerület

63 M Ft
1 + 2 szoba
57 m²
XI. kerület, Kőérberek, Kánai út 31
Eladó téglalakás

Budapest, XI. kerület

246.99 M Ft
4 szoba
100 m²
XIX. kerület
Eladó téglalakás

Budapest, XIX. kerület

78.122 M Ft
2 szoba
43 m²
XI. kerület, Kőérberek, Kánai út 31
Eladó téglalakás

Budapest, XI. kerület

179.99 M Ft
4 szoba
88 m²
XI. kerület, Kőérberek, Kánai út 31
Eladó téglalakás

Budapest, XI. kerület

170.99 M Ft
4 szoba
88 m²
XI. kerület, Kőérberek, Kánai út 31
Eladó téglalakás

Budapest, XI. kerület

88.49 M Ft
2 szoba
46 m²
XIX. kerület
Eladó téglalakás

Budapest, XIX. kerület

117.753 M Ft
3 szoba
65 m²
XIX. kerület
Eladó téglalakás

Budapest, XIX. kerület

63.955 M Ft
1 szoba
34 m²
XI. kerület, Kőérberek, Kánai út 31
Eladó téglalakás

Budapest, XI. kerület

121.99 M Ft
3 szoba
61 m²
XIX. kerület
Eladó téglalakás

Budapest, XIX. kerület

85.142 M Ft
2 szoba
44 m²
XI. kerület, Kőérberek, Kánai út 31
Eladó téglalakás

Budapest, XI. kerület

135.99 M Ft
3 szoba
68 m²
XIX. kerület
Eladó téglalakás

Budapest, XIX. kerület

61.499 M Ft
1 szoba
34 m²
XI. kerület, Kőérberek, Kánai út 31
Eladó téglalakás

Budapest, XI. kerület

130.99 M Ft
3 szoba
60 m²
XI. kerület, Kőérberek, Kánai út 31
Eladó téglalakás

Budapest, XI. kerület

130.99 M Ft
3 szoba
68 m²
XI. kerület, Kőérberek, Kánai út 31
Eladó téglalakás

Budapest, XI. kerület

135.49 M Ft
3 szoba
65 m²
XI. kerület, Kőérberek, Kánai út 31
Eladó téglalakás

Budapest, XI. kerület

90.99 M Ft
2 szoba
46 m²
XIX. kerület
Eladó téglalakás

Budapest, XIX. kerület

62.85 M Ft
1 szoba
35 m²

Falusi CSOK ingatlanok

Ceglédbercel
Eladó családi ház

Ceglédbercel

67 M Ft
3 szoba
97 m²
Újszilvás
Eladó családi ház

Újszilvás

18 M Ft
3 szoba
55 m²
Kálmánháza
Eladó családi ház

Kálmánháza

65 M Ft
3 + 1 szoba
151 m²
Kaposgyarmat
Eladó családi ház

Kaposgyarmat

695 M Ft
6 szoba
610 m²
Bag
Eladó ikerház

Bag

93 M Ft
3 szoba
67 m²
Sződ
Eladó családi ház

Sződ

116 M Ft
5 szoba
136 m²
Zákányfalu
Eladó családi ház

Zákányfalu

14.5 M Ft
2 szoba
80 m²
Tornyiszentmiklós
Eladó családi ház

Tornyiszentmiklós

29.9 M Ft
3 szoba
110 m²