BAM Living

Eladó téglalakás
Budapest, XIX. kerület, 2. emelet

+ 7 kép 1/10
83 900 000 Ft83.9 M Ft 1 353 226 Ft/m2
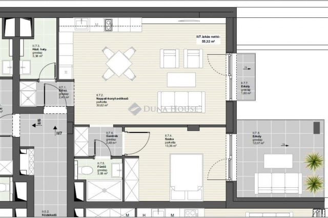
2 szoba
62 m2
2. emelet
építés éve:2026

Részletes adatok

Fűtés: Egyéb
Extrák: Lift
Energetikai besorolás: Nem adta meg a hirdető

Az OTP Bank lakáshitel ajánlataFizetett hirdetés

+36 1 690
Zöldi Norbert
referens

Érdekel az OTP Bank kedvezményes lakáshitel ajánlata? *

* A kérdésre „Igen” válasz bejelölése esetén, az „Üzenet küldése” gombra kattintva kijelentem, hogy az OTP Bank Nyrt. Adatkezelési tájékoztatójának tartalmát megismertem és tudomásul vettem.

Eladó téglalakás leírása

Budapest 19. kerületében, a KÖKI Terminál szomszédságában új építésű társasházi lakások hőszivattyús fűtéssel, magas műszaki tartalommal, kivételes lokációval!

Befektetésnek is kitűnő lehetőség!!

Műszaki adatok:
- főfal: 30-as főfalak
- válaszfal: Porotherm 10 N+F válaszfallap
- energiatakarékos hőszivattyús rendszer padlófűtéssel (lakáson belül helyiségenként egyedi mérővel)
- a melegvizet hőszivattyú állítja elő a tárolásról pedig HMV gondoskodik
- 20 cm Rockwool kőzetgyapot homlokzati szigetelés
- hűtés magas oldalfali fan-coilokkal (hőszivattyú)
- 3 üvegrétegű, 6 kamrás hőszigetelt, műanyag nyílászárók
- szaniterek, meleg- és hidegburkolatok, valamint beltéri ajtók még választhatók
- gépkocsibeálló igény szerint vásárolható - 4 M Ft / db
- Lift (13 személyes, 1000 kg teherbírású személyfelvonó)

Már 10%- al foglalható, rugalmas fizetési ütemezéssel!
Az építtető cég, így minden állami támogatás igénybe vehető! Megbízható kivitelező több, környéken átadott referenciával!

Várható átadás: 2026. IV. negyedév
Teljes műszaki leírás, dokumentáció megtekinthető irodánkban!
Zöldi Norbert +36709450148

Referencia szám: PR021988/LK/26177

Hirdetés feltöltve: 2025. 11. 09. Utoljára módosítva: 2025. 11. 29.

2 szobás téglalakások ára Budapesten

Ebből az összehasonlításból megtudhatod, hogyan viszonyul a lakás ára a környékbeli téglalakások átlagos árához. Ez nem azt jelenti, hogy ennyivel olcsóbb vagy drágább, mint amennyit a lakás ér, hanem hogy ennyivel tér el a környékbeli átlagtól.

Ennek a m² ára
XIX. kerület m² ár
Budapest m² ár
1353 e Ft
1415 e Ft 4%
1684 e Ft 20%
Ennek az ára
XIX. kerület átlagár
Budapest átlagár
83.9 M Ft m Ft
76.4 m Ft -10%
91 m Ft 8%

Az ingatlan elhelyezkedése

Cím: Budapest, XIX. kerület, 2. emelet

Eladó ingatlanok a környékről

Eladó téglalakás
Eladó téglalakás

V. kerület, Belváros, Petőfi Sándor utca

134 M Ft
2 szoba
59 m2
Eladó téglalakás
Eladó téglalakás

VII. kerület, Belső Erzsébetváros, Erzsébet körút

160 M Ft
3 szoba
88 m2
Eladó téglalakás
Eladó téglalakás

VIII. kerület, Palotanegyed, Rákóczi út

190 M Ft
5 szoba
121 m2
Eladó téglalakás
Eladó téglalakás

I. kerület, Krisztinaváros, Feszty Árpád utca

78.99 M Ft
1 szoba
28 m2
Eladó téglalakás
Eladó téglalakás

XIX. kerület, Kispest

149.9 M Ft
4 + 1 szoba
120 m2
Eladó téglalakás
Eladó téglalakás

XIX. kerület

63.9 M Ft
3 szoba
93 m2
Eladó téglalakás
Eladó téglalakás

XIX. kerület

55.566 M Ft
2 szoba
53 m2
Eladó téglalakás
Eladó téglalakás

XI. kerület, Gellérthegy, Gombócz Zoltán utca

142 M Ft
2 + 1 szoba
71 m2
Eladó panellakás
Eladó panellakás

XI. kerület, Albertfalva

99 M Ft
2 + 1 szoba
71 m2
Eladó téglalakás
Eladó téglalakás

I. kerület, Krisztinaváros, Kosciuszkó Tádé utca

48 M Ft
1 szoba
30 m2
Eladó téglalakás
Eladó téglalakás

XIX. kerület

105.5 M Ft
2 szoba
57 m2
Eladó téglalakás
Eladó téglalakás

XIX. kerület

105.5 M Ft
2 szoba
57 m2
Eladó téglalakás
Eladó téglalakás

XIX. kerület

105.5 M Ft
2 szoba
57 m2
Eladó téglalakás
Eladó téglalakás

XI. kerület, Gellérthegy, Gyula utca

150 M Ft
2 szoba
56 m2
Eladó téglalakás
Eladó téglalakás

XIX. kerület

125 M Ft
4 szoba
140 m2
Eladó téglalakás
Eladó téglalakás

XIX. kerület, Batthyaány utca

124.9 M Ft
4 szoba
111 m2
Eladó téglalakás
Eladó téglalakás

XIX. kerület

105.5 M Ft
2 szoba
57 m2
Eladó téglalakás
Eladó téglalakás

III. kerület, Rómaifürdő, Királyok útja

139 M Ft
3 szoba
65 m2
Eladó téglalakás
Eladó téglalakás

VII. kerület, Belső Erzsébetváros, Rózsa utca

170 M Ft
5 szoba
124 m2
Eladó téglalakás
Eladó téglalakás

VIII. kerület

107 M Ft
2 szoba
95 m2
Eladó téglalakás
Eladó téglalakás

XIX. kerület

63.9 M Ft
3 szoba
93 m2
Eladó téglalakás
Eladó téglalakás

VI. kerület

85 M Ft
2 szoba
64 m2
Eladó téglalakás
Eladó téglalakás

XIX. kerület, Kispest

63.9 M Ft
3 szoba
93 m2
Eladó téglalakás
Eladó téglalakás

III. kerület, Óbudaisziget, Folyamőr utca

76.9 M Ft
1 szoba
25 m2

Falusi CSOK ingatlanok

Eladó családi ház
Eladó családi ház

Balatonfenyves

119 M Ft
5 szoba
142 m2
Eladó családi ház
Eladó családi ház

Érsekcsanád

69 M Ft
6 szoba
390 m2
Eladó téglalakás
Eladó téglalakás

Nagyharsány

22.5 M Ft
3 szoba
71 m2
Eladó családi ház
Eladó családi ház

Egyed

24.9 M Ft
2 + 1 szoba
56 m2
Eladó családi ház
Eladó családi ház

Szabadbattyán

136 M Ft
5 szoba
226 m2
Eladó családi ház
Eladó családi ház

Nagykarácsony

34.9 M Ft
3 szoba
112 m2
Eladó családi ház
Eladó családi ház

Törtel

10 M Ft
2 szoba
32 m2
Eladó családi ház
Eladó családi ház

Seregélyes

75 M Ft
6 szoba
160 m2