Pesti Házak

Eladó téglalakás
Budapest, XIV. kerület, Törökőr, 2. emelet

+ 17 kép 1/20
98 000 000 Ft98 M Ft 1 289 474 Ft/m2
2 szoba
76 m2
2. emelet
építés éve:1920

Részletes adatok

Telekméret: 100 m2
Fűtés: Gázkazán
Parkolás: Kocsibeálló
Energetikai besorolás: Nem adta meg a hirdető

Az OTP Bank lakáshitel ajánlataFizetett hirdetés

+36 70 365
Iván Veronika
referens

Érdekel az OTP Bank kedvezményes lakáshitel ajánlata? *

* A kérdésre „Igen” válasz bejelölése esetén, az „Üzenet küldése” gombra kattintva kijelentem, hogy az OTP Bank Nyrt. Adatkezelési tájékoztatójának tartalmát megismertem és tudomásul vettem.

Eladó téglalakás leírása

Eladó lakás – Thököly út, Zugló (XIV. kerület)

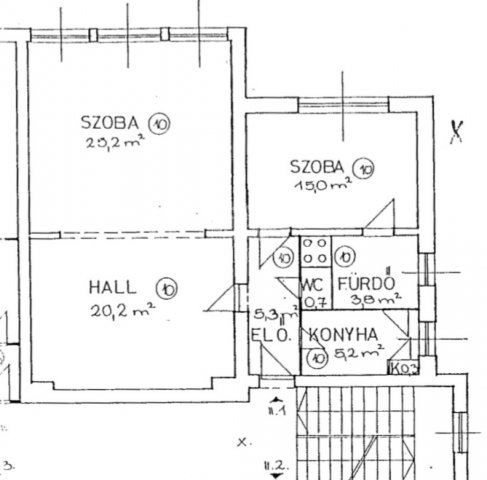
Eladó a Thököly úton, kiváló elhelyezkedéssel Stefánia úthoz közel, egy csendes, belső udvarra néző, téglaépítésű 76 m²-es, 2 szoba + hallos lakás.
A lakáshoz tartozik egy felszíni autóbeálló és 5 nm tároló!
Így biztosan kényelmesen és díjtalanul tud parkolni. Elektromos kapun keresztül azonnal a hátsó udvarba tud autóval bemenni.

A lakás nagy terekkel rendelkezik: a hálószobából és a konyhából is megközelíthető a fürdőszoba, a konyhához pedig kis kamra tartozik. Az előszoba tágas, jól rendezhető. Az lakás 3,2 m belmagasságú, világos, napfényes, a nappali és hall igazán levegős tér. A nappaliban szúnyoghálós és redőnyös ablakok találhatók valamint egy klíma is fel lett szerelve.

A lakás 2. emeleti, a házban lift nincs.
A társasház kiváló lakóközösségű, a külső állapota jó.
Közös költség: 24.000 Ft. Ebben van felújítási alap is!
A társasházban Airbnb engedély lehetséges, így befektetésként is remek választás.

Műszakilag jó állapotú: a cirkó kazán radiátoros fűtéssel 2000-ben került kialakításra, valamint műanyag ablakok lettek beépítve , amelyek kiváló hő- és hangszigetelést biztosítanak — ennek köszönhetően a lakás nagyon csendes. A lakás bejárati ajtaja magas minőségű biztonsági ajtóra lett cserélve.
A ház külső szigeteléssel nem rendelkezik, azonban a vastag falazat miatt erre nincs is feltétlen szükség.

Az épület az 1920-as években épült, majd 1976-ban felújításon esett át; a társasház barátságos, mindössze 12 lakásos.

A parkoló mellett egy kb. 100 m²-es közös kert található, grillezésre és pihenésre kialakítva, gazdag, dús növényzettel. A praktikumot tovább növeli a biciklitároló kerti csap és lehetőség van hintát vagy függő ágyat is feltenni.

Jöjjön el, nézze meg és tegyen ajánlatot.

Az ingatlan 1/1 tulajdonos, tehermentes 2 héten belül birtokba vehető.

Közlekedés

A környék kiváló tömegközlekedési adottságokkal rendelkezik: több buszjárat érhető el rövid sétával.
(7,110.112,5,busz) (72,75.troli)
Autóval a főbb útvonalak gyorsan elérhetők.

Környék, hangulat és látnivalók

Óbudai Egyetem Ybl Miklós Építéstudományi Kar pár perc séta távra.
Zugló kertvárosias, biztonságos,zöldebb hangulatot kínál, mégis közel fekszik a város szívéhez. A közelben található a Városliget, amely múzeumokkal, sétányokkal, parkkal és kulturális programokkal vár.
Aréna pláza és a Keleti pályaudvar kb. 15 perc gyalog.
Récsei Center pár perc.
A méltán híres Kert bisztró étterem szinte szomszéd így a vacsorára sincs gond.
Puskás stadion szintén pár percre ahol koncertek, programok színesítik a hétköznapokat. Télen akár látni is lehet a világító fényeket az ablakból.
A Thököly út mentén több régi villa és historizáló épület őrzi a századfordulós Budapest hangulatát.

I.V. ...TOVÁBBI, TÖBBEZRES INGATLAN KÍNÁLAT: www.gdn-ingatlan.hu - GDN azonosító: 388977

Hirdetés feltöltve: 2025. 10. 29. Utoljára módosítva: 2025. 11. 26.

2 szobás téglalakások ára Budapesten

Ebből az összehasonlításból megtudhatod, hogyan viszonyul a lakás ára a környékbeli téglalakások átlagos árához. Ez nem azt jelenti, hogy ennyivel olcsóbb vagy drágább, mint amennyit a lakás ér, hanem hogy ennyivel tér el a környékbeli átlagtól.

Ennek a m² ára
Törökőr m² ár
XIV. kerület m² ár
Budapest m² ár
1289 e Ft
1365 e Ft 6%
1534 e Ft 16%
1680 e Ft 23%
Ennek az ára
Törökőr átlagár
XIV. kerület átlagár
Budapest átlagár
98 M Ft m Ft
89 m Ft -10%
81.2 m Ft -21%
90.6 m Ft -8%

Az ingatlan elhelyezkedése

Cím: Budapest, XIV. kerület, Törökőr, 2. emelet

Eladó ingatlanok a környékről

Eladó téglalakás
Eladó téglalakás

XIV. kerület, Kiszugló, Kövér Lajos utca

100 M Ft
1 szoba
330 m2
Eladó téglalakás
Eladó téglalakás

XIV. kerület

105.99 M Ft
3 szoba
67 m2
Eladó téglalakás
Eladó téglalakás

XIV. kerület

230 M Ft
15 szoba
478 m2
Eladó téglalakás
Eladó téglalakás

XIV. kerület, Törökőr, Bíbor utca

105.99 M Ft
3 szoba
69 m2
Eladó téglalakás
Eladó téglalakás

XIV. kerület, Alsórákos, Must utca

66 M Ft
1 + 1 szoba
53 m2
Eladó üzlethelyiség
Eladó üzlethelyiség

II. kerület, Országút, Margit körút

6.999 M Ft
5 m2
Eladó téglalakás
Eladó téglalakás

XIV. kerület

107.49 M Ft
3 szoba
64 m2
Eladó téglalakás
Eladó téglalakás

V. kerület, Belváros, Belgrád rakpart

78 M Ft
1 + 1 szoba
42 m2
Eladó téglalakás
Eladó téglalakás

XIV. kerület

105.99 M Ft
3 szoba
69 m2
Eladó téglalakás
Eladó téglalakás

III. kerület, Rómaifürdő, Királyok útja

139 M Ft
3 szoba
65 m2
Eladó téglalakás
Eladó téglalakás

XIV. kerület, Alsórákos, Mogyoródi út

165 M Ft
4 + 1 szoba
275 m2
Eladó téglalakás
Eladó téglalakás

XIV. kerület, Alsórákos

120.73 M Ft
3 szoba
73 m2
Eladó téglalakás
Eladó téglalakás

XIV. kerület, Alsórákos

165 M Ft
4 + 1 szoba
190 m2
Eladó téglalakás
Eladó téglalakás

VII. kerület, Belső Erzsébetváros, Erzsébet körút

160 M Ft
3 szoba
88 m2
Eladó téglalakás
Eladó téglalakás

XIV. kerület, Istvánmező, Ilka utca

110 M Ft
4 szoba
95 m2
Eladó téglalakás
Eladó téglalakás

XIV. kerület, Városliget

171.936 M Ft
2 szoba
117 m2
Eladó téglalakás
Eladó téglalakás

I. kerület, Krisztinaváros, Kosciuszkó Tádé utca

48 M Ft
1 szoba
30 m2
Eladó téglalakás
Eladó téglalakás

XVIII. kerület

62.9 M Ft
2 szoba
43 m2
Eladó téglalakás
Eladó téglalakás

VIII. kerület, Palotanegyed, Rákóczi út

190 M Ft
5 szoba
121 m2
Eladó téglalakás
Eladó téglalakás

XXI. kerület, Csepel belváros, Kossuth Lajos utca 51

60.5 M Ft
2 szoba
57 m2
Eladó téglalakás
Eladó téglalakás

III. kerület, Óbuda, Szomolnok utca

89.9 M Ft
2 + 2 szoba
96 m2
Eladó téglalakás
Eladó téglalakás

V. kerület, Belváros, Petőfi Sándor utca

134 M Ft
2 szoba
59 m2
Eladó téglalakás
Eladó téglalakás

XI. kerület, Gellérthegy, Gombócz Zoltán utca

142 M Ft
2 + 1 szoba
71 m2
Eladó téglalakás
Eladó téglalakás

VI. kerület, Külső Terézváros, Szív utca

119.5 M Ft
3 szoba
94 m2

Falusi CSOK ingatlanok

Eladó családi ház
Eladó családi ház

Ságvár

64.9 M Ft
3 szoba
70 m2
Eladó családi ház
Eladó családi ház

Ónod, Kossuth út 10

27.499 M Ft
3 + 2 szoba
120 m2
Eladó családi ház
Eladó családi ház

Nagyberény

23.9 M Ft
3 szoba
69 m2
Eladó családi ház
Eladó családi ház

Bodajk

67 M Ft
2 szoba
72 m2
Eladó családi ház
Eladó családi ház

Andornaktálya

65 M Ft
3 szoba
80 m2
Eladó családi ház
Eladó családi ház

Tápióság

62 M Ft
4 szoba
72 m2
Eladó családi ház
Eladó családi ház

Mencshely

99 M Ft
3 szoba
126 m2
Eladó családi ház
Eladó családi ház

Jászalsószentgyörgy

39.9 M Ft
2 szoba
74 m2