Eladó téglalakás
Budapest, XIV. kerület, Kiszugló, 2. emelet

+ 4 kép 1/7
69 000 000 Ft69 M Ft 1 437 500 Ft/m2
2 szoba
48 m2
2. emelet
építés éve:2026

Részletes adatok

Fűtés: Gázkazán
Energetikai besorolás: Nem adta meg a hirdető

Az OTP Bank lakáshitel ajánlataFizetett hirdetés

+36 70 206
Tamásné Mocsári Ildikó
referens

Érdekel az OTP Bank kedvezményes lakáshitel ajánlata? *

* A kérdésre „Igen” válasz bejelölése esetén, az „Üzenet küldése” gombra kattintva kijelentem, hogy az OTP Bank Nyrt. Adatkezelési tájékoztatójának tartalmát megismertem és tudomásul vettem.

Eladó téglalakás leírása

Eladó új építésű, exkluzív lakás Zugló szívében, egy a Paskál gyógyfürdő, Mogyoródi úti Sportközpont és a Rákos-patak parkosított környezetében található 14 lakásos Vezér úti társasházban.
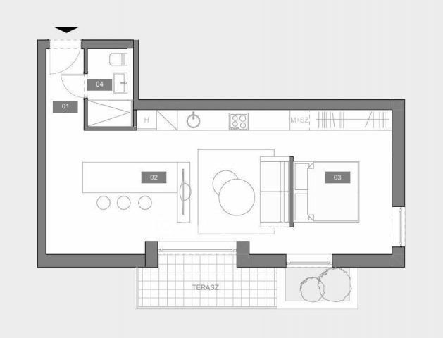
Az épület 2. emeletén található nappali + egyszobás összkomfortos lakás alapterülete 48 négyzetméter, amit 6 négyzetméteres terasz tesz még tágasabbá! A terasz a nappali-konyha-étkezőhöz csatlakozik. A nappalitól a hálórészt egy tolóajtókkal kiegészített falszakasz optikailag elkülöníti. A zuhanyzó-wc a belépő mellett, a gardróbrész a hálótér mellett kapott helyet.
A lakás tömegközlekedéssel jól megközelíthető a 77, 81, 82 és 82A trolival, amelyek több földalatti állomással is rendelkező csomóponttal teremtenek kapcsolatot. A közvetlen közelben oktatási-nevelési létesítmények (bölcsőde, óvoda, általános iskola) egyaránt vannak és játszótérrel, valamint sportolási lehetőségekkel is gazdagon ellátott. Nagyobb bevásárlóközpont a közelben az Örs vezér téri Sugár és Árkád.
A lakás csendes, benne a Vezér út zsivaja a beépített korszerű szerkezeteknek és a főforgalmú út mellett lévő szervíz utca nyújtotta távolság miatt jelentéktelen.
A lakást adottságai különösen a gyermektelen pároknak teheti vonzóvá.
A lakás várható átadása 2026 év vége, ezért a bemutatott alaprajzon a leendő vevő által kért változtatások még végrehajthatók. A fizetési ütemezés szerint a vevő egyéni igényeit és lehetőségét figyelembe véve kerül meghatározásra.
A lakást egyedi kondenzációs kazán fűti padlófűtéssel és ez állít elő használati melegvizet is. A lakótér kellemes légállapotát egy inverteres hűtő-fűtő klíma szolgálja ki és megegyezés alapján egyéni igény szerint a hálórész külön is klimatizálható. A nyílászárókra - ugyancsak megegyezés alapján egyéni igény szerint kézi vagy gépi mozgatású műanyag vagy fém hő- és hangszigetelt redőnyök kerülnek. A konyhapult kiépítésre kerül, ebben gáz főzőlapos villanysütő és kétmedencés, csöpögtető mosogató kap helyet, a hűtő szintén megegyezés alapján egyéni igény szerint kerül beépítésre.
A társasház formája és külseje egyaránt modernitást sugall, a teljes egészében hőszigetelt homlokzat az alkalmazott anyagoknak és színeknek köszönhetően mértéktartó és környezetbe illeszkedő, egyszersmind tetszetős lesz.

Referencia szám: M314940-ZE

Hirdetés feltöltve: 2025. 10. 15. Utoljára módosítva: 2025. 10. 15.

2 szobás téglalakások ára Budapesten

Ebből az összehasonlításból megtudhatod, hogyan viszonyul a lakás ára a környékbeli téglalakások átlagos árához. Ez nem azt jelenti, hogy ennyivel olcsóbb vagy drágább, mint amennyit a lakás ér, hanem hogy ennyivel tér el a környékbeli átlagtól.

Ennek a m² ára
Kiszugló m² ár
XIV. kerület m² ár
Budapest m² ár
1438 e Ft
1392 e Ft -3%
1546 e Ft 7%
1677 e Ft 14%
Ennek az ára
Kiszugló átlagár
XIV. kerület átlagár
Budapest átlagár
69 M Ft m Ft
93.9 m Ft 27%
82 m Ft 16%
90.5 m Ft 24%

Az ingatlan elhelyezkedése

Cím: Budapest, XIV. kerület, Kiszugló, 2. emelet

Eladó ingatlanok a környékről

Eladó téglalakás
Eladó téglalakás

IX. kerület, Ferencváros, Mester utca

64 M Ft
1 szoba
38 m2
Eladó téglalakás
Eladó téglalakás

XIV. kerület

105.99 M Ft
3 szoba
67 m2
Eladó téglalakás
Eladó téglalakás

VI. kerület

99.9 M Ft
2 szoba
67 m2
Eladó panellakás
Eladó panellakás

III. kerület

105 M Ft
3 szoba
73 m2
Eladó téglalakás
Eladó téglalakás

XIV. kerület, Törökőr, Bíbor utca

105.99 M Ft
3 szoba
69 m2
Eladó téglalakás
Eladó téglalakás

XIV. kerület

107.49 M Ft
3 szoba
64 m2
Eladó téglalakás
Eladó téglalakás

XIV. kerület, Istvánmező, Ilka utca

92 M Ft
3 + 1 szoba
106 m2
Eladó téglalakás
Eladó téglalakás

IX. kerület, Ferencváros, Mester utca

59 M Ft
1 szoba
40 m2
Eladó téglalakás
Eladó téglalakás

XIV. kerület, Herminamező, Uzsoki utca

67 M Ft
1 + 1 szoba
60 m2
Eladó téglalakás
Eladó téglalakás

XIV. kerület

105.99 M Ft
3 szoba
69 m2
Eladó téglalakás
Eladó téglalakás

XIV. kerület

95.9 M Ft
3 szoba
68 m2
Eladó téglalakás
Eladó téglalakás

I. kerület

85 M Ft
2 szoba
60 m2
Eladó téglalakás
Eladó téglalakás

XIII. kerület

52.9 M Ft
1 szoba
36 m2
Eladó téglalakás
Eladó téglalakás

XIV. kerület, Alsórákos

165 M Ft
4 + 1 szoba
190 m2
Eladó téglalakás
Eladó téglalakás

XIV. kerület, Törökőr, Bíbor utca

105.99 M Ft
3 szoba
69 m2
Eladó téglalakás
Eladó téglalakás

XIV. kerület

107 M Ft
2 szoba
70 m2
Eladó téglalakás
Eladó téglalakás

XIV. kerület, Kiszugló, Kövér Lajos utca

100 M Ft
1 szoba
330 m2
Eladó téglalakás
Eladó téglalakás

XI. kerület

72 M Ft
2 szoba
50 m2
Eladó téglalakás
Eladó téglalakás

XIV. kerület, Herminamező

70 M Ft
8 szoba
360 m2
Eladó téglalakás
Eladó téglalakás

XIX. kerület, Kispest

89.9 M Ft
3 szoba
60 m2
Eladó téglalakás
Eladó téglalakás

XIV. kerület, Istvánmező, Hungária körút

119.6 M Ft
4 szoba
104 m2
Eladó téglalakás
Eladó téglalakás

XIX. kerület, Kispest

89.9 M Ft
3 szoba
60 m2
Eladó téglalakás
Eladó téglalakás

XIV. kerület

108.9 M Ft
3 szoba
65 m2
Eladó családi ház
Eladó családi ház

II. kerület

294.9 M Ft
6 szoba
270 m2

Falusi CSOK ingatlanok

Eladó családi ház
Eladó családi ház

Nyírtura

99 M Ft
4 szoba
280 m2
Eladó téglalakás
Eladó téglalakás

Hegyeshalom

35 M Ft
43 m2
Eladó családi ház
Eladó családi ház

Badacsonytomaj

199.8 M Ft
3 szoba
166 m2
Eladó családi ház
Eladó családi ház

Szilvágy

49.99 M Ft
3 szoba
90 m2
Eladó családi ház
Eladó családi ház

Tés

34.9 M Ft
2 szoba
60 m2
Eladó családi ház
Eladó családi ház

Segesd

3.9 M Ft
2 szoba
65 m2
Eladó családi ház
Eladó családi ház

Galgahévíz

42 M Ft
4 szoba
101 m2
Eladó családi ház
Eladó családi ház

Galgagyörk

46.9 M Ft
4 szoba
105 m2