Eladó téglalakás
Budapest, XIV. kerület, 1. emelet

+ 4 kép 1/7
69 000 000 Ft69 M Ft 1 437 500 Ft/m2
2 szoba
48 m2
1. emelet
építés éve:2026

Részletes adatok

Fűtés: Gázkazán
Energetikai besorolás: Nem adta meg a hirdető

Az OTP Bank lakáshitel ajánlataFizetett hirdetés

+36 30 400
Papp-Horváth Katalin
Otp Ingatlanpont Falk Miksa

Érdekel az OTP Bank kedvezményes lakáshitel ajánlata? *

* A kérdésre „Igen” válasz bejelölése esetén, az „Üzenet küldése” gombra kattintva kijelentem, hogy az OTP Bank Nyrt. Adatkezelési tájékoztatójának tartalmát megismertem és tudomásul vettem.

Eladó téglalakás leírása

Eladó új építésű, exkluzív lakás Zugló szívében, egy a Paskál gyógyfürdő, Mogyoródi úti Sportközpont és a Rákos-patak parkosított környezetében található 14 lakásos Vezér úti társasházban.
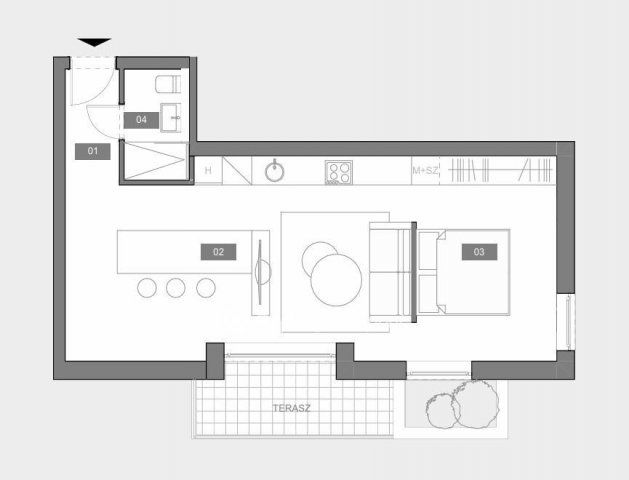
Az épület 2. emeletén található nappali + egyszobás összkomfortos lakás alapterülete 48 négyzetméter, amit 6 négyzetméteres terasz tesz még tágasabbá! A terasz a nappali-konyha-étkezőhöz csatlakozik. A nappalitól a hálórészt egy tolóajtókkal kiegészített falszakasz optikailag elkülöníti. A zuhanyzó-wc a belépő mellett, a gardróbrész a hálótér mellett kapott helyet.
A lakás tömegközlekedéssel jól megközelíthető a 77, 81, 82 és 82A trolival, amelyek több földalatti állomással is rendelkező csomóponttal teremtenek kapcsolatot. A közvetlen közelben oktatási-nevelési létesítmények (bölcsőde, óvoda, általános iskola) egyaránt vannak és játszótérrel, valamint sportolási lehetőségekkel is gazdagon ellátott. Nagyobb bevásárlóközpont a közelben az Örs vezér téri Sugár és Árkád.
A lakás csendes, benne a Vezér út zsivaja a beépített korszerű szerkezeteknek és a főforgalmú út mellett lévő szervíz utca nyújtotta távolság miatt jelentéktelen.
A lakást adottságai különösen a gyermektelen pároknak teheti vonzóvá.
A lakás várható átadása 2026 év vége, ezért a bemutatott alaprajzon a leendő vevő által kért változtatások még végrehajthatók. A fizetési ütemezés szerint a vevő egyéni igényeit és lehetőségét figyelembe véve kerül meghatározásra.
A lakást egyedi kondenzációs kazán fűti padlófűtéssel és ez állít elő használati melegvizet is. A lakótér kellemes légállapotát egy inverteres hűtő-fűtő klíma szolgálja ki és megegyezés alapján egyéni igény szerint a hálórész külön is klimatizálható. A nyílászárókra - ugyancsak megegyezés alapján egyéni igény szerint kézi vagy gépi mozgatású műanyag vagy fém hő- és hangszigetelt redőnyök kerülnek. A konyhapult kiépítésre kerül, ebben gáz főzőlapos villanysütő és kétmedencés, csöpögtető mosogató kap helyet, a hűtő szintén megegyezés alapján egyéni igény szerint kerül beépítésre.
A társasház formája és külseje egyaránt modernitást sugall, a teljes egészében hőszigetelt homlokzat az alkalmazott anyagoknak és színeknek köszönhetően mértéktartó és környezetbe illeszkedő, egyszersmind tetszetős lesz.

Referencia szám: M314940

Hirdetés feltöltve: 2025. 10. 11. Utoljára módosítva: 2025. 10. 11.

2 szobás téglalakások ára Budapesten

Ebből az összehasonlításból megtudhatod, hogyan viszonyul a lakás ára a környékbeli téglalakások átlagos árához. Ez nem azt jelenti, hogy ennyivel olcsóbb vagy drágább, mint amennyit a lakás ér, hanem hogy ennyivel tér el a környékbeli átlagtól.

Ennek a m² ára
XIV. kerület m² ár
Budapest m² ár
1438 e Ft
1511 e Ft 5%
1684 e Ft 15%
Ennek az ára
XIV. kerület átlagár
Budapest átlagár
69 M Ft m Ft
108.3 m Ft 36%
90.7 m Ft 24%

Az ingatlan elhelyezkedése

Cím: Budapest, XIV. kerület, 1. emelet

Eladó ingatlanok a környékről

Eladó téglalakás
Eladó téglalakás

VI. kerület, Külső Terézváros, Szív utca

119.5 M Ft
3 szoba
94 m2
Eladó téglalakás
Eladó téglalakás

VI. kerület, Külső Terézváros, Szófia utca

119.9 M Ft
4 szoba
103 m2
Eladó téglalakás
Eladó téglalakás

VII. kerület, Külső Erzsébetváros, Murányi utca

104 M Ft
4 + 1 szoba
129 m2
Eladó téglalakás
Eladó téglalakás

V. kerület

84 M Ft
2 szoba
47 m2
Eladó téglalakás
Eladó téglalakás

VI. kerület

159 M Ft
3 szoba
96 m2
Eladó téglalakás
Eladó téglalakás

XIII. kerület, Angyalföld, Fiastyúk utca

41.99 M Ft
1 + 1 szoba
34 m2
Eladó téglalakás
Eladó téglalakás

VII. kerület, Belső Erzsébetváros, Erzsébet körút

94.9 M Ft
1 + 1 szoba
71 m2
Eladó téglalakás
Eladó téglalakás

XIV. kerület, Törökőr, Bíbor utca

105.99 M Ft
3 szoba
69 m2
Eladó téglalakás
Eladó téglalakás

XIV. kerület, Alsórákos, Mogyoródi út

165 M Ft
4 + 1 szoba
275 m2
Eladó téglalakás
Eladó téglalakás

III. kerület, Újlak, Árpád fejedelem útja

117.5 M Ft
3 + 1 szoba
73 m2
Eladó téglalakás
Eladó téglalakás

XIV. kerület, Törökőr, Bíbor utca

105.99 M Ft
3 szoba
69 m2
Eladó téglalakás
Eladó téglalakás

XIV. kerület, Kiszugló, Angol utca

59.9 M Ft
1 szoba
44 m2
Eladó téglalakás
Eladó téglalakás

XIV. kerület

105.99 M Ft
3 szoba
69 m2
Eladó téglalakás
Eladó téglalakás

XIV. kerület, Kiszugló, Kövér Lajos utca

100 M Ft
1 szoba
330 m2
Eladó téglalakás
Eladó téglalakás

VIII. kerület, Józsefváros, Nagy Templom utca

125 M Ft
4 + 2 szoba
152 m2
Eladó téglalakás
Eladó téglalakás

XIV. kerület, Istvánmező, Ilka utca

110 M Ft
4 szoba
95 m2
Eladó téglalakás
Eladó téglalakás

V. kerület

64.9 M Ft
1 szoba
37 m2
Eladó téglalakás
Eladó téglalakás

X. kerület, Óhegy

99.9 M Ft
5 szoba
106 m2
Eladó téglalakás
Eladó téglalakás

XIV. kerület

80.53 M Ft
2 szoba
51 m2
Eladó téglalakás
Eladó téglalakás

XIV. kerület, Törökőr

110 M Ft
4 szoba
95 m2
Eladó családi ház
Eladó családi ház

XXIII. kerület, Soroksár

79 M Ft
7 szoba
418 m2
Eladó téglalakás
Eladó téglalakás

XIV. kerület, Istvánmező, Ilka utca

92 M Ft
3 + 1 szoba
106 m2
Eladó téglalakás
Eladó téglalakás

XIV. kerület

107.49 M Ft
3 szoba
64 m2
Eladó téglalakás
Eladó téglalakás

XIV. kerület, Városliget

176.44 M Ft
2 szoba
117 m2

Falusi CSOK ingatlanok

Eladó családi ház
Eladó családi ház

Bezenye

84.9 M Ft
4 + 1 szoba
145 m2
Eladó családi ház
Eladó családi ház

Tihany

119.9 M Ft
3 + 1 szoba
92 m2
Eladó családi ház
Eladó családi ház

Ceglédbercel

95 M Ft
6 szoba
220 m2
Eladó családi ház
Eladó családi ház

Tök

125.4 M Ft
4 szoba
135 m2
Eladó családi ház
Eladó családi ház

Dióskál

20 M Ft
2 szoba
102 m2
Eladó családi ház
Eladó családi ház

Pusztamiske

29.9 M Ft
4 szoba
156 m2
Eladó családi ház
Eladó családi ház

Bakonybél

119 M Ft
5 szoba
160 m2
Eladó családi ház
Eladó családi ház

Bakonycsernye

39 M Ft
3 szoba
350 m2