Eladó téglalakás
Budapest, XIV. kerület, Alsórákos, földszint

+ 15 kép 1/18
95 000 000 Ft95 M Ft 1 397 059 Ft/m2
1 + 2 szoba
68 m2
földszint
építés éve:1978

Részletes adatok

Állapot: Felújított
Fűtés: Távfűtés
Parkolás: Kocsibeálló
Energetikai besorolás: Nem adta meg a hirdető

Az OTP Bank lakáshitel ajánlataFizetett hirdetés

+36 70 605
Somogyi Nikoletta
referens

Érdekel az OTP Bank kedvezményes lakáshitel ajánlata? *

* A kérdésre „Igen” válasz bejelölése esetén, az „Üzenet küldése” gombra kattintva kijelentem, hogy az OTP Bank Nyrt. Adatkezelési tájékoztatójának tartalmát megismertem és tudomásul vettem.

Eladó téglalakás leírása

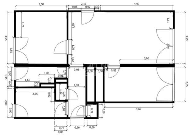
Zuglóban a Sárrèt parknál,nyugodt mellèkutcában, 4 szintes rendezett társasház földszintjén kínálunk eladásra egy igényesen felújított modern, hangulatos, 68nm-es amerikai konyhás nappali +2 külön bejáratú szobával rendelkező lakást.

Saját parkolóhely(udvari beálló) díjmentesen , +számos extra jellemzi az ingatlant.

Teljes körű felújítás 2019-ben!

Vezetékek, burkolatok, szaniterek, parketta, radiatorok, nyílászárók minden felújítva!!

Akár teljes butorozattal is eladó!!

Távfűtés modern radiatorokkal!!

Közös költség 13eft.

Környéken a legszebben felújított ház!!

Garázs bérelhető!!

Környéken kutyafuttató, játszótér zöld környezet!

Tehermentes, gyorsan költözhető.

Kiváló befektetés!!!

Magas hozammal kiadható!!

Hitel ügyintézésben teljes körűen tudunk segiteni!!

Ar 95mft.

Tel 70//605 //0504 ...TOVÁBBI, TÖBBEZRES INGATLAN KÍNÁLAT: www.gdn-ingatlan.hu - GDN azonosító: 388127

Hirdetés feltöltve: 2025. 10. 06. Utoljára módosítva: 2025. 10. 06.

3 szobás téglalakások ára Budapesten

Ebből az összehasonlításból megtudhatod, hogyan viszonyul a lakás ára a környékbeli téglalakások átlagos árához. Ez nem azt jelenti, hogy ennyivel olcsóbb vagy drágább, mint amennyit a lakás ér, hanem hogy ennyivel tér el a környékbeli átlagtól.

Ennek a m² ára
Alsórákos m² ár
XIV. kerület m² ár
Budapest m² ár
1397 e Ft
1649 e Ft 15%
1534 e Ft 9%
1701 e Ft 18%
Ennek az ára
Alsórákos átlagár
XIV. kerület átlagár
Budapest átlagár
95 M Ft m Ft
115.9 m Ft 18%
115.5 m Ft 18%
134.4 m Ft 29%

Az ingatlan elhelyezkedése

Cím: Budapest, XIV. kerület, Alsórákos, földszint

Eladó ingatlanok a környékről

Eladó téglalakás
Eladó téglalakás

XIV. kerület

105.99 M Ft
3 szoba
69 m2
Eladó családi ház
Eladó családi ház

III. kerület

675.8 M Ft
11 szoba
315 m2
Eladó téglalakás
Eladó téglalakás

XIV. kerület, Alsórákos, Mogyoródi út

165 M Ft
4 + 1 szoba
275 m2
Eladó családi ház
Eladó családi ház

XII. kerület

1407.6 M Ft
4 + 2 szoba
535 m2
Eladó téglalakás
Eladó téglalakás

XI. kerület

71.9 M Ft
1 szoba
31 m2
Eladó téglalakás
Eladó téglalakás

XIV. kerület, Városliget

174.973 M Ft
2 szoba
117 m2
Eladó téglalakás
Eladó téglalakás

XIV. kerület, Alsórákos, Must utca

66 M Ft
1 + 1 szoba
53 m2
Eladó családi ház
Eladó családi ház

XIV. kerület

285 M Ft
13 szoba
470 m2
Eladó téglalakás
Eladó téglalakás

XIV. kerület, Herminamező

70 M Ft
8 szoba
360 m2
Eladó téglalakás
Eladó téglalakás

VII. kerület

57.5 M Ft
2 szoba
48 m2
Eladó téglalakás
Eladó téglalakás

XIV. kerület, Kiszugló, Angol utca

59.9 M Ft
1 szoba
44 m2
Eladó téglalakás
Eladó téglalakás

XIV. kerület

107.49 M Ft
3 szoba
64 m2
Eladó panellakás
Eladó panellakás

XIX. kerület

64.9 M Ft
2 + 1 szoba
67 m2
Eladó téglalakás
Eladó téglalakás

XIV. kerület

80.53 M Ft
2 szoba
51 m2
Eladó téglalakás
Eladó téglalakás

XIV. kerület

107 M Ft
2 szoba
70 m2
Eladó téglalakás
Eladó téglalakás

XIV. kerület, Törökőr, Bíbor utca

105.99 M Ft
3 szoba
69 m2
Eladó panellakás
Eladó panellakás

XIII. kerület, Angyalföld

90 M Ft
3 szoba
67 m2
Eladó téglalakás
Eladó téglalakás

XVIII. kerület

77.99 M Ft
3 szoba
72 m2
Eladó téglalakás
Eladó téglalakás

XIV. kerület, Törökőr, Bíbor utca

105.99 M Ft
3 szoba
69 m2
Eladó téglalakás
Eladó téglalakás

XVIII. kerület

57.9 M Ft
2 szoba
40 m2
Eladó téglalakás
Eladó téglalakás

XIV. kerület, Törökőr

110 M Ft
4 szoba
95 m2
Eladó téglalakás
Eladó téglalakás

XIV. kerület, Istvánmező, Hungária körút

119.6 M Ft
4 szoba
104 m2
Eladó téglalakás
Eladó téglalakás

XIV. kerület, Istvánmező, Ilka utca

92 M Ft
3 + 1 szoba
106 m2
Eladó téglalakás
Eladó téglalakás

X. kerület

59 M Ft
3 szoba
74 m2

Falusi CSOK ingatlanok

Eladó téglalakás
Eladó téglalakás

Újhartyán

69.99 M Ft
3 szoba
75 m2
Eladó családi ház
Eladó családi ház

Tápióbicske

37.5 M Ft
2 szoba
70 m2
Eladó családi ház
Eladó családi ház

Balatonkenese

99.8 M Ft
5 szoba
138 m2
Eladó családi ház
Eladó családi ház

Tiszadada

24.99 M Ft
4 szoba
110 m2
Eladó családi ház
Eladó családi ház

Dudar

19 M Ft
2 szoba
60 m2
Eladó családi ház
Eladó családi ház

Szalkszentmárton

49.3 M Ft
4 szoba
150 m2
Eladó családi ház
Eladó családi ház

Bag

99 M Ft
6 + 1 szoba
194 m2
Eladó családi ház
Eladó családi ház

Erdőbénye

69.5 M Ft
4 szoba
148 m2