River Life

Eladó téglalakás
Budapest, XIV. kerület, Alsórákos, földszint

+ 6 kép 1/9
99 800 000 Ft99.8 M Ft 1 134 091 Ft/m2
4 szoba
88 m2
földszint
építés éve:2025

Részletes adatok

Fűtés: Egyéb
Energetikai besorolás: Nem adta meg a hirdető

Az OTP Bank lakáshitel ajánlataFizetett hirdetés

+36 70 242
Erdélyi Miklós István
Otp Ingatlanpont Falk Miksa

Érdekel az OTP Bank kedvezményes lakáshitel ajánlata? *

* A kérdésre „Igen” válasz bejelölése esetén, az „Üzenet küldése” gombra kattintva kijelentem, hogy az OTP Bank Nyrt. Adatkezelési tájékoztatójának tartalmát megismertem és tudomásul vettem.

Eladó téglalakás leírása

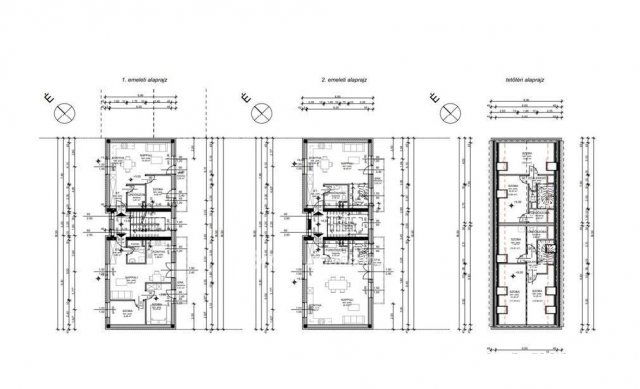
***Új építésű, a Nagy Lajos király útnál.*** Az utolsó lakás!! Eladó Zugló központi részén, egy új építésű, mindössze 5 lakásos, modern társasházban egy belső kétszintes, 88 m2-es, 4 szobás, dupla komfortos lakás. Főbb jellemzők: 88 m2-es, belső kétszintes kialakítás 4 kényelmes szoba 2 különálló fürdőszoba, Laminált parkettás szobák, modern hidegburkolatok, Erkély a csendes, hátsó udvar felé. Igényes, letisztult kivitelezés. Várható költözés: 2025. augusztus.
Ingatlanjogász ügyvédi iroda vagyunk.

Referencia szám: M305754-ZE

Hirdetés feltöltve: 2025. 06. 16. Utoljára módosítva: 2025. 11. 19.

4 szobás téglalakások ára Budapesten

Ebből az összehasonlításból megtudhatod, hogyan viszonyul a lakás ára a környékbeli téglalakások átlagos árához. Ez nem azt jelenti, hogy ennyivel olcsóbb vagy drágább, mint amennyit a lakás ér, hanem hogy ennyivel tér el a környékbeli átlagtól.

Ennek a m² ára
Alsórákos m² ár
XIV. kerület m² ár
Budapest m² ár
1134 e Ft
1541 e Ft 26%
1445 e Ft 22%
1731 e Ft 34%
Ennek az ára
Alsórákos átlagár
XIV. kerület átlagár
Budapest átlagár
99.8 M Ft m Ft
145.4 m Ft 31%
145.9 m Ft 32%
181.8 m Ft 45%

Az ingatlan elhelyezkedése

Cím: Budapest, XIV. kerület, Alsórákos, földszint

Eladó ingatlanok a környékről

Eladó téglalakás
Eladó téglalakás

XIV. kerület

105.99 M Ft
3 szoba
69 m2
Eladó téglalakás
Eladó téglalakás

VIII. kerület

53.9 M Ft
1 szoba
42 m2
Eladó téglalakás
Eladó téglalakás

VIII. kerület, Palotanegyed, Rákóczi út

190 M Ft
5 szoba
121 m2
Eladó téglalakás
Eladó téglalakás

XIV. kerület, Kiszugló, Angol utca

59.9 M Ft
1 szoba
44 m2
Eladó téglalakás
Eladó téglalakás

XIV. kerület, Alsórákos, Kassai utca

99 M Ft
2 + 1 szoba
89 m2
Eladó téglalakás
Eladó téglalakás

VI. kerület, Külső Terézváros, Szófia utca

119.9 M Ft
4 szoba
103 m2
Eladó üzlethelyiség
Eladó üzlethelyiség

II. kerület, Országút, Margit körút

6.999 M Ft
5 m2
Eladó téglalakás
Eladó téglalakás

XIV. kerület, Alsórákos, Mogyoródi út

165 M Ft
4 + 1 szoba
275 m2
Eladó téglalakás
Eladó téglalakás

XIV. kerület, Törökőr

110 M Ft
4 szoba
95 m2
Eladó téglalakás
Eladó téglalakás

VII. kerület, Belső Erzsébetváros, Erzsébet körút

89.9 M Ft
1 + 1 szoba
71 m2
Eladó téglalakás
Eladó téglalakás

III. kerület, Rómaifürdő, Királyok útja

148 M Ft
3 szoba
65 m2
Eladó téglalakás
Eladó téglalakás

XIV. kerület, Törökőr, Bíbor utca

105.99 M Ft
3 szoba
69 m2
Eladó téglalakás
Eladó téglalakás

XIV. kerület, Istvánmező, Ilka utca

110 M Ft
4 szoba
95 m2
Eladó téglalakás
Eladó téglalakás

XIV. kerület

230 M Ft
15 szoba
478 m2
Eladó téglalakás
Eladó téglalakás

XIV. kerület

107 M Ft
2 szoba
70 m2
Eladó téglalakás
Eladó téglalakás

XIV. kerület, Kiszugló, Kövér Lajos utca

100 M Ft
1 szoba
330 m2
Eladó téglalakás
Eladó téglalakás

XIV. kerület, Istvánmező, Ilka utca

92 M Ft
3 + 1 szoba
106 m2
Eladó téglalakás
Eladó téglalakás

XV. kerület

75.9 M Ft
2 szoba
60 m2
Eladó téglalakás
Eladó téglalakás

VII. kerület, Belső Erzsébetváros, Erzsébet körút

160 M Ft
3 szoba
88 m2
Eladó téglalakás
Eladó téglalakás

XI. kerület, Kelenföld

105 M Ft
2 szoba
43 m2
Eladó téglalakás
Eladó téglalakás

I. kerület, Krisztinaváros, Kosciuszkó Tádé utca

48 M Ft
1 szoba
30 m2
Eladó családi ház
Eladó családi ház

XXII. kerület, Budafok, Baross utca

199 M Ft
6 + 1 szoba
200 m2
Eladó téglalakás
Eladó téglalakás

XIV. kerület, Törökőr, Bíbor utca

105.99 M Ft
3 szoba
69 m2
Eladó téglalakás
Eladó téglalakás

XIV. kerület, Törökőr, Bíbor utca

105.99 M Ft
3 szoba
69 m2

Falusi CSOK ingatlanok

Eladó családi ház
Eladó családi ház

Ceglédbercel

64.9 M Ft
3 szoba
87 m2
Eladó családi ház
Eladó családi ház

Nyékládháza

29.9 M Ft
2 + 1 szoba
111 m2
Eladó családi ház
Eladó családi ház

Nyékládháza

45 M Ft
3 szoba
90 m2
Eladó családi ház
Eladó családi ház

Sümegcsehi

119 M Ft
5 szoba
237 m2
Eladó családi ház
Eladó családi ház

Ásványráró

94.9 M Ft
6 szoba
180 m2
Eladó családi ház
Eladó családi ház

Adásztevel

8.9 M Ft
2 szoba
63 m2
Eladó családi ház
Eladó családi ház

Csemő, Vasút dűlő

20.9 M Ft
3 szoba
68 m2
Eladó családi ház
Eladó családi ház

Kisnána

27.9 M Ft
4 szoba
180 m2