Astora Art House

Eladó téglalakás
Budapest, XIII. kerület, Angyalföld, 1. emelet

131 750 000 Ft131.75 M Ft 1 550 000 Ft/m2
3 szoba
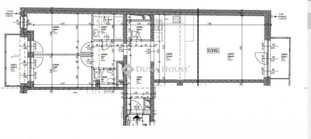
85 m²
1. emelet
építés éve:2021

Részletes adatok

Állapot: Újszerű
Fűtés: Távfűtés
Emelet: 1. emelet
Extrák: Lift
Energetikai besorolás: Nem adta meg a hirdető

Az OTP Bank lakáshitel ajánlataFizetett hirdetés

+36 1 690
Balogh Gábor
referens

Érdekel az OTP Bank kedvezményes lakáshitel ajánlata? *

* A kérdésre „Igen” válasz bejelölése esetén, az „Üzenet küldése” gombra kattintva kijelentem, hogy az OTP Bank Nyrt. Adatkezelési tájékoztatójának tartalmát megismertem és tudomásul vettem.

Eladó téglalakás leírása

Kiváló lokáció, közkedvelt lakópark, modern, fiatalos lakások!Budapesten, a XIII. kerület Angyalföld városrészén, egy 2021-ben épült, modern, liftes lakóparkban eladó egy 80 nm-es, 1. emeleti lakás 10 nm-es erkéllyel.A lakás amerikai konyhás nappalival, étkezővel és egy 2 hálószobával rendelkezik.A környék kiváló tömegközlekedési lehetőségekkel rendelkezik!A 14-es villamos, helyi autóbusz járatok, illetve akár az M3 metró megállója is csupán perc sétára található, így a belváros is könnyen megközelíthető.A lakáshoz teremgarázsban parkolóhely vásárolható vagy bérelhető.Találja meg nálunk leendő otthonát, aktuális befektetését!

131750000 Ft
Teljeskörű Díjmentes Hitelügyintézés, Otthon Start Program , közel 300 db Budapesti ingatlan a kínálaomtban, Több mint 80 Új építésű Budapesti Projekt elérhető a kinálatomban. Hétvégén is állok rendelkezésére.!!!

Balogh Gábor
Ingatlanspecialista
+36706786688

Referencia szám: LK089178-ZE

Hirdetés feltöltve: 2026. 01. 22. Utoljára módosítva: 2026. 05. 08.

3 szobás téglalakások ára Budapesten

Ebből az összehasonlításból megtudhatod, hogyan viszonyul a lakás ára a környékbeli téglalakások átlagos árához. Ez nem azt jelenti, hogy ennyivel olcsóbb vagy drágább, mint amennyit a lakás ér, hanem hogy ennyivel tér el a környékbeli átlagtól.

Ennek a m² ára
Angyalföld m² ár
XIII. kerület m² ár
Budapest m² ár
1550 e Ft
1823 e Ft 15%
1817 e Ft 15%
1706 e Ft 9%
Ennek az ára
Angyalföld átlagár
XIII. kerület átlagár
Budapest átlagár
131.75 M Ft m Ft
124.9 m Ft -5%
131 m Ft -1%
131.2 m Ft 0%

Az ingatlan elhelyezkedése

Cím: Budapest, XIII. kerület, Angyalföld, 1. emelet

Eladó ingatlanok a környékről

XIII. kerület, Vizafogó, Dráva utca
Eladó téglalakás

Budapest, XIII. kerület

105 M Ft
3 + 1 szoba
98 m²
XI. kerület, Kőérberek, Kánai út 31
Eladó téglalakás

Budapest, XI. kerület

160.99 M Ft
3 szoba
74 m²
III. kerület
Eladó téglalakás

Budapest, III. kerület

30.9 M Ft
1 szoba
17 m²
I. kerület, Víziváros, Szabó Ilonka utca
Eladó téglalakás

Budapest, I. kerület

130 M Ft
2 szoba
71 m²
XIII. kerület, Angyalföld
Eladó téglalakás

Budapest, XIII. kerület

84.9 M Ft
5 + 2 szoba
124 m²
XIII. kerület, Angyalföld, Dévai utca
Eladó téglalakás

Budapest, XIII. kerület

64.036 M Ft
1 szoba
33 m²
XIII. kerület, Angyalföld, Dévai utca
Eladó téglalakás

Budapest, XIII. kerület

146.496 M Ft
4 szoba
80 m²
XI. kerület, Kőérberek, Kánai út 31
Eladó téglalakás

Budapest, XI. kerület

121.49 M Ft
3 szoba
63 m²
XIII. kerület
Eladó téglalakás

Budapest, XIII. kerület

73.64 M Ft
2 szoba
47 m²
XI. kerület, Kőérberek, Kánai út 31
Eladó téglalakás

Budapest, XI. kerület

121.99 M Ft
3 szoba
61 m²
XIII. kerület, Vizafogó, Népfürdő utca 47
Eladó téglalakás

Budapest, XIII. kerület

82.06 M Ft
2 szoba
43 m²
II. kerület
Eladó családi ház

Budapest, II. kerület

750 M Ft
7 + 1 szoba
550 m²
XIII. kerület
Eladó téglalakás

Budapest, XIII. kerület

111.34 M Ft
2 szoba
55 m²
XII. kerület, Kissvábhegy, Határőr út
Eladó ikerház

Budapest, XII. kerület

960 M Ft
7 + 3 szoba
399 m²
XI. kerület, Kőérberek, Kánai út 31
Eladó téglalakás

Budapest, XI. kerület

117.49 M Ft
3 szoba
63 m²
III. kerület
Eladó panellakás

Budapest, III. kerület

69.9 M Ft
2 szoba
50 m²
XIII. kerület
Eladó téglalakás

Budapest, XIII. kerület

179.9 M Ft
4 + 1 szoba
155 m²
XI. kerület, Kőérberek, Kánai út 31
Eladó téglalakás

Budapest, XI. kerület

179.99 M Ft
4 szoba
88 m²
XIII. kerület
Eladó téglalakás

Budapest, XIII. kerület

127.12 M Ft
3 szoba
81 m²
III. kerület
Eladó panellakás

Budapest, III. kerület

78.9 M Ft
1 + 2 szoba
74 m²
XIII. kerület
Eladó téglalakás

Budapest, XIII. kerület

82.95 M Ft
2 szoba
49 m²
XIII. kerület, Paszomány utca
Eladó panellakás

Budapest, XIII. kerület

96.8 M Ft
2 + 1 szoba
73 m²
XVI. kerület, Rákosszentmihály, Krenedits Sándor utca 20
Eladó családi ház

Budapest, XVI. kerület

116 M Ft
3 + 1 szoba
75 m²
XIII. kerület
Eladó téglalakás

Budapest, XIII. kerület

259.35 M Ft
4 szoba
163 m²

Falusi CSOK ingatlanok

Herend
Eladó családi ház

Herend

144.9 M Ft
7 szoba
285 m²
Kaposgyarmat
Eladó családi ház

Kaposgyarmat

695 M Ft
6 szoba
610 m²
Badacsonytomaj
Eladó családi ház

Badacsonytomaj

285 M Ft
4 szoba
230 m²
Pénzesgyőr
Eladó családi ház

Pénzesgyőr

83.9 M Ft
5 + 1 szoba
135 m²
Érpatak
Eladó családi ház

Érpatak

35 M Ft
4 szoba
160 m²
Nagytevel
Eladó családi ház

Nagytevel

34.9 M Ft
3 szoba
110 m²
Berzence
Eladó családi ház

Berzence

40 M Ft
3 szoba
233 m²
Újhartyán
Eladó családi ház

Újhartyán

99.9 M Ft
5 szoba
168 m²