BAM Living

Eladó téglalakás
Budapest, XIII. kerület, Angyalföld, 3. emelet

1/2
84 884 000 Ft84.884 M Ft 1 845 304 Ft/m2
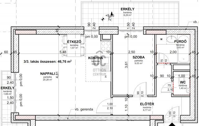
2 szoba
46 m²
3. emelet
építés éve:2026

Részletes adatok

Fűtés: Egyéb
Emelet: 3. emelet
Közmű: Gáz, Villany, Csatorna
Energetikai besorolás: Nem adta meg a hirdető

Az OTP Bank lakáshitel ajánlataFizetett hirdetés

+36 70 435
Frimmel András
referens

Érdekel az OTP Bank kedvezményes lakáshitel ajánlata? *

* A kérdésre „Igen” válasz bejelölése esetén, az „Üzenet küldése” gombra kattintva kijelentem, hogy az OTP Bank Nyrt. Adatkezelési tájékoztatójának tartalmát megismertem és tudomásul vettem.

Eladó téglalakás leírása

SZERKEZETKÉSZ
Projekt bemutatása

A XIII. kerület legfrekventáltabb részén, közel az M3-as metró Göncz Árpád Városközponti megállójához (Árpád híd) és az 1-es villamoshoz, csendes mellékutcában kínálunk eladásra újépítésű lakásokat, számos referenciával rendelkező, nagymúltú beruházó projektjében.

A lakások változatos méretűek: a stúdió lakástól a nagyteraszos, több szobásig minden típus megtalálható a házban. Mindegyikhez tartozik erkély vagy nagy méretű terasz. A földszinti lakások kertkapcsolatosak.

A társasház a jövő korának megfelelő, modern, hőszivattyús mennyezeti hűtés, -fűtéses rendszerű, lakásonként elkülönített szabályzókkal, ami minimális energiafelhasználást tesz lehetővé télen és nyáron egyaránt, minden tulajdonos számára. A technológiának köszönhetően a lakótereken belül nincs szükség külön fűtőtestekre, ami által a helyiségek berendezhetősége is optimális.

A beruházó rendkívüli rugalmassága lehetővé teszi minden vevő számára a belső kialakítás és beosztás változtatását is, így minden lakás teljesen személyre szabható.

Mind a környék infrastruktúrája, mind pedig a belváros közelsége biztosítja, hogy az itt lakók mindent elérjenek percek alatt: számos bevásárlási lehetőség, óvodák, iskolák, bevásárló központ, gyógyszertár, posta vagy játszótér, parkok vannak karnyújtásnyi távolságra.

A kiváló lokáció és az alacsony energiaigény miatt kiemelkedő az ingatlanok akár hosszú-, akár rövidtávú kiadhatósága is.

Hirdetés feltöltve: 2026. 01. 16. Utoljára módosítva: 2026. 01. 17.

2 szobás téglalakások ára Budapesten

Ebből az összehasonlításból megtudhatod, hogyan viszonyul a lakás ára a környékbeli téglalakások átlagos árához. Ez nem azt jelenti, hogy ennyivel olcsóbb vagy drágább, mint amennyit a lakás ér, hanem hogy ennyivel tér el a környékbeli átlagtól.

Ennek a m² ára
Angyalföld m² ár
XIII. kerület m² ár
Budapest m² ár
1845 e Ft
1715 e Ft -8%
1821 e Ft -1%
1703 e Ft -8%
Ennek az ára
Angyalföld átlagár
XIII. kerület átlagár
Budapest átlagár
84.884 M Ft m Ft
101.6 m Ft 16%
91.2 m Ft 7%
91 m Ft 7%

Az ingatlan elhelyezkedése

Cím: Budapest, XIII. kerület, Angyalföld, 3. emelet

Eladó ingatlanok a környékről

XIII. kerület, Angyalföld, Frangepán utca 74
Eladó téglalakás

Budapest, XIII. kerület

57.99 M Ft
1 szoba
32 m²
XIII. kerület
Eladó téglalakás

Budapest, XIII. kerület

82.95 M Ft
2 szoba
49 m²
XXII. kerület, Budafok, Baross utca
Eladó családi ház

Budapest, XXII. kerület

222 M Ft
6 + 1 szoba
200 m²
V. kerület, Belváros, Belgrád rakpart
Eladó téglalakás

Budapest, V. kerület

78 M Ft
2 szoba
42 m²
XIII. kerület, Angyalföld, Lomb utca 13
Eladó téglalakás

Budapest, XIII. kerület

142.5 M Ft
3 szoba
76 m²
VI. kerület, Belső Terézváros, Jókai utca
Eladó téglalakás

Budapest, VI. kerület

87.6 M Ft
3 szoba
75 m²
XIII. kerület, Angyalföld, Dévai utca
Eladó téglalakás

Budapest, XIII. kerület

60.963 M Ft
1 szoba
33 m²
XIV. kerület, Nagyzugló, Kövér Lajos utca
Eladó téglalakás

Budapest, XIV. kerület

168 M Ft
4 szoba
84 m²
XIII. kerület, Angyalföld, Frangepán utca 74
Eladó téglalakás

Budapest, XIII. kerület

63.99 M Ft
1 szoba
32 m²
XIII. kerület, Vizafogó, Népfürdő utca 47
Eladó téglalakás

Budapest, XIII. kerület

138.3 M Ft
3 szoba
81 m²
XIII. kerület, Angyalföld, Dunai panorámás lakás
Eladó téglalakás

Budapest, XIII. kerület

171.45 M Ft
4 szoba
97 m²
VIII. kerület, Józsefváros, Rákóczi út
Eladó téglalakás

Budapest, VIII. kerület

185 M Ft
5 szoba
121 m²
XIII. kerület, Angyalföld, Frangepán utca 74
Eladó téglalakás

Budapest, XIII. kerület

111.82 M Ft
3 szoba
80 m²
XIII. kerület, Vizafogó, Dráva utca
Eladó téglalakás

Budapest, XIII. kerület

99 M Ft
3 + 1 szoba
98 m²
XIII. kerület, Angyalföld
Eladó téglalakás

Budapest, XIII. kerület

58.5 M Ft
3 + 1 szoba
80 m²
XIII. kerület
Eladó téglalakás

Budapest, XIII. kerület

127.12 M Ft
3 szoba
81 m²
XIII. kerület
Eladó téglalakás

Budapest, XIII. kerület

111.34 M Ft
2 szoba
55 m²
XIII. kerület, Angyalföld
Eladó téglalakás

Budapest, XIII. kerület

84.9 M Ft
5 + 2 szoba
124 m²
XIII. kerület, Angyalföld, Frangepán utca 74
Eladó téglalakás

Budapest, XIII. kerület

115.84 M Ft
3 szoba
80 m²
XIII. kerület
Eladó téglalakás

Budapest, XIII. kerület

105.755 M Ft
2 szoba
74 m²
V. kerület, Belváros, Petőfi Sándor utca
Eladó téglalakás

Budapest, V. kerület

134 M Ft
2 szoba
59 m²
I. kerület, Víziváros, Széna tér
Eladó téglalakás

Budapest, I. kerület

189 M Ft
4 szoba
90 m²
I. kerület, Krisztinaváros, Feszty Árpád utca
Eladó téglalakás

Budapest, I. kerület

78.99 M Ft
1 szoba
28 m²
XIII. kerület
Eladó téglalakás

Budapest, XIII. kerület

73.64 M Ft
2 szoba
47 m²

Falusi CSOK ingatlanok

Pécsvárad, Petőfi Sándor utca
Eladó családi ház

Pécsvárad

72.9 M Ft
3 szoba
120 m²
Nagykarácsony
Eladó családi ház

Nagykarácsony

34.9 M Ft
3 szoba
112 m²
Elek
Eladó családi ház

Elek

18 M Ft
4 szoba
180 m²
Jászkarajenő
Eladó családi ház

Jászkarajenő

4.99 M Ft
3 + 1 szoba
84 m²
Sárosd
Eladó családi ház

Sárosd

21.9 M Ft
3 szoba
86 m²
Hercegszántó
Eladó családi ház

Hercegszántó

7 M Ft
3 szoba
120 m²
Háromfa, Kossuth
Eladó családi ház

Háromfa

22.4 M Ft
1247 m²
139 m²
Kunadacs
Eladó családi ház

Kunadacs

80 M Ft
4 szoba
148 m²