NapForrás 20 - Buda

Eladó téglalakás
Budapest, XIII. kerület, 4. emelet

+ 8 kép 1/11
53 500 000 Ft53.5 M Ft 1 528 571 Ft/m2
1 szoba
35 m²
4. emelet

Részletes adatok

Fűtés: Egyéb
Emelet: 4. emelet
Energetikai besorolás: Nem adta meg a hirdető

Az OTP Bank lakáshitel ajánlataFizetett hirdetés

+36 20 400
Szentgyörgyvölgyi Ruben
referens

Érdekel az OTP Bank kedvezményes lakáshitel ajánlata? *

* A kérdésre „Igen” válasz bejelölése esetén, az „Üzenet küldése” gombra kattintva kijelentem, hogy az OTP Bank Nyrt. Adatkezelési tájékoztatójának tartalmát megismertem és tudomásul vettem.

Eladó téglalakás leírása

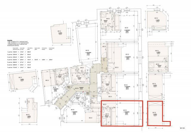
Újlipótvárosban, a Visegrádi utcában eladó egy 35 m²-es, fekvő galériával kialakított, felújított, klimatizált, teljesen bútorozott és gépesített stúdiólakás, egy rendezett, liftes, téglaépítésű társasház 4. emeletén.

Az ingatlan belső udvarra néz, így csendes, mégis városi környezetet biztosít, a galériás kialakításnak köszönhetően jól kihasznált, élhető terekkel rendelkezik, gázcirkó fűtéssel felszerelt, a teljes berendezés a vételár részét képezi, ezért azonnal költözhető vagy bérbe adható.

A lakás egy négyemeletes, karbantartott társasházban található, fenntartási költségei kedvezőek, a közös költség 11.000 Ft havonta, a rezsi fogyasztás szerint alakul, átlagosan körülbelül 15.000 Ft.

Az ingatlan 1/1 tulajdonú, tehermentes, osztatlan közös tulajdon, ügyvédi megosztással, két nagyobb lakásból kialakított, összesen hétlakásos kialakítás részeként jött létre, az alaprajzon pirossal jelölve egyértelműen beazonosítható, hogy pontosan melyik lakás kerül értékesítésre.

Elhelyezkedése kiváló, a közelben metró, villamos, a Nyugati pályaudvar, bevásárlóközpont, parkok és piac is rövid sétával elérhető, a parkolás az utcán, fizetős övezetben megoldott.

Elsősorban azoknak ajánlom, akik biztos helyen szeretnék tudni a pénzüket, akár befektetésnek, akár saját otthonként képzelik el ezt az ingatlant.

Hirdetés feltöltve: 2026. 01. 15. Utoljára módosítva: 2026. 01. 18.

1 szobás téglalakások ára Budapesten

Ebből az összehasonlításból megtudhatod, hogyan viszonyul a lakás ára a környékbeli téglalakások átlagos árához. Ez nem azt jelenti, hogy ennyivel olcsóbb vagy drágább, mint amennyit a lakás ér, hanem hogy ennyivel tér el a környékbeli átlagtól.

Ennek a m² ára
XIII. kerület m² ár
Budapest m² ár
1529 e Ft
1827 e Ft 16%
1713 e Ft 11%
Ennek az ára
XIII. kerület átlagár
Budapest átlagár
53.5 M Ft m Ft
63.8 m Ft 16%
59.3 m Ft 10%

Az ingatlan elhelyezkedése

Cím: Budapest, XIII. kerület, 4. emelet

Eladó ingatlanok a környékről

XIII. kerület
Eladó téglalakás

Budapest, XIII. kerület

259.35 M Ft
4 szoba
163 m²
XIII. kerület, Angyalföld
Eladó téglalakás

Budapest, XIII. kerület

58.5 M Ft
3 + 1 szoba
80 m²
XIII. kerület, Angyalföld, Dévai utca
Eladó téglalakás

Budapest, XIII. kerület

60.963 M Ft
1 szoba
33 m²
XIII. kerület, Angyalföld, Kucsma utca
Eladó téglalakás

Budapest, XIII. kerület

88.348 M Ft
4 szoba
97 m²
XIII. kerület
Eladó garázs

Budapest, XIII. kerület

9.25 M Ft
16 m²
XI. kerület, Albertfalva, Papp Elemér utca 6
Eladó téglalakás

Budapest, XI. kerület

378.1 M Ft
4 szoba
138 m²
VI. kerület, Külső Terézváros, Szondi utca
Eladó téglalakás

Budapest, VI. kerület

51.9 M Ft
1 szoba
28 m²
XIII. kerület
Eladó téglalakás

Budapest, XIII. kerület

105.755 M Ft
2 szoba
74 m²
XIII. kerület, Angyalföld, Dévai utca
Eladó téglalakás

Budapest, XIII. kerület

146.496 M Ft
4 szoba
80 m²
XI. kerület, Albertfalva, Papp Elemér utca 6
Eladó téglalakás

Budapest, XI. kerület

129.6 M Ft
2 szoba
48 m²
XIII. kerület, Vizafogó, Sólyatér utca 4
Eladó ipari ingatlan

Budapest, XIII. kerület

4.4 M Ft
4 m²
III. kerület
Eladó panellakás

Budapest, III. kerület

71.5 M Ft
1 + 2 szoba
56 m²
XIII. kerület
Eladó téglalakás

Budapest, XIII. kerület

139.935 M Ft
2 szoba
67 m²
XI. kerület, Albertfalva, Papp Elemér utca 6
Eladó téglalakás

Budapest, XI. kerület

314.4 M Ft
4 szoba
125 m²
XI. kerület, Albertfalva, Papp Elemér utca 6
Eladó téglalakás

Budapest, XI. kerület

303.3 M Ft
4 szoba
118 m²
XIII. kerület, Angyalföld, Lomb utca 13
Eladó téglalakás

Budapest, XIII. kerület

142.5 M Ft
3 szoba
76 m²
XIII. kerület
Eladó téglalakás

Budapest, XIII. kerület

82.95 M Ft
2 szoba
49 m²
XI. kerület, Őrmező, Kérő
Eladó panellakás

Budapest, XI. kerület

90 M Ft
1 + 2 szoba
68 m²
XIII. kerület
Eladó téglalakás

Budapest, XIII. kerület

262.035 M Ft
4 szoba
150 m²
IV. kerület
Eladó téglalakás

Budapest, IV. kerület

93.6 M Ft
3 szoba
64 m²
XI. kerület
Eladó panellakás

Budapest, XI. kerület

74.5 M Ft
1 + 1 szoba
45 m²
XIII. kerület, Vizafogó, Dráva utca
Eladó téglalakás

Budapest, XIII. kerület

99 M Ft
3 + 1 szoba
98 m²
XIII. kerület, Angyalföld, Dévai utca
Eladó téglalakás

Budapest, XIII. kerület

104.801 M Ft
3 szoba
52 m²
XI. kerület, Albertfalva, Papp Elemér utca 6
Eladó téglalakás

Budapest, XI. kerület

200.8 M Ft
3 szoba
78 m²

Falusi CSOK ingatlanok

Szabadszentkirály
Eladó családi ház

Szabadszentkirály

36 M Ft
3 szoba
90 m²
Geresdlak, Dózsa György utca
Eladó családi ház

Geresdlak

29.99 M Ft
3 szoba
90 m²
Úri, Sport utca
Eladó családi ház

Úri

82.4 M Ft
3 szoba
122 m²
Bugac
Eladó családi ház

Bugac

55 M Ft
3 szoba
90 m²
Mocsa
Eladó családi ház

Mocsa

35 M Ft
4 szoba
97 m²
Törtel
Eladó családi ház

Törtel

39 M Ft
1 + 1 szoba
118 m²
Tápióbicske
Eladó családi ház

Tápióbicske

32.9 M Ft
3 szoba
106 m²
Makád
Eladó családi ház

Makád

24 M Ft
2 szoba
57 m²