BAM Living

Eladó téglalakás
Budapest, XIII. kerület, Újlipótváros, 4. emelet

+ 15 kép 1/18
84 990 900 Ft84.991 M Ft 1 231 752 Ft/m2
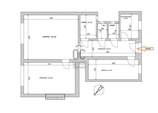
3 szoba
69 m2
4. emelet
építés éve:1920

Részletes adatok

Fűtés: Gázkonvektor
Emelet: 4. emelet
Közmű: Gáz, Villany, Csatorna
Energetikai besorolás: Nem adta meg a hirdető

Az OTP Bank lakáshitel ajánlataFizetett hirdetés

+36 70 465
Pogány László
referens

Érdekel az OTP Bank kedvezményes lakáshitel ajánlata? *

* A kérdésre „Igen” válasz bejelölése esetén, az „Üzenet küldése” gombra kattintva kijelentem, hogy az OTP Bank Nyrt. Adatkezelési tájékoztatójának tartalmát megismertem és tudomásul vettem.

Eladó téglalakás leírása

A XIII. kerület egyik legkedveltebb részén, a Visegrádi utca és a Victor Hugo utca sarkán, kínálunk eladásra egy 69 négyzetméteres, háromszobás lakást, amely teljesen felújítandó állapotú – cserébe viszont egy igazán kivételes lokációt kap. A WestEnd mindössze 5 perc sétára található, így minden fontos szolgáltatás pillanatok alatt elérhető.

Az ingatlan egy régi típusú, dupla körfolyosós, polgári társasházban helyezkedik el. A társasház rendezett, nagyon jó állapotú, és kifejezetten jó lakóközösséggel rendelkezik. A középső lakás elhelyezkedésének köszönhetően különleges előnyöket kínál: a ház elrendezése miatt rendkívül csendes, szinte semmit nem hallani az utca zajából. A 4. emeleti fekvés pedig garantálja, hogy a lakás a nap minden szakában napfényben úszik, így világos, barátságos tereket biztosít.

A tágas nappali és a két jól alakítható szoba remek alapot nyújtanak egy modern, karakteres otthon kialakításához. A fürdő és a konyha szabadon újratervezhető, teljes mértékben az Ön elképzelései szerint.

A környék egyszerűen páratlan: Újlipótváros a városi élet lüktetését és a nyugodt, barátságos hangulatot ötvözi. Kávézók, éttermek, üzletek, zöld parkok és kiváló közlekedési lehetőségek (metró, busz, bicikliút) mind elérhetők pár perces sétával.

Az ingatlan tehermentes, így az adásvételt követően azonnal birtokba vehető – akár saját célra, akár értékálló befektetésként is kiváló választás.

Lépjen be egy új fejezetbe, és valósítsa meg saját stílusú otthonát ebben a napfényes, csendes, különleges adottságú lakásban!

Keressen bennünket bizalommal – örömmel segítünk elképzelései megvalósításában.

Ez az ingatlan a "Hűség csomag" megbízási portfólióhoz tartozik. Részletek az Otthon Centrum weboldalán.

Hirdetés feltöltve: 2025. 12. 08. Utoljára módosítva: 2026. 01. 14.

3 szobás téglalakások ára Budapesten

Ebből az összehasonlításból megtudhatod, hogyan viszonyul a lakás ára a környékbeli téglalakások átlagos árához. Ez nem azt jelenti, hogy ennyivel olcsóbb vagy drágább, mint amennyit a lakás ér, hanem hogy ennyivel tér el a környékbeli átlagtól.

Ennek a m² ára
Újlipótváros m² ár
XIII. kerület m² ár
Budapest m² ár
1232 e Ft
1784 e Ft 31%
1768 e Ft 30%
1688 e Ft 27%
Ennek az ára
Újlipótváros átlagár
XIII. kerület átlagár
Budapest átlagár
84.991 M Ft m Ft
147.9 m Ft 43%
129.3 m Ft 34%
130.6 m Ft 35%

Az ingatlan elhelyezkedése

Cím: Budapest, XIII. kerület, Újlipótváros, 4. emelet

Eladó ingatlanok a környékről

Eladó téglalakás
Eladó téglalakás

VIII. kerület, Palotanegyed, Rákóczi út

185 M Ft
5 szoba
121 m2
Eladó téglalakás
Eladó téglalakás

V. kerület, Belváros, Belgrád rakpart

78 M Ft
1 + 1 szoba
42 m2
Eladó téglalakás
Eladó téglalakás

XIII. kerület

73.64 M Ft
2 szoba
47 m2
Eladó téglalakás
Eladó téglalakás

XIII. kerület, Angyalföld

58.5 M Ft
3 + 1 szoba
80 m2
Eladó téglalakás
Eladó téglalakás

IV. kerület, Újpest, Kassai utca

84.9 M Ft
2 + 1 szoba
71 m2
Eladó téglalakás
Eladó téglalakás

VII. kerület, Belső Erzsébetváros, Rózsa utca

170 M Ft
5 szoba
124 m2
Eladó téglalakás
Eladó téglalakás

XIII. kerület

139.935 M Ft
2 szoba
67 m2
Eladó téglalakás
Eladó téglalakás

XIII. kerület, Angyalföld, Dévai utca

104.801 M Ft
3 szoba
52 m2
Eladó téglalakás
Eladó téglalakás

XVIII. kerület

85.5 M Ft
3 szoba
67 m2
Eladó téglalakás
Eladó téglalakás

VI. kerület, Belső Terézváros, Jókai utca

87.6 M Ft
3 szoba
75 m2
Eladó családi ház
Eladó családi ház

II. kerület

224.8 M Ft
5 szoba
240 m2
Eladó téglalakás
Eladó téglalakás

XIII. kerület, Angyalföld, Dévai utca

60.963 M Ft
1 szoba
33 m2
Eladó téglalakás
Eladó téglalakás

XIII. kerület

105.755 M Ft
2 szoba
74 m2
Eladó téglalakás
Eladó téglalakás

VII. kerület, Belső Erzsébetváros, Erzsébet körút

160 M Ft
3 szoba
88 m2
Eladó téglalakás
Eladó téglalakás

VI. kerület, Külső Terézváros, Szív utca

124.9 M Ft
3 szoba
94 m2
Eladó téglalakás
Eladó téglalakás

XIII. kerület, Angyalföld, Dévai utca

146.496 M Ft
4 szoba
80 m2
Eladó téglalakás
Eladó téglalakás

V. kerület, Belváros, Petőfi Sándor utca

134 M Ft
2 szoba
59 m2
Eladó téglalakás
Eladó téglalakás

XIV. kerület, Kiszugló, Kövér Lajos utca

168 M Ft
3 + 1 szoba
84 m2
Eladó téglalakás
Eladó téglalakás

I. kerület, Krisztinaváros, Széna tér

189 M Ft
4 szoba
90 m2
Eladó iroda
Eladó iroda

I. kerület, Víziváros, Széna tér

189 M Ft
4 szoba
90 m2
Eladó panellakás
Eladó panellakás

XI. kerület, Kelenföld, Etele út

89 M Ft
2 + 1 szoba
51 m2
Eladó téglalakás
Eladó téglalakás

XIII. kerület, Angyalföld, Lomb utca 13

142.5 M Ft
3 szoba
76 m2
Eladó téglalakás
Eladó téglalakás

III. kerület, Óbuda, Szomolnok utca

89.9 M Ft
2 + 2 szoba
96 m2
Eladó téglalakás
Eladó téglalakás

XIII. kerület

259.35 M Ft
4 szoba
163 m2

Falusi CSOK ingatlanok

Eladó családi ház
Eladó családi ház

Palkonya

137 M Ft
6 szoba
160 m2
Eladó családi ház
Eladó családi ház

Szakmár

12.9 M Ft
3 + 1 szoba
90 m2
Eladó családi ház
Eladó családi ház

Hercegszántó

29.9 M Ft
4 szoba
130 m2
Eladó családi ház
Eladó családi ház

Darnózseli

79.9 M Ft
4 szoba
104 m2
Eladó családi ház
Eladó családi ház

Bagod

52 M Ft
2 + 2 szoba
112 m2
Eladó családi ház
Eladó családi ház

Sály, Kossuth Lajos 128

30.8 M Ft
6 szoba
160 m2
Eladó családi ház
Eladó családi ház

Egyházaskesző

12.4 M Ft
2 szoba
72 m2
Eladó téglalakás
Eladó téglalakás

Herend

63 M Ft
3 szoba
69 m2