Oasis Residence

Eladó téglalakás
Budapest, XIII. kerület, 1. emelet

+ 15 kép 1/18
93 000 000 Ft93 M Ft 1 500 000 Ft/m2
3 szoba
62 m2
1. emelet
építés éve:2007

Részletes adatok

Fűtés: Gázkazán
Extrák: Lift
Energetikai besorolás: Nem adta meg a hirdető

Az OTP Bank lakáshitel ajánlataFizetett hirdetés

3626664028
Karácsony Rózsa Etelka
Duna House Szentendre

Érdekel az OTP Bank kedvezményes lakáshitel ajánlata? *

* A kérdésre „Igen” válasz bejelölése esetén, az „Üzenet küldése” gombra kattintva kijelentem, hogy az OTP Bank Nyrt. Adatkezelési tájékoztatójának tartalmát megismertem és tudomásul vettem.

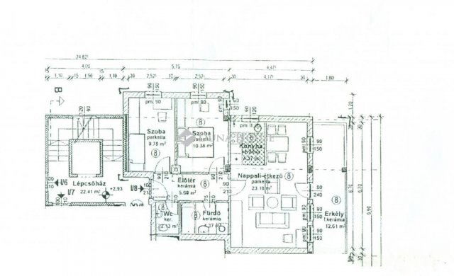
Eladó téglalakás leírása

KIEMELT AJÁNLAT CSAK NÁLUNK! Kucsma utcában eladó egy 59,8 nm-es, 1+2 szobás jó állapotú lakás 12,61 nm-es erkéllyel. ( Tulajdoni lapon 62 nm.) A ház 2007-ben épült, csöndes, nyugodt környéken mégis kiváló közlekedéssel. A lakás kiváló elosztású, kényelmes előszobával, külön, nem a nappaliból nyíló hálószobákkal, külön kialakítású a fürdő és a wc, valamint hatalmas erkéllyel. Az ablakokon redőny és szúnyogháló, hűtő klíma a nappaliban és cirkó fűtéses. A burkolatok, szaniterek, konyhabútor az eredetiek. A közlekedés kiváló, a közelben a 30, 30A buszok és a 14-es villamos. A lakás tehermentes, jelenleg bérlők lakják, akik szívesen visszabérelnék. A nappaliban lévő gardróbszekrény, a konyhabútor és a klíma a vételár része.A lakáshoz tartozik és kötelezően megvásárolandó egy teremgarázs beálló + 7.000.000,-Ft és egy 5,16 nm-es tároló + 5.000.000,-FtBefektetésnek és otthonnak is tökéletes választás!

Hirdetés feltöltve: 2025. 11. 26. Utoljára módosítva: 2025. 12. 02.

3 szobás téglalakások ára Budapesten

Ebből az összehasonlításból megtudhatod, hogyan viszonyul a lakás ára a környékbeli téglalakások átlagos árához. Ez nem azt jelenti, hogy ennyivel olcsóbb vagy drágább, mint amennyit a lakás ér, hanem hogy ennyivel tér el a környékbeli átlagtól.

Ennek a m² ára
XIII. kerület m² ár
Budapest m² ár
1500 e Ft
1783 e Ft 16%
1693 e Ft 11%
Ennek az ára
XIII. kerület átlagár
Budapest átlagár
93 M Ft m Ft
130.3 m Ft 29%
130.9 m Ft 29%

Az ingatlan elhelyezkedése

Cím: Budapest, XIII. kerület, 1. emelet

Eladó ingatlanok a környékről

Eladó téglalakás
Eladó téglalakás

XIII. kerület

139.935 M Ft
2 szoba
67 m2
Eladó téglalakás
Eladó téglalakás

XIII. kerület, Angyalföld

84.9 M Ft
5 + 2 szoba
124 m2
Eladó téglalakás
Eladó téglalakás

II. kerület

32.5 M Ft
1 szoba
16 m2
Eladó téglalakás
Eladó téglalakás

XXI. kerület

20.9 M Ft
1 szoba
20 m2
Eladó téglalakás
Eladó téglalakás

XIII. kerület

82.95 M Ft
2 szoba
49 m2
Eladó családi ház
Eladó családi ház

XVIII. kerület, Ganztelep, Barcika tér

140 M Ft
4 szoba
160 m2
Eladó téglalakás
Eladó téglalakás

XIII. kerület

199.815 M Ft
4 szoba
105 m2
Eladó téglalakás
Eladó téglalakás

XVIII. kerület, Szemeretelep

99 M Ft
3 szoba
117 m2
Eladó családi ház
Eladó családi ház

III. kerület, Táborhegy, Farkastorki út

549 M Ft
7 szoba
700 m2
Eladó téglalakás
Eladó téglalakás

XXI. kerület

32.9 M Ft
3 szoba
30 m2
Eladó téglalakás
Eladó téglalakás

VII. kerület

158.7 M Ft
3 szoba
59 m2
Eladó téglalakás
Eladó téglalakás

XXI. kerület

32.9 M Ft
3 szoba
32 m2
Eladó téglalakás
Eladó téglalakás

IX. kerület

169.9 M Ft
3 szoba
87 m2
Eladó családi ház
Eladó családi ház

XXIII. kerület, Soroksár, Zeller utca

57.9 M Ft
4 szoba
112 m2
Eladó téglalakás
Eladó téglalakás

VII. kerület

52.9 M Ft
1 szoba
19 m2
Eladó téglalakás
Eladó téglalakás

XIII. kerület, Angyalföld, Lomb utca 13

142.5 M Ft
3 szoba
76 m2
Eladó téglalakás
Eladó téglalakás

XXI. kerület

32.9 M Ft
2 szoba
30 m2
Eladó téglalakás
Eladó téglalakás

XIII. kerület, Újlipótváros

179.9 M Ft
4 + 1 szoba
155 m2
Eladó téglalakás
Eladó téglalakás

XIII. kerület

259.35 M Ft
4 szoba
163 m2
Eladó téglalakás
Eladó téglalakás

XIII. kerület

73.64 M Ft
2 szoba
47 m2
Eladó téglalakás
Eladó téglalakás

XIII. kerület, Angyalföld, Dévai utca

104.139 M Ft
3 szoba
68 m2
Eladó téglalakás
Eladó téglalakás

VII. kerület, Külső Erzsébetváros, Hernád utca

86 M Ft
3 szoba
75 m2
Eladó téglalakás
Eladó téglalakás

XIII. kerület

262.035 M Ft
4 szoba
150 m2
Eladó téglalakás
Eladó téglalakás

XIII. kerület, Angyalföld

185 M Ft
7 szoba
210 m2

Falusi CSOK ingatlanok

Eladó családi ház
Eladó családi ház

Kétegyháza

15.9 M Ft
3 szoba
95 m2
Eladó családi ház
Eladó családi ház

Tésenfa, Kossuth utca 23/a

5.55 M Ft
1 + 1 szoba
109 m2
Eladó családi ház
Eladó családi ház

Somogygeszti

38.6 M Ft
3 + 1 szoba
98 m2
Eladó téglalakás
Eladó téglalakás

Balatonszemes

125.2 M Ft
2 szoba
50 m2
Eladó családi ház
Eladó családi ház

Hernádnémeti

18.9 M Ft
2 szoba
62 m2
Eladó családi ház
Eladó családi ház

Ozora

24.5 M Ft
2 szoba
115 m2
Eladó családi ház
Eladó családi ház

Enese

78.9 M Ft
4 szoba
90 m2
Eladó téglalakás
Eladó téglalakás

Balatonszemes

125.2 M Ft
2 szoba
50 m2