Aerogate Homes

Eladó téglalakás
Budapest, IX. kerület, 2. emelet

+ 17 kép 1/20
169 900 000 Ft169.9 M Ft 1 952 874 Ft/m2
3 szoba
87 m2
2. emelet
építés éve:2025

Részletes adatok

Fűtés: Házközponti egyedi méréssel
Extrák: Lift
Energetikai besorolás: Nem adta meg a hirdető

Az OTP Bank lakáshitel ajánlataFizetett hirdetés

+36 30 406
Záhony Endre
referens

Érdekel az OTP Bank kedvezményes lakáshitel ajánlata? *

* A kérdésre „Igen” válasz bejelölése esetén, az „Üzenet küldése” gombra kattintva kijelentem, hogy az OTP Bank Nyrt. Adatkezelési tájékoztatójának tartalmát megismertem és tudomásul vettem.

Eladó téglalakás leírása

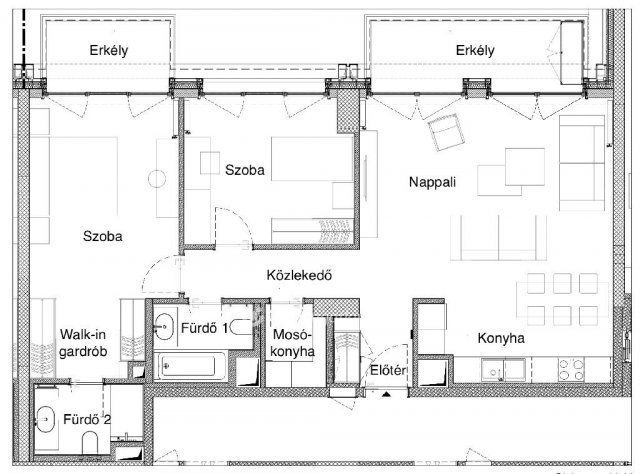
Eladásra kínálok Budapest IX. kerületének legkedveltebb részén, a Duna közelében lakóparkban egy 2025-ben átadott, nettó 88 nm2-es, prémium minőségben kialakított, új építésű lakást. Az ingatlan a 2. emeleten helyezkedik el, liftes, akadálymentes társasházban, csendes, zárt magánútra néző, északkeleti tájolással.

A lakás amerikai konyhás nappalival és két külön nyíló hálószobával rendelkezik, melyekhez két teljes értékű, WC-s fürdőszoba tartozik. A fő hálószoba saját fürdővel, walk-in gardróbbal és erkélykapcsolattal bír. A tágas nappaliból közvetlen kijárat nyílik a 8 m2-es erkélyre, a második hálószobához pedig egy 5nm- es tartozik. A két erkély ideális teret biztosít pihenéshez vagy kikapcsolódáshoz.

Az ingatlan teljesen bútorozott és gépesített, egyedi gyártású konyhabútorokkal és gardróbokkal, melyek a vételár részét képezik. A fűtés házközponti, egyedi mérőkkel, gáz nincs bekötve. A komfortérzetről kiépített, többzónás klímarendszer gondoskodik. A közös költség 35 000 Ft havonta, a rezsi fogyasztás alapján fizetendő.

A lakás különleges előnye a zárt magánút, amely nyugodt környezetet és ingyenes parkolási lehetőséget biztosít a lakók számára. Teremgarázs hely vásárolható 7,7 millió forinttól, illetve bérelhető havi 35 000 forintért.

A City Pearl Lakópark modern, rendezett környezetet kínál kiváló infrastruktúrával. A Duna-part, a Corvin Negyed, bevásárlási lehetőségek, éttermek, kávézók, edzőtermek és egyetemek mind könnyen elérhetők, ahogy a tömegközlekedés is. Az ingatlan ideális választás saját otthonnak vagy értékálló befektetésnek, azonnal költözhető, kompromisszummentes megoldást keresők számára.

Hirdetés feltöltve: 2025. 12. 16. Utoljára módosítva: 2025. 12. 16.

3 szobás téglalakások ára Budapesten

Ebből az összehasonlításból megtudhatod, hogyan viszonyul a lakás ára a környékbeli téglalakások átlagos árához. Ez nem azt jelenti, hogy ennyivel olcsóbb vagy drágább, mint amennyit a lakás ér, hanem hogy ennyivel tér el a környékbeli átlagtól.

Ennek a m² ára
IX. kerület m² ár
Budapest m² ár
1953 e Ft
1642 e Ft -19%
1693 e Ft -15%
Ennek az ára
IX. kerület átlagár
Budapest átlagár
169.9 M Ft m Ft
128.6 m Ft -32%
130.9 m Ft -30%

Az ingatlan elhelyezkedése

Cím: Budapest, IX. kerület, 2. emelet

Eladó ingatlanok a környékről

Eladó téglalakás
Eladó téglalakás

IX. kerület, Ferencváros, Soroksári út

283.935 M Ft
4 + 1 szoba
149 m2
Eladó panellakás
Eladó panellakás

III. kerület, Békásmegyer

65.9 M Ft
2 szoba
51 m2
Eladó téglalakás
Eladó téglalakás

IX. kerület, Ferencváros, Nagyvárad tér

119.9 M Ft
3 szoba
73 m2
Eladó téglalakás
Eladó téglalakás

XXI. kerület

20.9 M Ft
1 szoba
20 m2
Eladó téglalakás
Eladó téglalakás

IX. kerület, Ferencváros, Soroksári út

225.943 M Ft
3 + 1 szoba
114 m2
Eladó téglalakás
Eladó téglalakás

IX. kerület, Ferencváros, Lechner Ödön fasor

609.6 M Ft
7 szoba
445 m2
Eladó téglalakás
Eladó téglalakás

XXI. kerület

32.9 M Ft
2 szoba
26 m2
Eladó téglalakás
Eladó téglalakás

IX. kerület, Vágóhíd utca

153.5 M Ft
3 szoba
74 m2
Eladó téglalakás
Eladó téglalakás

IX. kerület, Vágóhíd utca

184.94 M Ft
4 szoba
102 m2
Eladó téglalakás
Eladó téglalakás

II. kerület, Rózsadomb, Keleti Károly utca

95 M Ft
2 + 1 szoba
53 m2
Eladó téglalakás
Eladó téglalakás

XXI. kerület

32.9 M Ft
2 szoba
30 m2
Eladó téglalakás
Eladó téglalakás

II. kerület

32.5 M Ft
1 szoba
16 m2
Eladó téglalakás
Eladó téglalakás

IX. kerület

99.5 M Ft
4 szoba
110 m2
Eladó téglalakás
Eladó téglalakás

IX. kerület

119.9 M Ft
140 m2
Eladó téglalakás
Eladó téglalakás

VII. kerület, Külső Erzsébetváros, Hernád utca

86 M Ft
3 szoba
75 m2
Eladó családi ház
Eladó családi ház

XXIII. kerület, Soroksár, Zeller utca

57.9 M Ft
4 szoba
112 m2
Eladó téglalakás
Eladó téglalakás

IX. kerület, Ferencváros, Haller utca

51 M Ft
2 szoba
31 m2
Eladó téglalakás
Eladó téglalakás

IX. kerület, Ferencváros, Bárd utca 7

81.8 M Ft
1 + 1 szoba
35 m2
Eladó téglalakás
Eladó téglalakás

XXI. kerület

32.9 M Ft
3 szoba
30 m2
Eladó családi ház
Eladó családi ház

XVIII. kerület, Ganztelep, Barcika tér

140 M Ft
4 szoba
160 m2
Eladó panellakás
Eladó panellakás

XIV. kerület

69.5 M Ft
2 szoba
46 m2
Eladó téglalakás
Eladó téglalakás

VII. kerület

141.797 M Ft
3 szoba
76 m2
Eladó téglalakás
Eladó téglalakás

IX. kerület, József Attila lakótelep, Márton

89.9 M Ft
3 szoba
70 m2
Eladó téglalakás
Eladó téglalakás

XXI. kerület

20.9 M Ft
1 szoba
25 m2

Falusi CSOK ingatlanok

Eladó ikerház
Eladó ikerház

Balatonakali

129 M Ft
4 szoba
145 m2
Eladó családi ház
Eladó családi ház

Vitnyéd, Petőfi Sándor utca 3

16.71 M Ft
1 + 1 szoba
99 m2
Eladó családi ház
Eladó családi ház

Kisdér

149.8 M Ft
4 szoba
205 m2
Eladó családi ház
Eladó családi ház

Tápiógyörgye

32 M Ft
3 szoba
86 m2
Eladó családi ház
Eladó családi ház

Tápióság

30 M Ft
3 szoba
67 m2
Eladó téglalakás
Eladó téglalakás

Balatonszemes

125.2 M Ft
2 szoba
50 m2
Eladó családi ház
Eladó családi ház

Sásd

24.5 M Ft
4 szoba
150 m2
Eladó családi ház
Eladó családi ház

Aszaló

16.49 M Ft
3 szoba
112 m2