River Life

Eladó téglalakás
Budapest, XIII. kerület, Újlipótváros, 3. emelet

+ 17 kép 1/20
102 000 000 Ft102 M Ft 1 416 667 Ft/m2
2 + 1 szoba
72 m2
3. emelet
építés éve:1930

Részletes adatok

Állapot: Felújítandó
Fűtés: Távfűtés
Emelet: 3. emelet
Extrák: Lift
Energetikai besorolás: Nem adta meg a hirdető

Az OTP Bank lakáshitel ajánlataFizetett hirdetés

+36 30 871
Farkasné Hernádi Ágnes
OTPIP I. kerület Zsolt utcai iroda

Érdekel az OTP Bank kedvezményes lakáshitel ajánlata? *

* A kérdésre „Igen” válasz bejelölése esetén, az „Üzenet küldése” gombra kattintva kijelentem, hogy az OTP Bank Nyrt. Adatkezelési tájékoztatójának tartalmát megismertem és tudomásul vettem.

Eladó téglalakás leírása

FELÚJÍTANDÓ INGATLAN ÚJLIPÓTVÁROS SZÍVÉBEN!
Eladó Budapest XIII. kerületének egyik legnépszerűbb területén, Újlipótvárosban, egy 72 m2-es, erkélyes lakás.
Az ingatlan egy Bauhaus stílusú, liftes társasház 3. emeletén található.
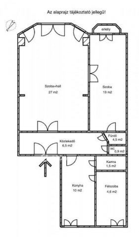
A lakásba a felújított, lépcsőházból egy elegáns kétszárnyú ajtón keresztül juthatunk be. A felújítandó ingatlanban 2,5 szoba hall, konyha, spájz, fürdőszoba, külön WC található.
Az utcára néző szobák és az erkély délkeleti fekvésűek. A északnyugati tájolású félszoba és a konyha egy rendezett belső udvarra néznek.
A fürdőszoba az előszobából és az egyik szobából is megközelíthető. A konyhából nyíló félszoba akár egy nagyobb étkezős konyhává is átalakítható igény szerint. Tulajdonosaik nagyon vigyáztak az ingatlanra, melynek köszönhetően (a ház kora ellenére), a szobákban és az előszobában lévő parketták jó állapotban vannak. Fűtése távfűtés.
A lakás jó fekvésének köszönhetően szép, napos, világos otthon kialakítására van lehetőség.
A társasház tiszta, rendezett, a lakóközössége kulturált.
A lokáció kitűnő, közel a Jászai Mari térhez, Duna-parthoz, Szent István parkhoz, Nyugati térhez, Westendhez és a Margitszigethez. Tömegközlekedéssel a város minden pontja rövid időn belül elérhető.
Amennyiben hirdetésem felkeltette érdeklődését, vagy szeretné megtekinteni az ingatlant, várom hívását!

Referencia szám: M316976

Hirdetés feltöltve: 2025. 11. 25. Utoljára módosítva: 2026. 01. 25.

3 szobás téglalakások ára Budapesten

Ebből az összehasonlításból megtudhatod, hogyan viszonyul a lakás ára a környékbeli téglalakások átlagos árához. Ez nem azt jelenti, hogy ennyivel olcsóbb vagy drágább, mint amennyit a lakás ér, hanem hogy ennyivel tér el a környékbeli átlagtól.

Ennek a m² ára
Újlipótváros m² ár
XIII. kerület m² ár
Budapest m² ár
1417 e Ft
1784 e Ft 21%
1768 e Ft 20%
1688 e Ft 16%
Ennek az ára
Újlipótváros átlagár
XIII. kerület átlagár
Budapest átlagár
102 M Ft m Ft
147.9 m Ft 31%
129.3 m Ft 21%
130.6 m Ft 22%

Az ingatlan elhelyezkedése

Cím: Budapest, XIII. kerület, Újlipótváros, 3. emelet

Eladó ingatlanok a környékről

Eladó panellakás
Eladó panellakás

XI. kerület, Kelenföld, Etele út

89 M Ft
2 + 1 szoba
51 m2
Eladó téglalakás
Eladó téglalakás

III. kerület, Óbudaisziget, Folyamőr utca

69.9 M Ft
1 szoba
25 m2
Eladó téglalakás
Eladó téglalakás

V. kerület, Belváros, Petőfi Sándor utca

134 M Ft
2 szoba
59 m2
Eladó téglalakás
Eladó téglalakás

IV. kerület, Újpest, Kassai utca

84.9 M Ft
2 + 1 szoba
71 m2
Eladó családi ház
Eladó családi ház

XXII. kerület, Budafok, Baross utca

222 M Ft
6 + 1 szoba
200 m2
Eladó téglalakás
Eladó téglalakás

XIV. kerület, Kiszugló, Kövér Lajos utca

168 M Ft
3 + 1 szoba
84 m2
Eladó téglalakás
Eladó téglalakás

XIII. kerület, Angyalföld, Dévai utca

104.139 M Ft
3 szoba
68 m2
Eladó téglalakás
Eladó téglalakás

XIII. kerület

127.12 M Ft
3 szoba
81 m2
Eladó téglalakás
Eladó téglalakás

XIII. kerület

259.35 M Ft
4 szoba
163 m2
Eladó téglalakás
Eladó téglalakás

XIII. kerület

84.975 M Ft
2 szoba
50 m2
Eladó téglalakás
Eladó téglalakás

XI. kerület, Lágymányos, Móricz Zsigmond körtér

89.5 M Ft
2 szoba
52 m2
Eladó téglalakás
Eladó téglalakás

XI. kerület, Gellérthegy, Gyula utca

130 M Ft
2 szoba
56 m2
Eladó téglalakás
Eladó téglalakás

XIII. kerület, Angyalföld, Kucsma utca

88.348 M Ft
4 szoba
97 m2
Eladó téglalakás
Eladó téglalakás

XIII. kerület, Újlipótváros

179.9 M Ft
4 + 1 szoba
155 m2
Eladó téglalakás
Eladó téglalakás

III. kerület, Óbuda, Szomolnok utca

89.9 M Ft
2 + 2 szoba
96 m2
Eladó téglalakás
Eladó téglalakás

XIII. kerület

82.95 M Ft
2 szoba
49 m2
Eladó téglalakás
Eladó téglalakás

IV. kerület

87.5 M Ft
3 szoba
60 m2
Eladó téglalakás
Eladó téglalakás

XIII. kerület, Angyalföld, Dévai utca

146.496 M Ft
4 szoba
80 m2
Eladó téglalakás
Eladó téglalakás

XIII. kerület, Vizafogó, Népfürdő utca 47

138.3 M Ft
3 szoba
81 m2
Eladó téglalakás
Eladó téglalakás

I. kerület, Krisztinaváros, Feszty Árpád utca

78.99 M Ft
1 szoba
28 m2
Eladó téglalakás
Eladó téglalakás

XIII. kerület

105.755 M Ft
2 szoba
74 m2
Eladó téglalakás
Eladó téglalakás

XIII. kerület, Angyalföld

58.5 M Ft
3 + 1 szoba
80 m2
Eladó téglalakás
Eladó téglalakás

VII. kerület, Belső Erzsébetváros, Erzsébet körút

160 M Ft
3 szoba
88 m2
Eladó téglalakás
Eladó téglalakás

VII. kerület, Belső Erzsébetváros, Rózsa utca

170 M Ft
5 szoba
124 m2

Falusi CSOK ingatlanok

Eladó családi ház
Eladó családi ház

Vaszar

13.9 M Ft
2 szoba
67 m2
Eladó családi ház
Eladó családi ház

Fülöpszállás

299 M Ft
14 + 5 szoba
680 m2
Eladó családi ház
Eladó családi ház

Borszörcsök

13.99 M Ft
3 szoba
178 m2
Eladó családi ház
Eladó családi ház

Sumony

19 M Ft
4 szoba
120 m2
Eladó családi ház
Eladó családi ház

Zengővárkony

28 M Ft
3 szoba
87 m2
Eladó családi ház
Eladó családi ház

Balatonszepezd

299 M Ft
5 szoba
220 m2
Eladó családi ház
Eladó családi ház

Újszilvás

5.9 M Ft
1 szoba
31 m2
Eladó családi ház
Eladó családi ház

Verseg

54 M Ft
2 szoba
92 m2