Avico Greentop

Eladó téglalakás
Budapest, XIII. kerület, 1. emelet

+ 17 kép 1/20
93 000 000 Ft93 M Ft 1 500 000 Ft/m2
3 szoba
62 m2
1. emelet
építés éve:2007

Részletes adatok

Fűtés: Gázkazán
Extrák: Lift
Energetikai besorolás: Nem adta meg a hirdető

Az OTP Bank lakáshitel ajánlataFizetett hirdetés

+36 1 690
Ábrahám Péter
referens

Érdekel az OTP Bank kedvezményes lakáshitel ajánlata? *

* A kérdésre „Igen” válasz bejelölése esetén, az „Üzenet küldése” gombra kattintva kijelentem, hogy az OTP Bank Nyrt. Adatkezelési tájékoztatójának tartalmát megismertem és tudomásul vettem.

Eladó téglalakás leírása

KIEMELT AJÁNLAT CSAK NÁLUNK!
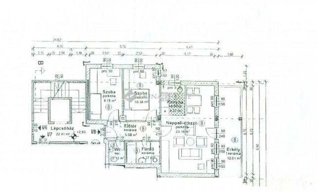
Kucsma utcában eladó egy 59,8 nm-es, 1+2 szobás jó állapotú lakás 12,61 nm-es erkéllyel. ( Tulajdoni lapon 62 nm.) A ház 2007-ben épült, csöndes, nyugodt környéken mégis kiváló közlekedéssel. A lakás kiváló elosztású, kényelmes előszobával, külön, nem a nappaliból nyíló hálószobákkal, külön kialakítású a fürdő és a wc, valamint hatalmas erkéllyel. Az ablakokon redőny és szúnyogháló, hűtő klíma a nappaliban és cirkó fűtéses. A burkolatok, szaniterek, konyhabútor az eredetiek. A közlekedés kiváló, a közelben a 30, 30A buszok és a 14-es villamos. A lakás tehermentes, jelenleg bérlők lakják, akik szívesen visszabérelnék. A nappaliban lévő gardróbszekrény, a konyhabútor és a klíma a vételár része.
A lakáshoz tartozik és kötelezően megvásárolandó egy teremgarázs beálló + 7 mFt és egy 5,16 nm-es tároló 5 mFt, összesen 105 mFT.
Befektetésnek és otthonnak is tökéletes választás!

Referencia szám: LK030427

Hirdetés feltöltve: 2025. 10. 17. Utoljára módosítva: 2025. 12. 21.

3 szobás téglalakások ára Budapesten

Ebből az összehasonlításból megtudhatod, hogyan viszonyul a lakás ára a környékbeli téglalakások átlagos árához. Ez nem azt jelenti, hogy ennyivel olcsóbb vagy drágább, mint amennyit a lakás ér, hanem hogy ennyivel tér el a környékbeli átlagtól.

Ennek a m² ára
XIII. kerület m² ár
Budapest m² ár
1500 e Ft
1779 e Ft 16%
1689 e Ft 11%
Ennek az ára
XIII. kerület átlagár
Budapest átlagár
93 M Ft m Ft
130.6 m Ft 29%
130.3 m Ft 29%

Az ingatlan elhelyezkedése

Cím: Budapest, XIII. kerület, 1. emelet

Eladó ingatlanok a környékről

Eladó téglalakás
Eladó téglalakás

XIII. kerület, Angyalföld

185 M Ft
7 szoba
210 m2
Eladó téglalakás
Eladó téglalakás

XIV. kerület, Kiszugló, Kövér Lajos utca

168 M Ft
3 + 1 szoba
84 m2
Eladó üzlethelyiség
Eladó üzlethelyiség

II. kerület, Országút, Margit körút

6.999 M Ft
5 m2
Eladó téglalakás
Eladó téglalakás

XIII. kerület

139.935 M Ft
2 szoba
67 m2
Eladó téglalakás
Eladó téglalakás

III. kerület, Óbudaisziget, Folyamőr utca

76.9 M Ft
1 szoba
25 m2
Eladó téglalakás
Eladó téglalakás

VI. kerület

71.639 M Ft
1 + 1 szoba
37 m2
Eladó téglalakás
Eladó téglalakás

XIII. kerület, Angyalföld, Dévai utca

104.139 M Ft
3 szoba
68 m2
Eladó téglalakás
Eladó téglalakás

XIII. kerület, Angyalföld, Dévai utca

146.496 M Ft
4 szoba
80 m2
Eladó téglalakás
Eladó téglalakás

XIII. kerület

84.975 M Ft
2 szoba
50 m2
Eladó családi ház
Eladó családi ház

XXII. kerület, Budafok, Baross utca

199 M Ft
6 + 1 szoba
200 m2
Eladó téglalakás
Eladó téglalakás

XIII. kerület, Angyalföld, Kucsma utca

88.348 M Ft
4 szoba
97 m2
Eladó téglalakás
Eladó téglalakás

VIII. kerület, Palotanegyed, Rákóczi út

190 M Ft
5 szoba
121 m2
Eladó téglalakás
Eladó téglalakás

XIII. kerület

73.64 M Ft
2 szoba
47 m2
Eladó téglalakás
Eladó téglalakás

XIII. kerület, Angyalföld

84.9 M Ft
5 + 2 szoba
124 m2
Eladó téglalakás
Eladó téglalakás

XIII. kerület

127.12 M Ft
3 szoba
81 m2
Eladó téglalakás
Eladó téglalakás

VII. kerület, Belső Erzsébetváros, Rózsa utca

170 M Ft
5 szoba
124 m2
Eladó téglalakás
Eladó téglalakás

XI. kerület, Gellérthegy, Gyula utca

130 M Ft
2 szoba
56 m2
Eladó téglalakás
Eladó téglalakás

XIII. kerület, Vizafogó, Népfürdő utca 47

138.3 M Ft
3 szoba
81 m2
Eladó téglalakás
Eladó téglalakás

XIII. kerület, Angyalföld, Fiastyúk utca

39.9 M Ft
1 + 1 szoba
34 m2
Eladó téglalakás
Eladó téglalakás

XIII. kerület, Angyalföld, Lomb utca 13

142.5 M Ft
3 szoba
76 m2
Eladó téglalakás
Eladó téglalakás

XIII. kerület

82.95 M Ft
2 szoba
49 m2
Eladó téglalakás
Eladó téglalakás

VII. kerület, Belső Erzsébetváros, Erzsébet körút

89.9 M Ft
1 + 1 szoba
71 m2
Eladó téglalakás
Eladó téglalakás

XIII. kerület

262.035 M Ft
4 szoba
150 m2
Eladó téglalakás
Eladó téglalakás

XIII. kerület, Vizafogó, Dráva utca

99 M Ft
3 + 1 szoba
98 m2

Falusi CSOK ingatlanok

Eladó családi ház
Eladó családi ház

Mikebuda

68.5 M Ft
2 szoba
90 m2
Eladó családi ház
Eladó családi ház

Álmosd

13.9 M Ft
2 szoba
80 m2
Eladó családi ház
Eladó családi ház

Törtel

13.5 M Ft
5 szoba
74 m2
Eladó családi ház
Eladó családi ház

Babarc, Béke utca

15.5 M Ft
5 szoba
145 m2
Eladó családi ház
Eladó családi ház

Kocs

37.99 M Ft
2 szoba
53 m2
Eladó családi ház
Eladó családi ház

Villány, Baross Gábor

130 M Ft
6 szoba
370 m2
Eladó családi ház
Eladó családi ház

Tiszatenyő

13.99 M Ft
2 szoba
63 m2
Eladó családi ház
Eladó családi ház

Kemeneshőgyész

8 M Ft
2 szoba
60 m2