Astora Art House

Eladó téglalakás
Budapest, XIII. kerület, 4. emelet

+ 9 kép 1/12
94 900 000 Ft94.9 M Ft 1 825 000 Ft/m2
3 szoba
52 m2
4. emelet
építés éve:2021

Részletes adatok

Állapot: Újszerű
Fűtés: Egyéb
Extrák: Lift
Energetikai besorolás: Nem adta meg a hirdető

Az OTP Bank lakáshitel ajánlataFizetett hirdetés

+36 30 715
Ruzsits Andrea
RSD Ingatlan

Érdekel az OTP Bank kedvezményes lakáshitel ajánlata? *

* A kérdésre „Igen” válasz bejelölése esetén, az „Üzenet küldése” gombra kattintva kijelentem, hogy az OTP Bank Nyrt. Adatkezelési tájékoztatójának tartalmát megismertem és tudomásul vettem.

Eladó téglalakás leírása

Budapest „Angyalföldön” Greenside lakóparkban található 52nm alapterületű lakás eladó!

Házról:
-kivitelező AVICO GROUP;
-2021-es építésű, 30cm téglafal+10cm szigeteléssel;
-6 szintes társasházban 30 lakás épült;
-a teremgarázsban saját gépkocsibeálló;
-a házban lift üzemel;
-tetőn napelemrendszer van telepítve.

Lakásról:
-a lakás az negyedik emeleten helyezkedik el;
-alapterülete: 52nm + 6nm erkély;
-amerikai konyhás nappali+ két szoba;
-duplakomfortos.

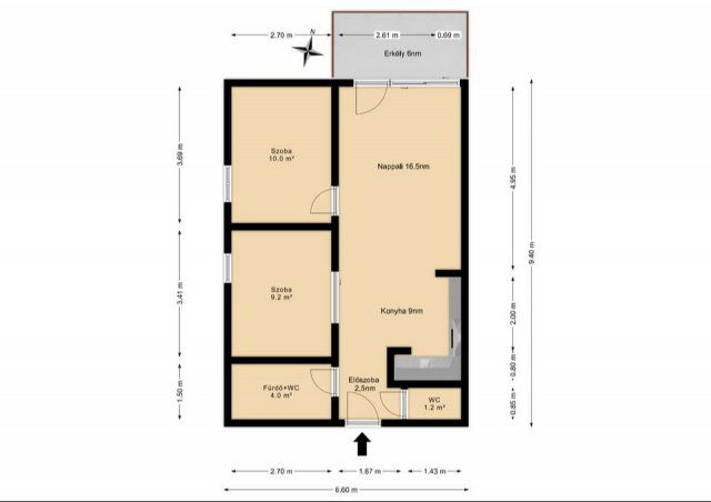
Helyiségei:
-a lakásba belépve egy 2,5nm alapterületű előszoba;
- 9nm alapterületű nyitott konyha;
-16,5nm alapterületű nappali, étkező;
-egy 10nm és egy 9,2nm alapterületű szoba;
-a fürdőszoba és a WC egy helyiségben 4nm alapterületen található;
-továbbá még egy külön bejáratú mellékhelyiség is van;
-erkély 6nm alapterületű a nappaliból megközelíthető;
-távfűtéses;
-hűtésről klíma gondoskodik.

Felszereltség:
- a szobák laminált padlóval burkoltak;
- a többi helyiségben járólap található;
- a nyílászárók műanyag keretesek, hőszigetelt üvegezéssel, valamint elektromos redőnnyel és szúnyoghálóval felszereltek.

A környékről:
-Budapest XIII. ker. Angyalföldön található;
-autóval és közösségi közlekedéssel is könnyen megközelíthető;
-infrastruktúra kiváló, sétatávolságra megtalálható boltok, fitneszterem stb.

Fiataloknak első lakásnak vagy 1-2 gyerekes családnak ajánlom ezt a lakást.
Befektetők részére is ajánlom az ingatlant, könnyen bérbeadható.
Teremgarázsban a parkolóhely megvásárlása nem kötelező, ára 7 000 000.-Ft

Megtekintés rugalmasan, előre egyeztetett időpontban lehetséges!

Hirdetés feltöltve: 2025. 10. 17. Utoljára módosítva: 2025. 11. 05.

3 szobás téglalakások ára Budapesten

Ebből az összehasonlításból megtudhatod, hogyan viszonyul a lakás ára a környékbeli téglalakások átlagos árához. Ez nem azt jelenti, hogy ennyivel olcsóbb vagy drágább, mint amennyit a lakás ér, hanem hogy ennyivel tér el a környékbeli átlagtól.

Ennek a m² ára
XIII. kerület m² ár
Budapest m² ár
1825 e Ft
1784 e Ft -2%
1685 e Ft -8%
Ennek az ára
XIII. kerület átlagár
Budapest átlagár
94.9 M Ft m Ft
130.1 m Ft 27%
131.9 m Ft 28%

Az ingatlan elhelyezkedése

Cím: Budapest, XIII. kerület, 4. emelet

Eladó ingatlanok a környékről

Eladó téglalakás
Eladó téglalakás

XIII. kerület, Angyalföld, Dévai utca

104.139 M Ft
3 szoba
68 m2
Eladó családi ház
Eladó családi ház

XV. kerület

93.9 M Ft
1 + 2 szoba
78 m2
Eladó téglalakás
Eladó téglalakás

IX. kerület

104.9 M Ft
2 szoba
47 m2
Eladó téglalakás
Eladó téglalakás

VII. kerület

129 M Ft
4 szoba
96 m2
Eladó téglalakás
Eladó téglalakás

XIII. kerület

199.815 M Ft
4 szoba
105 m2
Eladó téglalakás
Eladó téglalakás

XIII. kerület

127.12 M Ft
3 szoba
81 m2
Eladó téglalakás
Eladó téglalakás

XIII. kerület, Angyalföld

87.79 M Ft
1 + 1 szoba
57 m2
Eladó panellakás
Eladó panellakás

XIX. kerület

65 M Ft
1 + 2 szoba
59 m2
Eladó téglalakás
Eladó téglalakás

VIII. kerület, Józsefváros

32.5 M Ft
1 szoba
19 m2
Eladó téglalakás
Eladó téglalakás

XIII. kerület, Angyalföld

185 M Ft
7 szoba
210 m2
Eladó téglalakás
Eladó téglalakás

XIII. kerület

111.34 M Ft
2 szoba
55 m2
Eladó téglalakás
Eladó téglalakás

XIII. kerület

105.755 M Ft
2 szoba
74 m2
Eladó téglalakás
Eladó téglalakás

XIII. kerület

84.975 M Ft
2 szoba
50 m2
Eladó téglalakás
Eladó téglalakás

I. kerület

279 M Ft
4 szoba
113 m2
Eladó téglalakás
Eladó téglalakás

XIII. kerület, Angyalföld, Dunai panorámás lakás

174.6 M Ft
4 szoba
97 m2
Eladó téglalakás
Eladó téglalakás

XIV. kerület, Istvánmező

48 M Ft
1 szoba
32 m2
Eladó téglalakás
Eladó téglalakás

III. kerület

76.9 M Ft
1 szoba
30 m2
Eladó panellakás
Eladó panellakás

III. kerület

71.9 M Ft
1 + 2 szoba
57 m2
Eladó családi ház
Eladó családi ház

XV. kerület

93.9 M Ft
1 + 2 szoba
78 m2
Eladó téglalakás
Eladó téglalakás

XIII. kerület, Vizafogó, Dráva utca

99 M Ft
3 + 1 szoba
98 m2
Eladó téglalakás
Eladó téglalakás

XIII. kerület

139.935 M Ft
2 szoba
67 m2
Eladó téglalakás
Eladó téglalakás

XIII. kerület, Angyalföld, Dévai utca

104.801 M Ft
3 szoba
52 m2
Eladó téglalakás
Eladó téglalakás

VIII. kerület

39.9 M Ft
1 szoba
31 m2
Eladó téglalakás
Eladó téglalakás

XIII. kerület, Angyalföld, Lomb utca 13

134.1 M Ft
3 szoba
76 m2

Falusi CSOK ingatlanok

Eladó családi ház
Eladó családi ház

Kocsér

31.9 M Ft
2 + 1 szoba
68 m2
Eladó ikerház
Eladó ikerház

Seregélyes

94.9 M Ft
4 szoba
107 m2
Eladó családi ház
Eladó családi ház

Nagyberény

24.9 M Ft
3 szoba
62 m2
Eladó családi ház
Eladó családi ház

Ságvár

59.9 M Ft
3 szoba
87 m2
Eladó családi ház
Eladó családi ház

Orgovány, Mátyás király utca

16 M Ft
2 szoba
60 m2
Eladó családi ház
Eladó családi ház

Ágasegyháza

29.7 M Ft
3 szoba
75 m2
Eladó családi ház
Eladó családi ház

Andornaktálya

65 M Ft
3 szoba
80 m2
Eladó családi ház
Eladó családi ház

Kapoly

27.9 M Ft
3 szoba
65 m2