Oasis Residence

Eladó családi ház
Budapest, XX. kerület

+ 17 kép 1/20
115 000 000 Ft115 M Ft 912 698 Ft/m2
5 szoba
126 m2
építés éve:2024

Részletes adatok

Állapot: Újszerű
Telekméret: 350 m2
Fűtés: Gázkazán
Energetikai besorolás: Nem adta meg a hirdető

Az OTP Bank lakáshitel ajánlataFizetett hirdetés

+36 30 989
Keszthelyi László
Szigetszentmiklós OTP Ip

Érdekel az OTP Bank kedvezményes lakáshitel ajánlata? *

* A kérdésre „Igen” válasz bejelölése esetén, az „Üzenet küldése” gombra kattintva kijelentem, hogy az OTP Bank Nyrt. Adatkezelési tájékoztatójának tartalmát megismertem és tudomásul vettem.

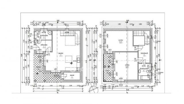
Eladó családi ház leírása

Igényesen kialakított, különálló családi ház eladó Pesterzsébet frekventált részén - ideális választás családoknak!

Pesterzsébet egyik legkedveltebb, csendes, mégis jól megközelíthető részén eladó egy 126 m2-es, két szintes, modern kialakítású, különálló családi ház, amely minden igényt kielégít, amit egy család csak kívánhat.
A 350 m2-es, gondozott sarok telken elhelyezkedő otthon tágas terei, minőségi burkolatai és igényes kivitelezése garantálják a kényelmet és az otthonosság érzését.

Földszint: világos, amerikai konyhás nappali, amely ideális családi együttlétekhez és baráti összejövetelekhez.
Zuhanyzós fürdőszoba és előszoba.
A jelenlegi tulajdonos a garázsból egy kényelmes hálószobát és gardróbot alakított ki.

Emelet: két hálószoba, kádas fürdőszoba.
60 m2-es padlástér, amely parkettázott, villannyal és radiátorokkal felszerelt, tökéletes lehet gyerekszobának, dolgozószobának vagy hobbiszobának.
Felszereltség és extrák:
20 cm grafitos hőszigetelés,
padló fűtés, prémium érintős kapcsoló.
Riasztórendszer, modern világítástechnika, üvegkorlát.
Két autó számára beálló elektromos kapuval.
Műfűvel borított udvar, terasz és kényelmes kiülő a pihenéshez.
Terasz pergola polikarbonátos tetővel.

Ez az ingatlan tökéletes választás azoknak a családoknak, akik szeretnének modern, minőségi otthonban élni, jó közlekedés mellett, mégis nyugodt, kertvárosi környezetben.

Hirdetés feltöltve: 2025. 11. 28.

5 szobás családi házak ára Budapesten

Ebből az összehasonlításból megtudhatod, hogyan viszonyul a lakás ára a környékbeli családi házak átlagos árához. Ez nem azt jelenti, hogy ennyivel olcsóbb vagy drágább, mint amennyit a lakás ér, hanem hogy ennyivel tér el a környékbeli átlagtól.

Ennek a m² ára
XX. kerület m² ár
Budapest m² ár
913 e Ft
690 e Ft -32%
970 e Ft 6%
Ennek az ára
XX. kerület átlagár
Budapest átlagár
115 M Ft m Ft
134 m Ft 14%
249.1 m Ft 54%

Az ingatlan elhelyezkedése

Cím: Budapest, XX. kerület

Eladó ingatlanok a környékről

Eladó családi ház
Eladó családi ház

XX. kerület, Mártírok útja közeli utca

160 M Ft
6 szoba
160 m2
Eladó panellakás
Eladó panellakás

XI. kerület

79.2 M Ft
2 szoba
55 m2
Eladó családi ház
Eladó családi ház

XX. kerület, Pacsirtatelep, Köztemető utca

120 M Ft
3 szoba
78 m2
Eladó családi ház
Eladó családi ház

XX. kerület, Pacsirtatelep

190 M Ft
5 szoba
480 m2
Eladó családi ház
Eladó családi ház

XX. kerület, Pacsirtatelep

103.5 M Ft
3 szoba
86 m2
Eladó téglalakás
Eladó téglalakás

II. kerület

126 M Ft
2 szoba
69 m2
Eladó családi ház
Eladó családi ház

XVII. kerület

98 M Ft
7 szoba
155 m2
Eladó családi ház
Eladó családi ház

XX. kerület

79.9 M Ft
6 szoba
300 m2
Eladó téglalakás
Eladó téglalakás

XI. kerület

127.9 M Ft
4 szoba
75 m2
Eladó családi ház
Eladó családi ház

XVI. kerület, Mátyásföld

247.7 M Ft
5 szoba
210 m2
Eladó családi ház
Eladó családi ház

XVI. kerület

247.7 M Ft
5 szoba
210 m2
Eladó családi ház
Eladó családi ház

XX. kerület, Pacsirtatelep

103.5 M Ft
3 szoba
86 m2
Eladó téglalakás
Eladó téglalakás

II. kerület

135 M Ft
2 + 1 szoba
66 m2
Eladó családi ház
Eladó családi ház

XVI. kerület

247.7 M Ft
5 szoba
210 m2
Eladó téglalakás
Eladó téglalakás

VIII. kerület, Józsefváros, Népszínház u. 16

55 M Ft
2 szoba
56 m2
Eladó téglalakás
Eladó téglalakás

XIII. kerület

62.8 M Ft
1 + 1 szoba
39 m2
Eladó családi ház
Eladó családi ház

XX. kerület

84.9 M Ft
8 szoba
220 m2
Eladó családi ház
Eladó családi ház

XX. kerület

190 M Ft
5 szoba
480 m2
Eladó téglalakás
Eladó téglalakás

X. kerület

54.9 M Ft
2 szoba
40 m2
Eladó családi ház
Eladó családi ház

XX. kerület

49.9 M Ft
2 szoba
72 m2
Eladó családi ház
Eladó családi ház

XX. kerület

178 M Ft
6 szoba
260 m2
Eladó családi ház
Eladó családi ház

XX. kerület, Erzsébetfalva

84.9 M Ft
8 szoba
52 m2
Eladó téglalakás
Eladó téglalakás

VII. kerület

79 M Ft
2 szoba
72 m2
Eladó családi ház
Eladó családi ház

XX. kerület, Kossuthfalva, Szabótelep utca

129 M Ft
6 + 2 szoba
145 m2

Falusi CSOK ingatlanok

Eladó családi ház
Eladó családi ház

Újlengyel

110 M Ft
4 szoba
121 m2
Eladó családi ház
Eladó családi ház

Jászalsószentgyörgy

39.9 M Ft
2 szoba
74 m2
Eladó családi ház
Eladó családi ház

Ádánd

53.5 M Ft
6 szoba
180 m2
Eladó családi ház
Eladó családi ház

Egyed

24.9 M Ft
2 + 1 szoba
56 m2
Eladó családi ház
Eladó családi ház

Ceglédbercel

95 M Ft
6 szoba
220 m2
Eladó családi ház
Eladó családi ház

Pölöskefő

19.9 M Ft
2 szoba
96 m2
Eladó családi ház
Eladó családi ház

Törtel

10 M Ft
2 szoba
43 m2
Eladó családi ház
Eladó családi ház

Darnózseli

79.9 M Ft
4 szoba
104 m2