Astora Olive Club House

Eladó téglalakás
Budapest, XII. kerület, 1. emelet

+ 11 kép 1/14
334 143 600 Ft334.144 M Ft 3 152 298 Ft/m2
3 szoba
106 m²
1. emelet
építés éve:2025

Részletes adatok

Fűtés: Egyéb
Emelet: 1. emelet
Extrák: Lift
Energetikai besorolás: Nem adta meg a hirdető

Az OTP Bank lakáshitel ajánlataFizetett hirdetés

+36 70 947
Boda Katalin
OTPip - Érd Bajcsy-Zsilinszky út 160 - OTP Ingatlanpont Iroda

Érdekel az OTP Bank kedvezményes lakáshitel ajánlata? *

* A kérdésre „Igen” válasz bejelölése esetén, az „Üzenet küldése” gombra kattintva kijelentem, hogy az OTP Bank Nyrt. Adatkezelési tájékoztatójának tartalmát megismertem és tudomásul vettem.

Eladó téglalakás leírása

VIRÁNYOS VILLAPARK - PRÉMIUM OTTHONOK!
Elindult a Virányos Villapark épülő lakásainak értékesítése! Részletes információk, alaprajzok, parkolóhelyek, tárolók a viranyosvillapark oldalon! Várható átadás: 2026. 3. negyedév!

A Virányos Villapark Budapest 12. kerületében, a budai Széll Kálmán térhez közel, mégis csendes környezetben elhelyezkedő prémium minőségű lakópark.

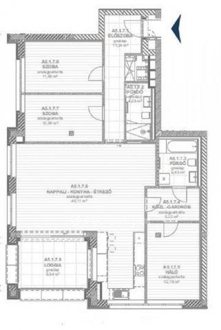
A hirdetésben szereplő lakás, az F épület 1. emeletén helyezkedik el, ÉNY tájolással, 106.3 m2 alapterülettel, mely életteret tovább növeli a 9,94 m2 alapterületű terasz.

A lakás helyiségei: Előszoba, Szoba, Amerikai konyhás nappali, Szoba, Félszoba, Közlekedő - Gardób, Fürdőszoba, Fürdőszoba.

A Villaparkban 60-175m2 közötti, N + 1-2-3-4 szobás, kertes, teraszos, erkélyes, tágas tetőteraszos, valamint duplex és penthouse lakások közül választhat. Az elérhető lakásokról érdeklődjön telefonon! A kiválasztott lakáshoz mélygarázs beálló hely és tároló vásárlása kötelező. További beálló helyek és tárolók a készlet erejéig vásárolhatóak.

A villapark főbb jellemzői: parkosított, öntözőrendszerrel ellátott közös kert, csendes környezet, változatos lakás-, terasz- és kertméretek, tágas, napfényes lakások.

A lakások műszaki jellemzői: megújuló energiával előállított hatékony, hőszivattyús hűtő-fűtő rendszer, padlófűtés és mennyezeti fan-coil hűtés a maximális komfort érzetért, lakásonként kialakított hővisszanyerős szellőztetőrendszer az állandó friss levegő biztosításáért, magas minőségű alumínium nyílászárók 3 rétegű üvegezéssel a kiváló hő- és hangszigetelésért, árnyékoló rendszer az optimális fényviszonyok eléréséért, audió-videó kaputelefon, személyre szabható okosotthon rendszer előkészítés, amely lehetővé teszi a lakás teljeskörű vezérlését.

Az ingatlan közvetlen környezetében számos magánóvoda és általános iskola, gimnázium található. Bevásárlási lehetőségként a Budagyöngye Bevásárlóközpont és a szintén közeli Mammut Bevásárló- és Szórakoztató Központ is rendelkezésre áll.

A Virányos Villapark tömegközlekedési eszközzel is könnyen megközelíthető, az 56-os, 59-es, 61-es villamosok, a 22-es, 91-es, 155-ös és 156-os buszok megállói pár perc sétatávolságra találhatók.

Hirdetés feltöltve: 2025. 12. 22. Utoljára módosítva: 2026. 02. 13.

3 szobás téglalakások ára Budapesten

Ebből az összehasonlításból megtudhatod, hogyan viszonyul a lakás ára a környékbeli téglalakások átlagos árához. Ez nem azt jelenti, hogy ennyivel olcsóbb vagy drágább, mint amennyit a lakás ér, hanem hogy ennyivel tér el a környékbeli átlagtól.

Ennek a m² ára
XII. kerület m² ár
Budapest m² ár
3152 e Ft
2422 e Ft -30%
1698 e Ft -86%
Ennek az ára
XII. kerület átlagár
Budapest átlagár
334.144 M Ft m Ft
206 m Ft -62%
131.4 m Ft -154%

Az ingatlan elhelyezkedése

Cím: Budapest, XII. kerület, 1. emelet

Eladó ingatlanok a környékről

XII. kerület, Németvölgy, Királyhágó tér 6-7
Eladó téglalakás

Budapest, XII. kerület

195.504 M Ft
3 szoba
72 m²
VII. kerület, Belső Erzsébetváros, Nagy Diófa utca
Eladó téglalakás

Budapest, VII. kerület

160 M Ft
4 szoba
118 m²
XII. kerület, Széchenyihegy, Ágnes köz
Eladó téglalakás

Budapest, XII. kerület

203 M Ft
3 szoba
72 m²
VII. kerület, Belső Erzsébetváros, Kertész 38-40
Eladó téglalakás

Budapest, VII. kerület

98.5 M Ft
2 szoba
67 m²
XII. kerület
Eladó téglalakás

Budapest, XII. kerület

383.914 M Ft
4 szoba
140 m²
XIV. kerület
Eladó panellakás

Budapest, XIV. kerület

83.9 M Ft
1 + 2 szoba
70 m²
XII. kerület, Németvölgy, Királyhágó tér 6-7
Eladó téglalakás

Budapest, XII. kerület

189.2 M Ft
3 szoba
72 m²
XIV. kerület
Eladó panellakás

Budapest, XIV. kerület

82.6 M Ft
1 + 2 szoba
68 m²
XII. kerület
Eladó téglalakás

Budapest, XII. kerület

650 M Ft
3 szoba
120 m²
XII. kerület, Orbánhegy
Eladó téglalakás

Budapest, XII. kerület

399 M Ft
4 szoba
165 m²
XIV. kerület, Alsórákos, Dorozsmai utca 203-209
Eladó téglalakás

Budapest, XIV. kerület

94.9 M Ft
2 szoba
50 m²
XII. kerület, Széchenyihegy, Ágnes köz
Eladó téglalakás

Budapest, XII. kerület

277 M Ft
3 szoba
98 m²
XIII. kerület, Vizafogó, Visegrádi utca 85
Eladó téglalakás

Budapest, XIII. kerület

58.5 M Ft
1 szoba
38 m²
XII. kerület
Eladó téglalakás

Budapest, XII. kerület

359.923 M Ft
5 szoba
122 m²
XII. kerület
Eladó téglalakás

Budapest, XII. kerület

199.9 M Ft
6 szoba
145 m²
VII. kerület, Belső Erzsébetváros, Kertész
Eladó téglalakás

Budapest, VII. kerület

52.9 M Ft
1 szoba
30 m²
XII. kerület, Széchenyihegy, Ágnes köz
Eladó téglalakás

Budapest, XII. kerület

475 M Ft
5 szoba
185 m²
VII. kerület, Belső Erzsébetváros, Akácfa utca
Eladó téglalakás

Budapest, VII. kerület

139.9 M Ft
3 szoba
73 m²
XIII. kerület
Eladó téglalakás

Budapest, XIII. kerület

58.9 M Ft
1 szoba
36 m²
VII. kerület, Belső Erzsébetváros, Kertész 35
Eladó téglalakás

Budapest, VII. kerület

99.5 M Ft
3 szoba
77 m²
XII. kerület
Eladó téglalakás

Budapest, XII. kerület

96.9 M Ft
2 + 1 szoba
82 m²
XII. kerület, Németvölgy, Királyhágó tér 6-7
Eladó téglalakás

Budapest, XII. kerület

177.03 M Ft
3 szoba
72 m²
VII. kerület, Belső Erzsébetváros, Kertész utca
Eladó téglalakás

Budapest, VII. kerület

55.9 M Ft
1 szoba
33 m²
XII. kerület
Eladó téglalakás

Budapest, XII. kerület

93 M Ft
2 szoba
53 m²

Falusi CSOK ingatlanok

Verseg
Eladó családi ház

Verseg

54 M Ft
2 szoba
92 m²
Csővár
Eladó családi ház

Csővár

62 M Ft
4 szoba
137 m²
Kislippó
Eladó családi ház

Kislippó

30 M Ft
2 szoba
80 m²
Szarvaskend
Eladó családi ház

Szarvaskend

26.9 M Ft
2 szoba
83 m²
Mályi
Eladó családi ház

Mályi

42.9 M Ft
3 szoba
128 m²
Jánosháza
Eladó családi ház

Jánosháza

39 M Ft
2 szoba
116 m²
Ceglédbercel
Eladó családi ház

Ceglédbercel

67 M Ft
4 szoba
165 m²
Lepsény
Eladó családi ház

Lepsény

72 M Ft
2 szoba
84 m²