Astora Art House

Eladó téglalakás
Budapest, XI. kerület, Albertfalva, 1. emelet

+ 7 kép 1/10
75 000 000 Ft75 M Ft 1 923 077 Ft/m2
2 szoba
39 m²
1. emelet
építés éve:2021

Részletes adatok

Állapot: Újszerű
Fűtés: Egyéb
Emelet: 1. emelet
Parkolás: Kocsibeálló
Energetikai besorolás: Nem adta meg a hirdető

Az OTP Bank lakáshitel ajánlataFizetett hirdetés

+36 70 500
Németh Zoltán László
referens

Érdekel az OTP Bank kedvezményes lakáshitel ajánlata? *

* A kérdésre „Igen” válasz bejelölése esetén, az „Üzenet küldése” gombra kattintva kijelentem, hogy az OTP Bank Nyrt. Adatkezelési tájékoztatójának tartalmát megismertem és tudomásul vettem.

Eladó téglalakás leírása

Kiválóan megközelíthető, mégis csendes helyen található, újszerű, 2 szobás otthon, elérhető áron!

INGATLAN HELYSZÍNE:
XI. kerület Albertfalva részén található, a Törökverő utcában. Savoya park 3-4 percre található, így minden napi szinten szükséges üzlet és szolgáltató gyorsan elérhető. Megközelíthetősége kiváló, budai fonódó villamos hálózat, számos buszjárat 5-6 percen belül elérhető.

ÉPÜLET JELLEMZŐI:
2021-ben épült, 7 szintes, erkélyekkel övezett és fedett beállókkal kialakított, újszerű téglaépület.

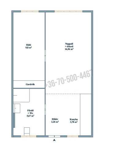
LAKÁS JELLEMZŐI:
I. emeleten található, alapterülete 39 nm.

Jelenlegi kialakítása egy tágas nappali, melyhez az előtér és konyha kapcsolódik, egy külön álló, tágas hálószoba méretes gardróbbal, valamint egy zuhannyal felszerelt fürdő toalettel képezik részeit.

Mind esztétikai, mind műszaki állapota kiváló.

Ablakai részben utcafrontra, részben az épület belső kert részére néznek.

MŰSZAKI FELSZERELTSÉG:
Fűtése padlófűtéssel, illetve mennyezeti hűtés-fűtéssel megoldott.

KÖLTSÉGEK:
Havi költségei műszaki- és esztétikai kialakításának köszönhetően jelképesek.

PARKOLÁS:
Az ingatlanhoz fedett kocsibeálló is tartozik, amelynek megvásárlása kötelező.

IRÁNYÁR:
75 MFt + Parkolóhely ára 5 MFt

Hirdetés feltöltve: 2026. 02. 10. Utoljára módosítva: 2026. 02. 18.

2 szobás téglalakások ára Budapesten

Ebből az összehasonlításból megtudhatod, hogyan viszonyul a lakás ára a környékbeli téglalakások átlagos árához. Ez nem azt jelenti, hogy ennyivel olcsóbb vagy drágább, mint amennyit a lakás ér, hanem hogy ennyivel tér el a környékbeli átlagtól.

Ennek a m² ára
Albertfalva m² ár
XI. kerület m² ár
Budapest m² ár
1923 e Ft
2059 e Ft 7%
2006 e Ft 4%
1695 e Ft -13%
Ennek az ára
Albertfalva átlagár
XI. kerület átlagár
Budapest átlagár
75 M Ft m Ft
150.4 m Ft 50%
96.8 m Ft 23%
90.3 m Ft 17%

Az ingatlan elhelyezkedése

Cím: Budapest, XI. kerület, Albertfalva, 1. emelet

Eladó ingatlanok a környékről

XI. kerület
Eladó téglalakás

Budapest, XI. kerület

175 M Ft
4 szoba
115 m²
XIII. kerület
Eladó téglalakás

Budapest, XIII. kerület

81.8 M Ft
2 szoba
53 m²
X. kerület
Eladó panellakás

Budapest, X. kerület

83.9 M Ft
3 szoba
68 m²
XI. kerület, Péterhegy
Eladó téglalakás

Budapest, XI. kerület

98.058 M Ft
3 szoba
64 m²
XI. kerület, Péterhegy
Eladó téglalakás

Budapest, XI. kerület

96.925 M Ft
3 szoba
64 m²
XI. kerület, Madárhegy
Eladó téglalakás

Budapest, XI. kerület

251 M Ft
4 szoba
91 m²
XI. kerület, Madárhegy
Eladó téglalakás

Budapest, XI. kerület

259 M Ft
5 szoba
133 m²
XI. kerület, Péterhegy
Eladó téglalakás

Budapest, XI. kerület

85.811 M Ft
2 szoba
50 m²
XI. kerület, Madárhegy
Eladó téglalakás

Budapest, XI. kerület

340 M Ft
5 szoba
186 m²
X. kerület, Laposdűlő
Eladó üzlethelyiség

Budapest, X. kerület

49.9 M Ft
4 szoba
68 m²
VII. kerület
Eladó téglalakás

Budapest, VII. kerület

45.9 M Ft
2 szoba
24 m²
XI. kerület, Péterhegy
Eladó téglalakás

Budapest, XI. kerület

112.581 M Ft
3 szoba
74 m²
XI. kerület, Péterhegy
Eladó téglalakás

Budapest, XI. kerület

96.41 M Ft
3 szoba
65 m²
XI. kerület
Eladó téglalakás

Budapest, XI. kerület

129 M Ft
3 szoba
66 m²
XVII. kerület
Eladó családi ház

Budapest, XVII. kerület

138 M Ft
5 szoba
112 m²
XVII. kerület, Rákoscsaba
Eladó családi ház

Budapest, XVII. kerület

82 M Ft
3 szoba
80 m²
III. kerület
Eladó téglalakás

Budapest, III. kerület

145 M Ft
2 szoba
108 m²
XX. kerület, Pacsirtatelep
Eladó családi ház

Budapest, XX. kerület

119 M Ft
5 szoba
230 m²
XI. kerület, Madárhegy
Eladó téglalakás

Budapest, XI. kerület

270 M Ft
4 szoba
133 m²
XV. kerület
Eladó panellakás

Budapest, XV. kerület

79.9 M Ft
3 szoba
61 m²
XI. kerület, Gellérthegy
Eladó téglalakás

Budapest, XI. kerület

220 M Ft
2 + 1 szoba
76 m²
XI. kerület, Madárhegy
Eladó téglalakás

Budapest, XI. kerület

339 M Ft
4 szoba
119 m²
XI. kerület
Eladó téglalakás

Budapest, XI. kerület

235 M Ft
4 szoba
127 m²
XI. kerület, Spanyolrét
Eladó téglalakás

Budapest, XI. kerület

239.9 M Ft
5 szoba
139 m²

Falusi CSOK ingatlanok

Mezőkeresztes
Eladó ikerház

Mezőkeresztes

14.9 M Ft
2 + 1 szoba
70 m²
Berzence, Máryás utca
Eladó családi ház

Berzence

27.9 M Ft
3 szoba
94 m²
Sajóvámos
Eladó családi ház

Sajóvámos

71.9 M Ft
3 szoba
120 m²
Orci
Eladó családi ház

Orci

59.9 M Ft
3 szoba
101 m²
Nagykörű, Jókai Mór utca 20
Eladó családi ház

Nagykörű

8.97 M Ft
1 + 1 szoba
101 m²
Kisszállás
Eladó családi ház

Kisszállás

95 M Ft
3 szoba
125 m²
Nagyharsány
Eladó téglalakás

Nagyharsány

22.5 M Ft
3 szoba
71 m²
Balatonfenyves
Eladó családi ház

Balatonfenyves

430 M Ft
4 szoba
274 m²