Metrodom

Eladó téglalakás
Budapest, XI. kerület, Kelenföld, 1. emelet

+ 17 kép 1/20
110 000 000 Ft110 M Ft 2 156 863 Ft/m2
2 szoba
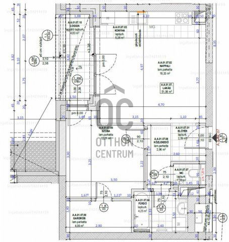
51 m2
1. emelet
építés éve:2024

Részletes adatok

Fűtés: Egyéb
Közmű: Villany, Csatorna
Energetikai besorolás: Nem adta meg a hirdető
Zenga Premier

Friss hirdetések, amiket nem találsz meg más ingatlankereső portálon.

Fedezd fel elsőként a Zenga Premier címkés eladó ingatlanokat!

További részletek a zenga.hu-n

Az OTP Bank lakáshitel ajánlataFizetett hirdetés

+36 70 465
Lédeczi Dorina
New Home Project Kft.

Érdekel az OTP Bank kedvezményes lakáshitel ajánlata? *

* A kérdésre „Igen” válasz bejelölése esetén, az „Üzenet küldése” gombra kattintva kijelentem, hogy az OTP Bank Nyrt. Adatkezelési tájékoztatójának tartalmát megismertem és tudomásul vettem.

Eladó téglalakás leírása

Megvételre kínálunk a 11. kerület zöldövezetében egy új építésű ,két szobás, 51 m2-es, első emeleti erkélyes lakást egy tavasszal átadott lakóparkban.
A lakás teljesen bútorozott és felszerelt, az ár az összes bútort tartalmazza!
Az ingatlan fejlett okos otthon rendszerrel, fűtés- és világításvezérléssel, nyitásérzékelőkkel, integrált videó-kaputelefonnal, szabadon bővíthető okos redőnyökkel, valamint füstérzékelővel kerül kialakításra.
Az épületben a Metrodom saját fejlesztésű Dual Eco fűtési rendszere garantálja a közel nulla energiafelhasználású besorolást, illetve a kiugróan alacsony fűtési és hűtési költségeket.
A lakóépület alapszolgáltatásai közé tartozik a kiépített kamerarendszer, valamint a két fős, 24 órás portaszolgálat és őrség is.

A lakóparkon belül családi bölcsőde, önkormányzati fenntartású óvoda, baba játszószoba és több korosztályos hagyományos és vizes játszótér várja a gyermekes családokat.
A sportolni és feltöltődni vágyók számára vonzó lehet a változatos gépekkel felszerelt fitneszterem, a biztonságos kültéri edzőgépek, a szaunák, és a közösségi csónakház is.
Emellett a fogadóépületben pékség és kávézó, a lakóparkon belül pedig játékszoba, grillterasz, valamint lakóépületenként egy-egy panoráma tetőterasz szolgálja a lakóparkban élők kényelmét.

A lakáshoz nem tartozik tároló és teremgarázs hely, de mindig van a házban eladó/kiadó.
Amennyiben bármilyen kérdése lenne, vagy további információkra lenne szüksége, kérem, ne habozzon keresni.

Hirdetés feltöltve: 2025. 11. 26.

2 szobás téglalakások ára Budapesten

Ebből az összehasonlításból megtudhatod, hogyan viszonyul a lakás ára a környékbeli téglalakások átlagos árához. Ez nem azt jelenti, hogy ennyivel olcsóbb vagy drágább, mint amennyit a lakás ér, hanem hogy ennyivel tér el a környékbeli átlagtól.

Ennek a m² ára
Kelenföld m² ár
XI. kerület m² ár
Budapest m² ár
2157 e Ft
1933 e Ft -12%
1965 e Ft -10%
1680 e Ft -28%
Ennek az ára
Kelenföld átlagár
XI. kerület átlagár
Budapest átlagár
110 M Ft m Ft
90 m Ft -22%
95.5 m Ft -15%
90.6 m Ft -21%

Az ingatlan elhelyezkedése

Cím: Budapest, XI. kerület, Kelenföld, 1. emelet

Eladó ingatlanok a környékről

Eladó téglalakás
Eladó téglalakás

XI. kerület

129 M Ft
3 szoba
66 m2
Eladó panellakás
Eladó panellakás

XVIII. kerület

79.9 M Ft
2 + 1 szoba
72 m2
Eladó panellakás
Eladó panellakás

XI. kerület

89.5 M Ft
2 szoba
55 m2
Eladó téglalakás
Eladó téglalakás

X. kerület

48.4 M Ft
1 szoba
27 m2
Eladó téglalakás
Eladó téglalakás

XI. kerület

175 M Ft
4 szoba
115 m2
Eladó téglalakás
Eladó téglalakás

XI. kerület, Rupphegyi út

139.9 M Ft
3 szoba
68 m2
Eladó téglalakás
Eladó téglalakás

VIII. kerület

79.9 M Ft
2 szoba
77 m2
Eladó téglalakás
Eladó téglalakás

XI. kerület, Madárhegy

319 M Ft
4 szoba
119 m2
Eladó téglalakás
Eladó téglalakás

XI. kerület

235 M Ft
4 szoba
127 m2
Eladó téglalakás
Eladó téglalakás

XIV. kerület

82.5 M Ft
2 szoba
64 m2
Eladó téglalakás
Eladó téglalakás

XI. kerület, Madárhegy

250 M Ft
4 szoba
133 m2
Eladó téglalakás
Eladó téglalakás

XI. kerület, Péterhegy

85.811 M Ft
2 szoba
50 m2
Eladó téglalakás
Eladó téglalakás

VII. kerület

110 M Ft
2 szoba
74 m2
Eladó téglalakás
Eladó téglalakás

XI. kerület, Madárhegy

251 M Ft
4 szoba
91 m2
Eladó panellakás
Eladó panellakás

XV. kerület

82.9 M Ft
3 szoba
66 m2
Eladó téglalakás
Eladó téglalakás

XI. kerület, Hosszúrét, Rétkerülő út

189 M Ft
2 + 1 szoba
110 m2
Eladó téglalakás
Eladó téglalakás

XV. kerület, Pestújhely

124.5 M Ft
3 szoba
84 m2
Eladó téglalakás
Eladó téglalakás

III. kerület, Békásmegyer, Hadrianus

59.9 M Ft
1 + 1 szoba
29 m2
Eladó panellakás
Eladó panellakás

IX. kerület

84.9 M Ft
3 szoba
67 m2
Eladó panellakás
Eladó panellakás

III. kerület, Békásmegyer

77.223 M Ft
1 + 2 szoba
56 m2
Eladó téglalakás
Eladó téglalakás

XI. kerület, Spanyolrét

239.9 M Ft
5 szoba
139 m2
Eladó téglalakás
Eladó téglalakás

XI. kerület, Madárhegy

237 M Ft
3 szoba
85 m2
Eladó téglalakás
Eladó téglalakás

XIV. kerület

119.9 M Ft
3 szoba
92 m2
Eladó téglalakás
Eladó téglalakás

XI. kerület, Péterhegy

151 M Ft
3 szoba
74 m2

Falusi CSOK ingatlanok

Eladó családi ház
Eladó családi ház

Nagybörzsöny

79.9 M Ft
4 szoba
149 m2
Eladó családi ház
Eladó családi ház

Szabadbattyán

136 M Ft
5 szoba
226 m2
Eladó családi ház
Eladó családi ház

Vilonya

71.9 M Ft
5 szoba
105 m2
Eladó családi ház
Eladó családi ház

Tarján

31.5 M Ft
3 szoba
120 m2
Eladó családi ház
Eladó családi ház

Szurdokpüspöki

16 M Ft
1 szoba
45 m2
Eladó családi ház
Eladó családi ház

Dunavecse

25 M Ft
3 szoba
120 m2
Eladó családi ház
Eladó családi ház

Bodajk

67 M Ft
2 szoba
72 m2
Eladó családi ház
Eladó családi ház

Németkér

149.9 M Ft
2 szoba
540 m2