Seven Pearl

Eladó téglalakás
Budapest, XI. kerület, 2. emelet

+ 7 kép 1/10
135 980 000 Ft135.98 M Ft 1 678 765 Ft/m2
3 szoba
81 m2
2. emelet
építés éve:2028

Részletes adatok

Fűtés: Egyéb
Közmű: Villany, Csatorna
Energetikai besorolás: Nem adta meg a hirdető

Az OTP Bank lakáshitel ajánlataFizetett hirdetés

+36 70 465
Arany Bálint
referens

Érdekel az OTP Bank kedvezményes lakáshitel ajánlata? *

* A kérdésre „Igen” válasz bejelölése esetén, az „Üzenet küldése” gombra kattintva kijelentem, hogy az OTP Bank Nyrt. Adatkezelési tájékoztatójának tartalmát megismertem és tudomásul vettem.

Eladó téglalakás leírása

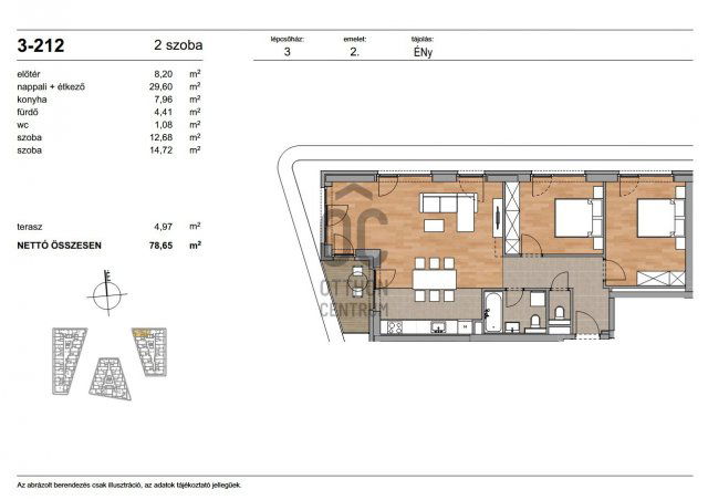
Az ingatlan nettó alapterülete 78,65 m² + 4,97 m² erkély.
Projekt bemutatása

Ott, ahol a természet és a városi élet találkozik.
A budai Duna-parton megvalósuló új prémium fejlesztés a vízparti élet luxusát kínálja modern, elegáns formában.
Tágas teraszok, lenyűgöző panoráma, fenntartható műszaki megoldások – mindez néhány lépésre a folyótól, Buda dinamikusan fejlődő negyedében.

A budai életstílus új dimenziója

Ez a lakópark nem csupán otthon, hanem életérzés.
A teraszról a Duna látványa, a vízpart halk morajlása és a modern városi környezet tökéletes harmóniája adja az itt élők mindennapjainak különleges atmoszféráját.

A projekt két ütemben valósul meg:
- I. ütem: három elegáns, 9 emeletes épület
- II. ütem: három közvetlen vízparti épület, exkluzív kilátással és saját kikötővel

KIVÉTELES LOKÁCIÓ – tökéletes elérhetőség
- XI. kerület, közvetlenül a Duna-parton
- Savoya Park: pár perc sétára
- Etele Plaza: 10 perc autóval
- Kopaszi-gát: mindössze 4 km
- Móricz Zsigmond körtér: 13 perc busszal
- Villamos- és buszmegállók néhány perc sétára, minden szolgáltatás – iskolák, éttermek, bevásárlási lehetőségek – elérhető közelségben.

A környék Buda egyik leggyorsabban fejlődő területe, modern infrastruktúrával, vízparti sétányokkal és zöld parkokkal – a város új, természetközeli központja születik itt.

Kortárs építészet – időtálló elegancia
A lakóépületek modern, letisztult megjelenése a Duna vonalvezetését idézi.
A zöldtetők, parkosított udvarok és természetes anyaghasználat az épített környezet és a természet összhangját teremti meg.
- 2 szintes mélygarázs, elektromos autótöltési előkészítéssel
- Tágas, napfényes teraszok minden lakáshoz
- Háromrétegű nyílászárók, prémium hő- és hangszigeteléssel
- WPC teraszburkolatok, korszerű hőhídmentes homlokzati rendszer
- Közösségi zöldterek és pihenőkertek

MŰSZAKI TARTALOM – a jövő technológiája ma
- A fejlesztés kiemelt hangsúlyt helyez az energiahatékonyságra és a komfortérzetre:
- Környezetbarát levegős hőszivattyús rendszer
- Mennyezeti hűtés-fűtés, helyiségenként szabályozható termosztátokkal
- Okosvezérlés, távvezérelhető hőmérséklet-szabályozás
- Zöldtető és hővisszanyerős szellőzés
- Egyedi mérésű energiafogyasztás minden lakásban

A lakások belső kialakítása válogatott anyagkollekcióból választható, a klasszikus elegancia és a modern minimalizmus stílusában.

Élmény, ami túlmutat az otthon fogalmán

A lakópark lakói a vízpart nyugalmát, a zöld környezet frissességét és a budai életstílus kényelmét élvezhetik nap mint nap.
A saját klubhelyiség és kikötő a vízparti élet exkluzív élményét teszi teljessé.

Ez az a hely, ahol a mindennapok is ünneppé válnak.

VÁRHATÓ ÁTADÁS:

Szerkezetkész: 2027. február
Kulcsrakész: 2028. december

A Duna-part új fejezete most íródik.
Itt nem csupán lakást vásárol – hanem egy életstílust, ami Buda jövőjét határozza meg.

Hirdetés feltöltve: 2025. 11. 09. Utoljára módosítva: 2025. 11. 09.

3 szobás téglalakások ára Budapesten

Ebből az összehasonlításból megtudhatod, hogyan viszonyul a lakás ára a környékbeli téglalakások átlagos árához. Ez nem azt jelenti, hogy ennyivel olcsóbb vagy drágább, mint amennyit a lakás ér, hanem hogy ennyivel tér el a környékbeli átlagtól.

Ennek a m² ára
XI. kerület m² ár
Budapest m² ár
1679 e Ft
1851 e Ft 9%
1683 e Ft 0%
Ennek az ára
XI. kerület átlagár
Budapest átlagár
135.98 M Ft m Ft
137 m Ft 1%
131.4 m Ft -3%

Az ingatlan elhelyezkedése

Cím: Budapest, XI. kerület, 2. emelet

Eladó ingatlanok a környékről

Eladó téglalakás
Eladó téglalakás

XI. kerület, Hosszúrét, Beléndek utca

168 M Ft
4 szoba
103 m2
Eladó panellakás
Eladó panellakás

XIII. kerület

89.5 M Ft
3 szoba
68 m2
Eladó téglalakás
Eladó téglalakás

XI. kerület, Madárhegy

237 M Ft
3 szoba
85 m2
Eladó panellakás
Eladó panellakás

IV. kerület

93.5 M Ft
2 + 2 szoba
71 m2
Eladó téglalakás
Eladó téglalakás

XI. kerület, Madárhegy

275 M Ft
4 + 1 szoba
146 m2
Eladó garázs
Eladó garázs

IV. kerület, Újpest, Ősz utca

6.5 M Ft
12 m2
Eladó téglalakás
Eladó téglalakás

XIII. kerület

74.35 M Ft
1 szoba
36 m2
Eladó téglalakás
Eladó téglalakás

XI. kerület, Madárhegy

255 M Ft
4 + 1 szoba
132 m2
Eladó téglalakás
Eladó téglalakás

XI. kerület, Péterhegy

95.38 M Ft
3 szoba
65 m2
Eladó téglalakás
Eladó téglalakás

XII. kerület

366.154 M Ft
2 szoba
83 m2
Eladó téglalakás
Eladó téglalakás

XI. kerület, Kőérberek, Tóváros

169 M Ft
4 szoba
112 m2
Eladó téglalakás
Eladó téglalakás

XI. kerület, Madárhegy

319 M Ft
4 szoba
119 m2
Eladó téglalakás
Eladó téglalakás

XI. kerület

86.65 M Ft
2 szoba
52 m2
Eladó téglalakás
Eladó téglalakás

XI. kerület, Spanyolrét

239.9 M Ft
5 szoba
139 m2
Eladó téglalakás
Eladó téglalakás

XIV. kerület

109 M Ft
3 szoba
76 m2
Eladó téglalakás
Eladó téglalakás

XI. kerület, Péterhegy

107.431 M Ft
3 szoba
74 m2
Eladó téglalakás
Eladó téglalakás

XI. kerület, Rupphegyi út

139.9 M Ft
3 szoba
68 m2
Eladó téglalakás
Eladó téglalakás

XIV. kerület

107 M Ft
3 szoba
71 m2
Eladó téglalakás
Eladó téglalakás

XI. kerület, Rupphegyi út

268.88 M Ft
5 szoba
132 m2
Eladó téglalakás
Eladó téglalakás

XIII. kerület

92.8 M Ft
2 + 1 szoba
45 m2
Eladó téglalakás
Eladó téglalakás

XI. kerület, Péterhegy

151 M Ft
3 szoba
74 m2
Eladó téglalakás
Eladó téglalakás

XI. kerület

79.93 M Ft
2 szoba
50 m2
Eladó téglalakás
Eladó téglalakás

XIV. kerület

89.9 M Ft
2 szoba
65 m2
Eladó téglalakás
Eladó téglalakás

XIII. kerület

95 M Ft
3 szoba
65 m2

Falusi CSOK ingatlanok

Eladó családi ház
Eladó családi ház

Tápióság

12.9 M Ft
1 szoba
50 m2
Eladó családi ház
Eladó családi ház

Szenyér

6.5 M Ft
2 szoba
67 m2
Eladó téglalakás
Eladó téglalakás

Balatonszemes

125.2 M Ft
2 szoba
50 m2
Eladó családi ház
Eladó családi ház

Erdősmecske

32 M Ft
3 szoba
115 m2
Eladó családi ház
Eladó családi ház

Harkakötöny

27.5 M Ft
3 szoba
115 m2
Eladó családi ház
Eladó családi ház

Pécsely, Szőlő Dülő

499 M Ft
4 + 2 szoba
183 m2
Eladó családi ház
Eladó családi ház

Látrány

39.9 M Ft
1 szoba
52 m2
Eladó családi ház
Eladó családi ház

Tésenfa, Kossuth utca 23/a

5.55 M Ft
1 + 1 szoba
109 m2