Aerogate Homes

Eladó téglalakás
Budapest, X. kerület, Óhegy, 4. emelet

+ 8 kép 1/11
61 900 000 Ft61.9 M Ft 1 263 265 Ft/m2
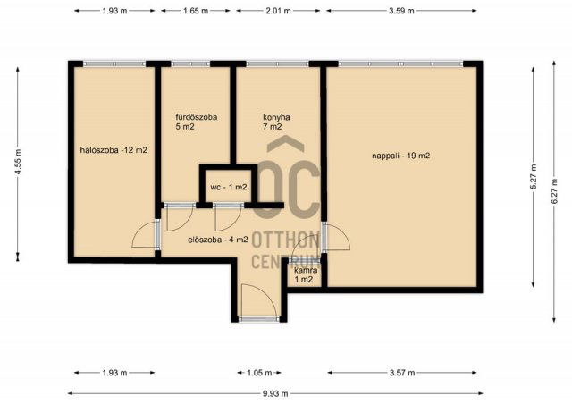
2 szoba
49 m²
4. emelet
építés éve:1976

Részletes adatok

Fűtés: Gázkonvektor
Emelet: 4. emelet
Energetikai besorolás: Nem adta meg a hirdető

Az OTP Bank lakáshitel ajánlataFizetett hirdetés

+36 70 465
Dávid Balázs
referens

Érdekel az OTP Bank kedvezményes lakáshitel ajánlata? *

* A kérdésre „Igen” válasz bejelölése esetén, az „Üzenet küldése” gombra kattintva kijelentem, hogy az OTP Bank Nyrt. Adatkezelési tájékoztatójának tartalmát megismertem és tudomásul vettem.

Eladó téglalakás leírása

Kiváló lehetőséget kínálunk egy praktikus elrendezésű, 49 m²-es, 2 külön nyíló szobás lakás megvásárlására egy csendes, zöldövezeti részen, ahol a nyugalom és a kiváló közlekedés kéz a kézben járnak. A külön nyíló helyiségek révén a lakás tökéletes választás pároknak, kisgyermekes családoknak, de akár befektetési célra is ideális.

Főbb jellemzők:
Teljes alapterület: 49 m²
Szobák száma: 2
Világos, kádas fürdőszoba
Polcos kamra, amiben minden szükséges eszköz elfér
Minden szoba külön nyílik
Tájolás: DK (délkeleti fekvés – világos, napfényes terek)
Alacsony közös költség: 12.500 Ft

A felújítás során a hangszigetelt ablakokra redőnyök kerületek, valamint a szobákban újabb konvektorok is helyet kaptak. A teljes lakás új burkolatokat kapott és egy jobb elrendezéssel több helyiség került kialakításra. A társasház frissen lett felújítva, amivel a szigetelést és az ablakok cseréjét is kipipálták.

Környezet és elhelyezkedés:
A lakás csendes utcában, jó közlekedéssel bíró, zöldövezeti környezetben helyezkedik el, így tökéletes választás lehet mindazoknak, akik nyugalomra, ugyanakkor könnyű elérhetőségre vágynak.

Érdeklődjön most, ne maradjon le erről a remek lehetőségről!

Hirdetés feltöltve: 2025. 11. 04. Utoljára módosítva: 2026. 02. 16.

2 szobás téglalakások ára Budapesten

Ebből az összehasonlításból megtudhatod, hogyan viszonyul a lakás ára a környékbeli téglalakások átlagos árához. Ez nem azt jelenti, hogy ennyivel olcsóbb vagy drágább, mint amennyit a lakás ér, hanem hogy ennyivel tér el a környékbeli átlagtól.

Ennek a m² ára
Óhegy m² ár
X. kerület m² ár
Budapest m² ár
1263 e Ft
1179 e Ft -7%
1233 e Ft -2%
1703 e Ft 26%
Ennek az ára
Óhegy átlagár
X. kerület átlagár
Budapest átlagár
61.9 M Ft m Ft
61.7 m Ft 0%
65.1 m Ft 5%
91 m Ft 32%

Az ingatlan elhelyezkedése

Cím: Budapest, X. kerület, Óhegy, 4. emelet

Eladó ingatlanok a környékről

XI. kerület, Albertfalva, Papp Elemér utca 6
Eladó téglalakás

Budapest, XI. kerület

203.8 M Ft
3 szoba
90 m²
X. kerület, Felsőrákos, Gyógyszergyári út 6-12
Eladó téglalakás

Budapest, X. kerület

67 M Ft
2 szoba
51 m²
XI. kerület, Albertfalva, Papp Elemér utca 6
Eladó téglalakás

Budapest, XI. kerület

99.7 M Ft
2 szoba
48 m²
X. kerület
Eladó téglalakás

Budapest, X. kerület

84.5 M Ft
2 + 1 szoba
92 m²
XI. kerület, Albertfalva, Papp Elemér utca 6
Eladó téglalakás

Budapest, XI. kerület

143.6 M Ft
2 szoba
48 m²
X. kerület, Felsőrákos, Gyógyszergyári út 6-12
Eladó téglalakás

Budapest, X. kerület

103.543 M Ft
4 szoba
83 m²
XI. kerület, Albertfalva, Papp Elemér utca 6
Eladó téglalakás

Budapest, XI. kerület

205.5 M Ft
3 szoba
90 m²
X. kerület
Eladó téglalakás

Budapest, X. kerület

24.9 M Ft
1 szoba
32 m²
X. kerület
Eladó téglalakás

Budapest, X. kerület

63.9 M Ft
3 szoba
75 m²
X. kerület, Felsőrákos, Gyógyszergyári út 6-12
Eladó téglalakás

Budapest, X. kerület

97.078 M Ft
4 szoba
77 m²
X. kerület
Eladó téglalakás

Budapest, X. kerület

63.9 M Ft
3 szoba
75 m²
XI. kerület, Albertfalva, Papp Elemér utca 6
Eladó téglalakás

Budapest, XI. kerület

100.9 M Ft
2 szoba
48 m²
XI. kerület, Albertfalva, Papp Elemér utca 6
Eladó téglalakás

Budapest, XI. kerület

347.6 M Ft
4 szoba
125 m²
X. kerület, Felsőrákos, Gyógyszergyári út 6-12
Eladó téglalakás

Budapest, X. kerület

71 M Ft
3 szoba
62 m²
X. kerület
Eladó téglalakás

Budapest, X. kerület

63.9 M Ft
3 szoba
75 m²
XI. kerület, Albertfalva, Papp Elemér utca 6
Eladó téglalakás

Budapest, XI. kerület

107.2 M Ft
2 szoba
48 m²
X. kerület, Felsőrákos, Gyógyszergyári út 6-12
Eladó téglalakás

Budapest, X. kerület

79.9 M Ft
3 szoba
62 m²
XV. kerület, Rákospalota, Szent korona
Eladó téglalakás

Budapest, XV. kerület

70 M Ft
2 + 1 szoba
56 m²
XI. kerület, Albertfalva, Papp Elemér utca 6
Eladó téglalakás

Budapest, XI. kerület

112.2 M Ft
2 szoba
51 m²
X. kerület
Eladó téglalakás

Budapest, X. kerület

24.9 M Ft
1 szoba
32 m²
XI. kerület, Albertfalva, Papp Elemér utca 6
Eladó téglalakás

Budapest, XI. kerület

102.3 M Ft
2 szoba
48 m²
X. kerület, Sibrik Miklós út
Eladó téglalakás

Budapest, X. kerület

105 M Ft
2 szoba
108 m²
XI. kerület, Albertfalva, Papp Elemér utca 6
Eladó téglalakás

Budapest, XI. kerület

234 M Ft
3 szoba
78 m²
XII. kerület, Svábhegy, Mátyás király út 54/B
Eladó családi ház

Budapest, XII. kerület

549 M Ft
9 + 2 szoba
650 m²

Falusi CSOK ingatlanok

Pacsa
Eladó családi ház

Pacsa

45.9 M Ft
2 szoba
200 m²
Magyarszék
Eladó családi ház

Magyarszék

48.5 M Ft
3 + 1 szoba
86 m²
Tótszentmárton
Eladó családi ház

Tótszentmárton

120 M Ft
2 szoba
234 m²
Háromfa, Kossuth
Eladó családi ház

Háromfa

22.4 M Ft
1247 m²
139 m²
Törtel
Eladó családi ház

Törtel

25.9 M Ft
2 szoba
59 m²
Kóspallag
Eladó családi ház

Kóspallag

65 M Ft
5 szoba
145 m²
Rábapaty
Eladó családi ház

Rábapaty

99.99 M Ft
5 szoba
132 m²
Szarvaskend
Eladó családi ház

Szarvaskend

26.9 M Ft
2 szoba
83 m²