City Pearl

Eladó téglalakás
Budapest, VIII. kerület, 1. emelet

+ 17 kép 1/20
79 990 000 Ft79.99 M Ft 1 230 615 Ft/m2
2 szoba
65 m²
1. emelet
építés éve:1935

Részletes adatok

Állapot: Felújított
Fűtés: Gázkonvektor
Emelet: 1. emelet
Extrák: Lift
Energetikai besorolás: Nem adta meg a hirdető

Az OTP Bank lakáshitel ajánlataFizetett hirdetés

+36 30 748
Knopf Dóra
referens

Érdekel az OTP Bank kedvezményes lakáshitel ajánlata? *

* A kérdésre „Igen” válasz bejelölése esetén, az „Üzenet küldése” gombra kattintva kijelentem, hogy az OTP Bank Nyrt. Adatkezelési tájékoztatójának tartalmát megismertem és tudomásul vettem.

Eladó téglalakás leírása

***Az Otthon Start Program 3%-os fix kamatozású hitel feltételeinek megfelelő lakás!***
*** Fiatal párok, egyetemisták figyelem!!! ***

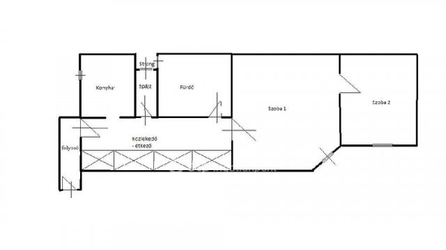
Eladó Budapest VIII. kerület, Nagykörúton belül, a Palotanegyedben, egy 65 nm alapterületű, 2 szobás, I. emeleti, szépen felújított, belső udvarra néző, belvárosi, társasházi lakás. A lakáshoz tartozik egy 6 nm-es zárható folyórész, ami tökéletesen használható erkélyként is.

Az ingatlan egy rendezett, liftes, polgári társasházban található. A társasház csendes, biztonságos, szépen karbantartott. A lakóközösség fiatalos és barátságos, emiatt az emberek szeretnek ott élni.

A lakás 2 éve teljeskörű felújításon esett át, aminek köszönhetően a teljes villany-, és vízvezeték csere megtörtént. A lakás nagy ablakainak köszönhetően szép, világos, napfényes. A szobák tágas belső terekkel rendelkeznek, az otthon melegét gázkonvektor biztosítja, a meleg vizet villanybojler állítja elő. A nappaliba légkondicionáló lett felszerelve. A fotókon látható teljes berendezés a vételár részét képezi.

A lakás kiváló adottságokkal rendelkezik, és tökéletes választás lehet fiatalok számára is első otthonnak, illetve főiskolásoknak/egyetemistáknak egyaránt.

A közös költség 19.500,- Ft. A közüzemi számlák egyedi mérőórák alapján kerülnek elszámolásra.

A lakásban minden kézre áll, az új lakó megkapja a kulcsot és már költözhet is, 1/1 tulajdoni hányadú, tehermentes.

A környék rendkívül jó infrastruktúrával rendelkezik: a közelben számos élelmiszerbolt, Corvin Plaza, óvoda, iskola, orvosi rendelő, posta, bank található. Néhány perces sétatávolságon belül több felsőoktatási intézmény is könnyen elérhető (ELTE, SOTE, Pázmány Péter Katolikus Egyetem, SOTE, Óbudai Egyetem). Emiatt befektetőknek is ideális választás lehet, hiszen könnyen, gyorsan kiadható. A Nagykörút 1 perc sétával elérhető.

Kitűnő elhelyezkedésének köszönhetően tömegközlekedéssel (autóbusz, trolibusz, villamos, metró) a város bármely pontja könnyedén elérhető.

Amennyiben hirdetésem felkeltette az érdeklődését, kérdése van, illetve szeretné megtekinteni a lakást, kérem, hívjon, bizalommal!

Referenciaszám: M326253

Hirdetés feltöltve: 2026. 04. 15. Utoljára módosítva: 2026. 04. 15.

2 szobás téglalakások ára Budapesten

Ebből az összehasonlításból megtudhatod, hogyan viszonyul a lakás ára a környékbeli téglalakások átlagos árához. Ez nem azt jelenti, hogy ennyivel olcsóbb vagy drágább, mint amennyit a lakás ér, hanem hogy ennyivel tér el a környékbeli átlagtól.

Ennek a m² ára
VIII. kerület m² ár
Budapest m² ár
1231 e Ft
1427 e Ft 14%
1692 e Ft 27%
Ennek az ára
VIII. kerület átlagár
Budapest átlagár
79.99 M Ft m Ft
86.8 m Ft 8%
88.8 m Ft 10%

Az ingatlan elhelyezkedése

Cím: Budapest, VIII. kerület, 1. emelet

Eladó ingatlanok a környékről

XI. kerület, Kőérberek, Kánai út 31
Eladó téglalakás

Budapest, XI. kerület

179.99 M Ft
4 szoba
88 m²
VIII. kerület
Eladó téglalakás

Budapest, VIII. kerület

111 M Ft
4 szoba
80 m²
VIII. kerület
Eladó téglalakás

Budapest, VIII. kerület

67 M Ft
2 szoba
47 m²
VIII. kerület
Eladó téglalakás

Budapest, VIII. kerület

140.152 M Ft
3 szoba
87 m²
VIII. kerület
Eladó téglalakás

Budapest, VIII. kerület

144 M Ft
4 szoba
101 m²
XI. kerület, Kőérberek, Kánai út 31
Eladó téglalakás

Budapest, XI. kerület

130.99 M Ft
3 szoba
60 m²
XI. kerület, Kőérberek, Kánai út 31
Eladó téglalakás

Budapest, XI. kerület

125.49 M Ft
3 szoba
61 m²
VIII. kerület, Józsefváros, Nagy Fuvaros utca 27
Eladó téglalakás

Budapest, VIII. kerület

129.8 M Ft
4 szoba
172 m²
XI. kerület, Kőérberek, Kánai út 31
Eladó téglalakás

Budapest, XI. kerület

117.49 M Ft
3 szoba
63 m²
VIII. kerület, Józsefváros, Kálvária utca 16
Eladó téglalakás

Budapest, VIII. kerület

79.9 M Ft
2 + 1 szoba
63 m²
VIII. kerület
Eladó téglalakás

Budapest, VIII. kerület

89.9 M Ft
3 szoba
73 m²
VIII. kerület
Eladó téglalakás

Budapest, VIII. kerület

199 M Ft
20 szoba
859 m²
XI. kerület, Kőérberek, Kánai út 31
Eladó téglalakás

Budapest, XI. kerület

125.99 M Ft
3 szoba
63 m²
XI. kerület, Kőérberek, Kánai út 31
Eladó téglalakás

Budapest, XI. kerület

160.99 M Ft
3 szoba
74 m²
XI. kerület, Kőérberek, Kánai út 31
Eladó téglalakás

Budapest, XI. kerület

170.99 M Ft
4 szoba
88 m²
VIII. kerület, Józsefváros, 8. Népszínház u
Eladó téglalakás

Budapest, VIII. kerület

79.8 M Ft
3 + 1 szoba
100 m²
VIII. kerület, Józsefváros, Kálvária utca 16
Eladó téglalakás

Budapest, VIII. kerület

109.9 M Ft
4 szoba
79 m²
XI. kerület, Kőérberek, Kánai út 31
Eladó téglalakás

Budapest, XI. kerület

130.99 M Ft
3 szoba
68 m²
VIII. kerület, Palotanegyed, Békési utca
Eladó téglalakás

Budapest, VIII. kerület

38.8 M Ft
1 szoba
33 m²
VIII. kerület, Józsefváros, Kálvária utca 16
Eladó téglalakás

Budapest, VIII. kerület

67 M Ft
1 + 1 szoba
47 m²
VIII. kerület
Eladó téglalakás

Budapest, VIII. kerület

61.6 M Ft
1 szoba
80 m²
XI. kerület, Kőérberek, Kánai út 31
Eladó téglalakás

Budapest, XI. kerület

254.99 M Ft
5 szoba
118 m²
XI. kerület, Kőérberek, Kánai út 31
Eladó téglalakás

Budapest, XI. kerület

135.49 M Ft
3 szoba
65 m²
XI. kerület, Kőérberek, Kánai út 31
Eladó téglalakás

Budapest, XI. kerület

246.99 M Ft
4 szoba
100 m²

Falusi CSOK ingatlanok

Sződ
Eladó családi ház

Sződ

116.9 M Ft
4 + 1 szoba
102 m²
Levelek
Eladó családi ház

Levelek

73 M Ft
5 szoba
220 m²
Balatonkeresztúr
Eladó családi ház

Balatonkeresztúr

125 M Ft
7 szoba
170 m²
Ádánd
Eladó családi ház

Ádánd

67 M Ft
6 szoba
251 m²
Szigetújfalu
Eladó családi ház

Szigetújfalu

66 M Ft
3 szoba
118 m²
Devecser
Eladó családi ház

Devecser

39.9 M Ft
3 szoba
75 m²
Jobbágyi
Eladó családi ház

Jobbágyi

399 M Ft
6 + 1 szoba
200 m²
Tiszasziget, Sziget u
Eladó téglalakás

Tiszasziget

37.5 M Ft
2 szoba
41 m²