NapForrás 20 - Buda

Eladó téglalakás
Budapest, VIII. kerület, 2. emelet

+ 7 kép 1/10
49 000 000 Ft49 M Ft 1 689 655 Ft/m2
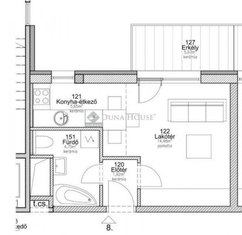
1 szoba
29 m²
2. emelet
építés éve:2025

Részletes adatok

Fűtés: Egyéb
Emelet: 2. emelet
Extrák: Lift
Energetikai besorolás: A

Az OTP Bank lakáshitel ajánlataFizetett hirdetés

+36 30 685
Kovács Tímea
Duna House Kispest

Érdekel az OTP Bank kedvezményes lakáshitel ajánlata? *

* A kérdésre „Igen” válasz bejelölése esetén, az „Üzenet küldése” gombra kattintva kijelentem, hogy az OTP Bank Nyrt. Adatkezelési tájékoztatójának tartalmát megismertem és tudomásul vettem.

Eladó téglalakás leírása

Prémium minőségű, újépítésű lakások a Corvin negyed szélén, a Kálvária térnél!

A belváros szívében, a Corvin negyed szélén, a mára nagyrészt megújult városnegyedben kínálunk magas műszaki színvonalú lakásokat a belvárosi pezsgés szerelmeseinek. A lakásokat egyaránt ajánljuk befektetőknek, fiataloknak és családosoknak is!

Kínálunk otthonokat garzonoktól a 4 szobás lakásokig, így mindenki megtalálhatja a számára kedvező lakásméretet.

A 8. kerület társasházaihoz viszonyítva ez a ház kimagasló műszaki tartalommal és beépített technológiákkal épült meg: magas színvonalú, modern hőszivattyús fűtés- és hűtésrendszer, valamint igényes gépészet, minden, a mai elvárásoknak megfelelően, extra hőszigeteléssel, három rétegű üvegezésű nyílászárókkal, led lámpákkal.

A lakóparkban 40 db, modern stílusú, változatos alaprajzú lakás került megépítésre, amiket letisztult design jellemez.

Központi elhelyezkedése, kiváló közlekedési lehetősége (pár perc sétával két metróvonal, valamint a 4-6 villamos is elérhető, a háztól néhány méterre van a 9-es és 909-es busz, valamint a 83-as troli megállója) és az egyetemek közelsége miatt könnyen, jó áron bérbeadhatók a lakások. A ház közvetlen környezetében óvodák és iskolák, üzletek, éttermek és kávézók is megtalálhatók.
Az épület tervezői a modern, letisztult, de időtálló design mellett-, az átgondolt, élhető alaprajzi kialakításra is nagy hangsúlyt fektettek.

Az épület jelenleg 99%-os készültségen áll, az átadás augusztus vége szeptember elejére várható, már csak az EON jóváhagyására vár a projekt, ami nem a készültségtől függ, hanem az átfutási időtől.

További részletekért keressen bizalommal minket!

PR089730/LK/24225

Referencia szám: PR089730/LK/24225

Hirdetés feltöltve: 2026. 04. 03. Utoljára módosítva: 2026. 05. 10.

1 szobás téglalakások ára Budapesten

Ebből az összehasonlításból megtudhatod, hogyan viszonyul a lakás ára a környékbeli téglalakások átlagos árához. Ez nem azt jelenti, hogy ennyivel olcsóbb vagy drágább, mint amennyit a lakás ér, hanem hogy ennyivel tér el a környékbeli átlagtól.

Ennek a m² ára
VIII. kerület m² ár
Budapest m² ár
1690 e Ft
1573 e Ft -7%
1723 e Ft 2%
Ennek az ára
VIII. kerület átlagár
Budapest átlagár
49 M Ft m Ft
50.5 m Ft 3%
59.3 m Ft 17%

Az ingatlan elhelyezkedése

Cím: Budapest, VIII. kerület, 2. emelet

Eladó ingatlanok a környékről

XI. kerület, Kelenföld, Budafoki út 64/B
Eladó téglalakás

Budapest, XI. kerület

75.915 M Ft
1 szoba
33 m²
VIII. kerület
Eladó téglalakás

Budapest, VIII. kerület

88.504 M Ft
2 szoba
55 m²
XIII. kerület, Vizafogó, Sólyatér utca 15
Eladó téglalakás

Budapest, XIII. kerület

82.32 M Ft
1 szoba
36 m²
VIII. kerület, Józsefváros, 8. Népszínház u
Eladó téglalakás

Budapest, VIII. kerület

79.8 M Ft
3 + 1 szoba
100 m²
VIII. kerület
Eladó téglalakás

Budapest, VIII. kerület

85.418 M Ft
2 szoba
58 m²
VIII. kerület
Eladó téglalakás

Budapest, VIII. kerület

85.418 M Ft
2 szoba
58 m²
VIII. kerület
Eladó téglalakás

Budapest, VIII. kerület

144 M Ft
4 szoba
101 m²
VIII. kerület
Eladó téglalakás

Budapest, VIII. kerület

123.9 M Ft
3 szoba
98 m²
VIII. kerület, Józsefváros, Nagy Fuvaros utca 27
Eladó téglalakás

Budapest, VIII. kerület

129.8 M Ft
4 szoba
172 m²
XIII. kerület, Vizafogó, Sólyatér utca 15
Eladó téglalakás

Budapest, XIII. kerület

73.185 M Ft
1 szoba
33 m²
XI. kerület, Kelenföld, Budafoki út 64/B
Eladó téglalakás

Budapest, XI. kerület

97.545 M Ft
2 szoba
45 m²
XI. kerület, Kelenföld, Budafoki út 64/B
Eladó téglalakás

Budapest, XI. kerület

90.405 M Ft
2 szoba
40 m²
XI. kerület, Kelenföld, Budafoki út 64/B
Eladó téglalakás

Budapest, XI. kerület

94.08 M Ft
2 szoba
45 m²
XI. kerület, Kelenföld, Budafoki út 64/B
Eladó téglalakás

Budapest, XI. kerület

330.645 M Ft
5 szoba
110 m²
XIII. kerület, Vizafogó, Sólyatér utca 15
Eladó téglalakás

Budapest, XIII. kerület

133.56 M Ft
3 szoba
67 m²
VIII. kerület
Eladó téglalakás

Budapest, VIII. kerület

199 M Ft
1 szoba
859 m²
XIII. kerület, Vizafogó, Sólyatér utca 15
Eladó téglalakás

Budapest, XIII. kerület

74.97 M Ft
1 szoba
34 m²
VIII. kerület, Palotanegyed, Békési utca
Eladó téglalakás

Budapest, VIII. kerület

44.7 M Ft
2 szoba
42 m²
VIII. kerület
Eladó téglalakás

Budapest, VIII. kerület

105.272 M Ft
3 szoba
69 m²
VIII. kerület, Józsefváros, Budapest VIII., Corvin sétány
Eladó téglalakás

Budapest, VIII. kerület

74.9 M Ft
1 szoba
34 m²
XI. kerület, Kelenföld, Budafoki út 64/B
Eladó téglalakás

Budapest, XI. kerület

137.13 M Ft
3 szoba
62 m²
VIII. kerület
Eladó téglalakás

Budapest, VIII. kerület

111 M Ft
4 szoba
80 m²
XI. kerület, Kelenföld, Budafoki út 64/B
Eladó téglalakás

Budapest, XI. kerület

236.25 M Ft
4 szoba
88 m²
XI. kerület, Kelenföld, Budafoki út 64/B
Eladó téglalakás

Budapest, XI. kerület

77.7 M Ft
1 szoba
32 m²

Falusi CSOK ingatlanok

Balatonszemes
Eladó téglalakás

Balatonszemes

123.3 M Ft
2 szoba
0 m²
Tápióság
Eladó családi ház

Tápióság

30 M Ft
3 szoba
105 m²
Andornaktálya
Eladó családi ház

Andornaktálya

35.9 M Ft
2 + 2 szoba
840 m²
Tápióság
Eladó családi ház

Tápióság

57 M Ft
4 szoba
94 m²
Kunadacs
Eladó családi ház

Kunadacs

80 M Ft
4 szoba
148 m²
Gyékényes
Eladó családi ház

Gyékényes

16.9 M Ft
3 szoba
83 m²
Halimba
Eladó családi ház

Halimba

59.9 M Ft
6 szoba
182 m²
Vatta
Eladó családi ház

Vatta

28.3 M Ft
2 szoba
56 m²