River Life

Eladó téglalakás
Budapest, VIII. kerület, 3. emelet

+ 17 kép 1/20
108 500 000 Ft108.5 M Ft 1 023 585 Ft/m2
3 + 1 szoba
106 m²
3. emelet
építés éve:1900

Részletes adatok

Állapot: Felújított
Fűtés: Gázkazán
Emelet: 3. emelet
Komfort: Duplakomfortos
Energetikai besorolás: Nem adta meg a hirdető

Az OTP Bank lakáshitel ajánlataFizetett hirdetés

+36 20 371
Antal Enikő
referens

Érdekel az OTP Bank kedvezményes lakáshitel ajánlata? *

* A kérdésre „Igen” válasz bejelölése esetén, az „Üzenet küldése” gombra kattintva kijelentem, hogy az OTP Bank Nyrt. Adatkezelési tájékoztatójának tartalmát megismertem és tudomásul vettem.

Eladó téglalakás leírása

Felújított, világos lakás a Corvin negyedben! 2 lakás egyben (Otthon Start támogatásra is alkalmas!)

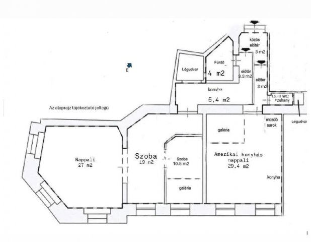
Budapest VIII. kerületében, a Corvin negyedben, a József körúton eladó egy 106 m2-es, 3+1 félszobás, felújított, világos, 3. emeleti lakás. Az ingatlan egyik különlegessége, hogy egyben és két külön lakásként is funkcionálhat.
Jelenleg egy közös bejáratról, de külön megközelíthetően található benne:

- egy 35 m2-es garzonlakás konyhával és fürdőszobával
- valamint egy 71 m2-es, 3 szobás lakás

Ez a kialakítás ideális lehet két generáció együttélésére, lakás-iroda kombinációra, illetve befektetési célra is, hiszen a lakrészek külön-külön vagy együtt is bérbe adhatók.
Műszaki és esztétikai jellemzők:
- A lakás 2024-ig több ütemben felújításon esett át (vezetékcsere, burkolatcsere, fűtéskorszerűsítés, konyhafelújítás, szaniterek, nyílászárók, stb.)
- Legutóbb kondenzációs kazáncsere történt, amely korszerű és hatékony fűtést biztosít
- Rendkívül világos, körbenapozott terek
- Hang- és hőszigetelt műanyag nyílászárók, a József körútra néző ablakokkal
- Két helyiségben galéria (kb. 1,7 m belmagassággal), amely tovább növeli a hasznos teret
- Ízléses, egyedi burkolatok és hangulatos csillárok

Társasház:
- Jó állapotú, rendezett ház
- Jó lakóközösség

Jogi helyzet:
-1/1 tulajdon
-Tehermentes
- Rövid időn belül költözhető
A gépek, berendezések, bútorok ára 10 mill. Ft, mely kötelezően megvásárolandó!
A kiváló elhelyezkedésnek és közlekedésnek köszönhetően az ingatlan befektetésre is kiváló, akár két teljesen szeparált lakásként is kiadható.
Amennyiben az ingatlan felkeltette az érdeklődését, kérem, vegye fel velem a kapcsolatot!
Azonosító szám: M320627

Az energetikai tanúsítvány készítése folyamatban van, amint rendelkezésre áll, úgy azzal a hirdetés frissítésre kerül.

Antal Enikő
+36/20-371-2105

Hirdetés feltöltve: 2026. 03. 10. Utoljára módosítva: 2026. 05. 18.

4 szobás téglalakások ára Budapesten

Ebből az összehasonlításból megtudhatod, hogyan viszonyul a lakás ára a környékbeli téglalakások átlagos árához. Ez nem azt jelenti, hogy ennyivel olcsóbb vagy drágább, mint amennyit a lakás ér, hanem hogy ennyivel tér el a környékbeli átlagtól.

Ennek a m² ára
VIII. kerület m² ár
Budapest m² ár
1024 e Ft
1339 e Ft 24%
1738 e Ft 41%
Ennek az ára
VIII. kerület átlagár
Budapest átlagár
108.5 M Ft m Ft
117.6 m Ft 8%
186.1 m Ft 42%

Az ingatlan elhelyezkedése

Cím: Budapest, VIII. kerület, 3. emelet

Eladó ingatlanok a környékről

VIII. kerület
Eladó téglalakás

Budapest, VIII. kerület

85.418 M Ft
2 szoba
58 m²
VIII. kerület, Józsefváros, Kálvária utca 16
Eladó téglalakás

Budapest, VIII. kerület

79.9 M Ft
2 + 1 szoba
63 m²
VIII. kerület
Eladó téglalakás

Budapest, VIII. kerület

111 M Ft
4 szoba
80 m²
VIII. kerület, Józsefváros, Kálvária utca 16
Eladó téglalakás

Budapest, VIII. kerület

109.9 M Ft
4 szoba
79 m²
VIII. kerület, Józsefváros, Baross utca
Eladó téglalakás

Budapest, VIII. kerület

199 M Ft
859 m²
VIII. kerület
Eladó téglalakás

Budapest, VIII. kerület

105.272 M Ft
3 szoba
69 m²
XI. kerület, Kelenföld, Györök utca
Eladó téglalakás

Budapest, XI. kerület

88 M Ft
3 + 2 szoba
55 m²
VIII. kerület
Eladó téglalakás

Budapest, VIII. kerület

88.504 M Ft
2 szoba
55 m²
XIII. kerület
Eladó téglalakás

Budapest, XIII. kerület

59.6 M Ft
1 szoba
38 m²
VIII. kerület
Eladó téglalakás

Budapest, VIII. kerület

123.9 M Ft
3 szoba
98 m²
VI. kerület
Eladó téglalakás

Budapest, VI. kerület

198 M Ft
3 szoba
79 m²
XIII. kerület, Angyalföld, Jász utca
Eladó téglalakás

Budapest, XIII. kerület

91.5 M Ft
2 szoba
47 m²
VII. kerület, Külső Erzsébetváros, Péterfy Sándor utca
Eladó téglalakás

Budapest, VII. kerület

93 M Ft
3 szoba
102 m²
VI. kerület
Eladó téglalakás

Budapest, VI. kerület

20.9 M Ft
1 szoba
17 m²
VIII. kerület
Eladó téglalakás

Budapest, VIII. kerület

140.152 M Ft
3 szoba
87 m²
IV. kerület, Újpest, Erzsébet utca
Eladó panellakás

Budapest, IV. kerület

64.9 M Ft
2 szoba
53 m²
XXII. kerület
Eladó családi ház

Budapest, XXII. kerület

78.2 M Ft
6 szoba
173 m²
VIII. kerület
Eladó téglalakás

Budapest, VIII. kerület

123.9 M Ft
3 szoba
98 m²
XVI. kerület, Rákosszentmihály, Csömöri út
Eladó téglalakás

Budapest, XVI. kerület

47.9 M Ft
1 + 1 szoba
44 m²
XX. kerület
Eladó családi ház

Budapest, XX. kerület

57.9 M Ft
2 szoba
47 m²
VIII. kerület
Eladó téglalakás

Budapest, VIII. kerület

69.9 M Ft
3 szoba
84 m²
VII. kerület, Külső Erzsébetváros, Péterfy Sándor utca
Eladó téglalakás

Budapest, VII. kerület

64.9 M Ft
2 szoba
46 m²
VII. kerület
Eladó téglalakás

Budapest, VII. kerület

125 M Ft
3 szoba
71 m²
IV. kerület, Újpest, Deák Ferenc utca
Eladó panellakás

Budapest, IV. kerület

74.9 M Ft
3 szoba
59 m²

Falusi CSOK ingatlanok

Vép
Eladó családi ház

Vép

75.9 M Ft
5 szoba
150 m²
Ártánd
Eladó családi ház

Ártánd

63.9 M Ft
4 szoba
0 m²
Sumony
Eladó családi ház

Sumony

19 M Ft
4 szoba
120 m²
Andornaktálya
Eladó családi ház

Andornaktálya

35.9 M Ft
2 + 2 szoba
840 m²
Csátalja, Dózsa György utca
Eladó családi ház

Csátalja

30.5 M Ft
3 szoba
110 m²
Szentkirályszabadja
Eladó ikerház

Szentkirályszabadja

99 M Ft
4 szoba
92 m²
Biharkeresztes
Eladó családi ház

Biharkeresztes

41.5 M Ft
3 szoba
90 m²
Tápiószőlős
Eladó családi ház

Tápiószőlős

39.9 M Ft
4 szoba
120 m²