Astora Olive Club House

Eladó téglalakás
Budapest, VIII. kerület, Józsefváros, 6. emelet

+ 5 kép 1/8
67 897 000 Ft67.897 M Ft 1 697 425 Ft/m2
1 szoba
40 m2
6. emelet
építés éve:2025

Részletes adatok

Fűtés: Egyéb
Extrák: Lift
Energetikai besorolás: Nem adta meg a hirdető

Az OTP Bank lakáshitel ajánlataFizetett hirdetés

+36 1 690
Csikós Ilona
Csikós Ilona

Érdekel az OTP Bank kedvezményes lakáshitel ajánlata? *

* A kérdésre „Igen” válasz bejelölése esetén, az „Üzenet küldése” gombra kattintva kijelentem, hogy az OTP Bank Nyrt. Adatkezelési tájékoztatójának tartalmát megismertem és tudomásul vettem.

Eladó téglalakás leírása

AZONNAL KÖLTÖZHETŐ, VADONATÚJ LAKÁSOK – BÚTOROZOTTAN!

Józsefváros megújuló, egyre népszerűbb részén kínálok eladásra frissen elkészült, modern új építésű lakásokat. A projekt különlegessége, hogy valamennyi ingatlan teljesen berendezett, stílusos bútorokkal felszerelt, így tényleg csak a bőröndöt kell hozni.

A lakások többsége garzon vagy nappali + 1 hálós kialakítású, világos, jól szervezett terekkel, amelyek az otthonosság mellett a praktikumot is hozzák. A korszerű épületgépészet, a kiváló hőszigetelés és a minőségi nyílászárók alacsony fenntartási költséget biztosítanak.

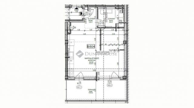
1 Előszoba 2.52 m2
2 Fürdő WC-vel 5.06 m2
3 Nappali+amerikai konyha 27.34 m2
4 Nyitott terasz 11.75 m2

A lokáció erős:
– pár perc séta az M4-es metró, a 46-os villamos és több busz
– közelben egyetemek, üzletek, éttermek, gyógyszertárak
– kiváló környéki szolgáltatások

Ideális választás diákoknak, fiatal pároknak, pályakezdőknek és befektetőknek is – hiszen az elhelyezkedés és a minőség miatt a lakások könnyen bérbe adhatók.

Ha egy belváros közeli, modern, új építésű és azonnal költözhető otthont keresel, itt minden adott.

Érdeklődj bátran!!
***
Jó időzítéssel MILLIÓKAT NYERHET az ingatlanvásárláson! SEGÍTÜNK.
CSOK+? Babaváró támogatás? Ne bízza a véletlenre, LÉPJEN MOST!

Hitelre van szüksége? Független pénzügyi ügyintézőnk a legkedvezőbb lehetőséget kínálja Önnek.
Ügyvédet sem kell keresnie. Ingatlan ügyekben jártas, profi ügyvédünk képviseli az adásvétel során.
Energetikai tanúsítványok készítését is vállaljuk. Rendelje meg nálunk!

Referencia szám: PR068053/LK/26289

Hirdetés feltöltve: 2025. 12. 03. Utoljára módosítva: 2025. 12. 03.

1 szobás téglalakások ára Budapesten

Ebből az összehasonlításból megtudhatod, hogyan viszonyul a lakás ára a környékbeli téglalakások átlagos árához. Ez nem azt jelenti, hogy ennyivel olcsóbb vagy drágább, mint amennyit a lakás ér, hanem hogy ennyivel tér el a környékbeli átlagtól.

Ennek a m² ára
Józsefváros m² ár
VIII. kerület m² ár
Budapest m² ár
1697 e Ft
1495 e Ft -14%
1526 e Ft -11%
1708 e Ft 1%
Ennek az ára
Józsefváros átlagár
VIII. kerület átlagár
Budapest átlagár
67.897 M Ft m Ft
48.1 m Ft -41%
51.3 m Ft -32%
59.3 m Ft -14%

Az ingatlan elhelyezkedése

Cím: Budapest, VIII. kerület, Józsefváros, 6. emelet

Eladó ingatlanok a környékről

Eladó téglalakás
Eladó téglalakás

VIII. kerület, Futó utca

79.12 M Ft
1 szoba
39 m2
Eladó téglalakás
Eladó téglalakás

I. kerület, Krisztinaváros, Kosciuszkó Tádé utca

48 M Ft
1 szoba
30 m2
Eladó téglalakás
Eladó téglalakás

VIII. kerület, Józsefváros, Kálvária utca 16

109.9 M Ft
4 szoba
79 m2
Eladó családi ház
Eladó családi ház

XXII. kerület, Budafok, Baross utca

199 M Ft
6 + 1 szoba
200 m2
Eladó téglalakás
Eladó téglalakás

VIII. kerület

55.9 M Ft
2 szoba
58 m2
Eladó téglalakás
Eladó téglalakás

VIII. kerület, Józsefváros, Baross utca

199 M Ft
859 m2
Eladó üzlethelyiség
Eladó üzlethelyiség

II. kerület, Országút, Margit körút

6.999 M Ft
5 m2
Eladó téglalakás
Eladó téglalakás

VIII. kerület, Józsefváros, Kálvária utca 16

85.5 M Ft
2 + 1 szoba
63 m2
Eladó panellakás
Eladó panellakás

XI. kerület

78 M Ft
2 szoba
48 m2
Eladó téglalakás
Eladó téglalakás

VIII. kerület, Józsefváros, Kálvária utca 16

65 M Ft
1 + 1 szoba
44 m2
Eladó téglalakás
Eladó téglalakás

VIII. kerület, Futó utca

89.051 M Ft
2 szoba
49 m2
Eladó téglalakás
Eladó téglalakás

I. kerület, Krisztinaváros, Feszty Árpád utca

78.99 M Ft
1 szoba
28 m2
Eladó téglalakás
Eladó téglalakás

VIII. kerület, Futó utca

104.563 M Ft
2 szoba
49 m2
Eladó téglalakás
Eladó téglalakás

VIII. kerület, Józsefváros, 8. Népszínház u

79.8 M Ft
3 + 1 szoba
100 m2
Eladó téglalakás
Eladó téglalakás

IV. kerület, Újpest, Kassai utca

84.9 M Ft
2 + 1 szoba
71 m2
Eladó téglalakás
Eladó téglalakás

XI. kerület, Gellérthegy, Gyula utca

150 M Ft
2 szoba
56 m2
Eladó téglalakás
Eladó téglalakás

VIII. kerület, Futó utca

85.521 M Ft
1 szoba
39 m2
Eladó téglalakás
Eladó téglalakás

VIII. kerület, Rákóczi út

90 M Ft
4 szoba
100 m2
Eladó téglalakás
Eladó téglalakás

VIII. kerület, Józsefváros, Kálvária utca 16

79.9 M Ft
1 + 3 szoba
75 m2
Eladó téglalakás
Eladó téglalakás

XI. kerület, Gellérthegy, Gombócz Zoltán utca

142 M Ft
2 + 1 szoba
71 m2
Eladó téglalakás
Eladó téglalakás

III. kerület, Óbuda, Szomolnok utca

89.9 M Ft
2 + 2 szoba
96 m2
Eladó téglalakás
Eladó téglalakás

VIII. kerület, Józsefváros, Losonci negyed, Práter utca

82 M Ft
3 szoba
113 m2
Eladó téglalakás
Eladó téglalakás

VII. kerület, Belső Erzsébetváros, Erzsébet körút

160 M Ft
3 szoba
88 m2
Eladó téglalakás
Eladó téglalakás

VI. kerület, Külső Terézváros, Szív utca

119.5 M Ft
3 szoba
94 m2

Falusi CSOK ingatlanok

Eladó családi ház
Eladó családi ház

Tiszaroff

12.5 M Ft
2 szoba
63 m2
Eladó téglalakás
Eladó téglalakás

Balatonszemes

123.3 M Ft
2 szoba
70 m2
Eladó családi ház
Eladó családi ház

Pétfürdő

44.9 M Ft
2 szoba
75 m2
Eladó családi ház
Eladó családi ház

Tiszaroff

13.9 M Ft
2 szoba
81 m2
Eladó családi ház
Eladó családi ház

Őriszentpéter

49.9 M Ft
5 + 1 szoba
131 m2
Eladó családi ház
Eladó családi ház

Tiszaroff

12.9 M Ft
3 szoba
87 m2
Eladó családi ház
Eladó családi ház

Örkény

36.5 M Ft
2 szoba
56 m2
Eladó családi ház
Eladó családi ház

Rédics

49.9 M Ft
3 szoba
107 m2