BAM Living

Eladó téglalakás
Budapest, VIII. kerület, Józsefváros, 2. emelet

+ 7 kép 1/10
73 500 000 Ft73.5 M Ft 1 934 211 Ft/m2
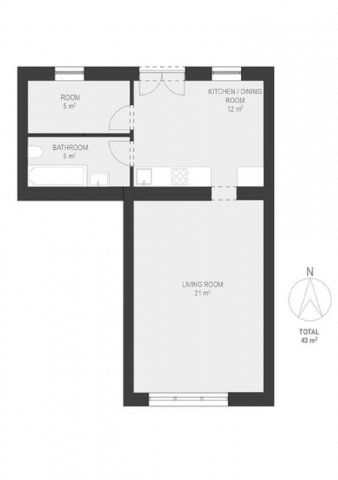
1 + 1 szoba
38 m2
2. emelet
építés éve:1920

Részletes adatok

Állapot: Felújított
Fűtés: Gázkonvektor
Extrák: Lift
Energetikai besorolás: Nem adta meg a hirdető

Az OTP Bank lakáshitel ajánlataFizetett hirdetés

+36 20 371
Antal Enikő
referens

Érdekel az OTP Bank kedvezményes lakáshitel ajánlata? *

* A kérdésre „Igen” válasz bejelölése esetén, az „Üzenet küldése” gombra kattintva kijelentem, hogy az OTP Bank Nyrt. Adatkezelési tájékoztatójának tartalmát megismertem és tudomásul vettem.

Eladó téglalakás leírása

Felújított, kiváló állapotú 1+1 szobás lakás eladó a Blaha Lujza tér közelében, egy jó állapotú, zárt lépcsőházas téglaépület 2. emeletén.

A hivatalos alapterület 38 nm (valós alapterület: 43 nm), a belmagasság 3,6 méter, így a tér nagyon jól kihasználható. A nappali déli fekvésű, ezért a lakás egész nap napfényes, utcai kilátással rendelkezik.

Az ingatlan 2024-ben teljes felújításon esett át, kiváló állapotú, azonnal költözhető. Összkomfortos, a fűtés gázkonvektorral megoldott, valamint hűtő-fűtő klímával is felszerelt. Beépített konyhabútor, redőnyök és teljes berendezés is a lakás része, így akár azonnal lakható vagy kiadható.

Az épület 1920-ban épült, kívül-belül jó állapotú, négyemeletes, lifttel (hívó) ellátott. A közös költség 17 000 Ft/hó. Parkolás az utcán, fizetős övezetben lehetséges.

Főbb jellemzők:
1 + 1 szoba
38 nm (43 nm valós)
2. emelet
Tégla szerkezet
Teljes felújítás: 2024
Összkomfort
Gázkonvektor + klíma
Liftes épület
Bútorozott, berendezett
Redőny, beépített konyhabútor
Napfényes, déli tájolás
Utcai kilátás

A Blaha Lujza tér, metró, villamosok, boltok és éttermek néhány perc sétával elérhetőek, ezért kiváló választás lakhatásra és befektetésnek egyaránt.

Érdeklődés esetén várom megkeresésedet!
Antal Enikő
+36/20-371-2105

Hirdetés feltöltve: 2025. 12. 03.

2 szobás téglalakások ára Budapesten

Ebből az összehasonlításból megtudhatod, hogyan viszonyul a lakás ára a környékbeli téglalakások átlagos árához. Ez nem azt jelenti, hogy ennyivel olcsóbb vagy drágább, mint amennyit a lakás ér, hanem hogy ennyivel tér el a környékbeli átlagtól.

Ennek a m² ára
Józsefváros m² ár
VIII. kerület m² ár
Budapest m² ár
1934 e Ft
1338 e Ft -45%
1454 e Ft -33%
1684 e Ft -15%
Ennek az ára
Józsefváros átlagár
VIII. kerület átlagár
Budapest átlagár
73.5 M Ft m Ft
80.4 m Ft 9%
75.2 m Ft 2%
91 m Ft 19%

Az ingatlan elhelyezkedése

Cím: Budapest, VIII. kerület, Józsefváros, 2. emelet

Eladó ingatlanok a környékről

Eladó téglalakás
Eladó téglalakás

VIII. kerület, Józsefváros

114.9 M Ft
3 szoba
62 m2
Eladó téglalakás
Eladó téglalakás

VIII. kerület

80 M Ft
2 + 1 szoba
79 m2
Eladó téglalakás
Eladó téglalakás

IX. kerület

53.9 M Ft
1 szoba
31 m2
Eladó téglalakás
Eladó téglalakás

VIII. kerület, Józsefváros, Kálvária utca 16

79.9 M Ft
1 + 3 szoba
75 m2
Eladó téglalakás
Eladó téglalakás

VIII. kerület

44 M Ft
1 szoba
35 m2
Eladó téglalakás
Eladó téglalakás

VIII. kerület, Józsefváros, Baross utca

95 M Ft
3 + 1 szoba
100 m2
Eladó téglalakás
Eladó téglalakás

VIII. kerület, Futó utca

89.051 M Ft
2 szoba
49 m2
Eladó téglalakás
Eladó téglalakás

V. kerület

299 M Ft
3 szoba
100 m2
Eladó téglalakás
Eladó téglalakás

VIII. kerület, Futó utca

104.667 M Ft
2 szoba
43 m2
Eladó téglalakás
Eladó téglalakás

VIII. kerület

58.9 M Ft
1 szoba
38 m2
Eladó téglalakás
Eladó téglalakás

VIII. kerület, Józsefváros, Baross utca

199 M Ft
859 m2
Eladó téglalakás
Eladó téglalakás

VIII. kerület, Józsefváros, Kálvária utca 16

85.5 M Ft
2 + 1 szoba
63 m2
Eladó téglalakás
Eladó téglalakás

VIII. kerület

85.228 M Ft
1 + 1 szoba
49 m2
Eladó téglalakás
Eladó téglalakás

VIII. kerület, Rákóczi út

90 M Ft
4 szoba
100 m2
Eladó téglalakás
Eladó téglalakás

IX. kerület

112 M Ft
2 szoba
60 m2
Eladó panellakás
Eladó panellakás

XX. kerület

48 M Ft
2 szoba
45 m2
Eladó téglalakás
Eladó téglalakás

VIII. kerület, Józsefváros, Kálvária utca 16

109.9 M Ft
4 szoba
79 m2
Eladó téglalakás
Eladó téglalakás

VIII. kerület, Palotanegyed, Békési utca

44.7 M Ft
2 szoba
42 m2
Eladó téglalakás
Eladó téglalakás

VIII. kerület

55.9 M Ft
2 szoba
58 m2
Eladó téglalakás
Eladó téglalakás

VIII. kerület, Futó utca

101.107 M Ft
2 szoba
49 m2
Eladó téglalakás
Eladó téglalakás

IX. kerület

57.3 M Ft
2 szoba
29 m2
Eladó téglalakás
Eladó téglalakás

VII. kerület

48 M Ft
2 szoba
32 m2
Eladó téglalakás
Eladó téglalakás

XX. kerület

58.5 M Ft
2 szoba
57 m2

Falusi CSOK ingatlanok

Eladó családi ház
Eladó családi ház

Tápiógyörgye

33 M Ft
3 + 2 szoba
140 m2
Eladó családi ház
Eladó családi ház

Seregélyes

75 M Ft
6 szoba
160 m2
Eladó családi ház
Eladó családi ház

Szederkény

107.9 M Ft
6 szoba
224 m2
Eladó családi ház
Eladó családi ház

Mezőfalva

39 M Ft
3 szoba
77 m2
Eladó családi ház
Eladó családi ház

Söpte

94.9 M Ft
4 szoba
94 m2
Eladó családi ház
Eladó családi ház

Fertőd

189.9 M Ft
4 szoba
175 m2
Eladó családi ház
Eladó családi ház

Galgahévíz

39.9 M Ft
3 + 1 szoba
108 m2
Eladó családi ház
Eladó családi ház

Balatonfenyves

430 M Ft
4 szoba
274 m2