BAM Living

Eladó téglalakás
Budapest, VIII. kerület, Palotanegyed

+ 17 kép 1/20
175 000 000 Ft175 M Ft 1 446 281 Ft/m2
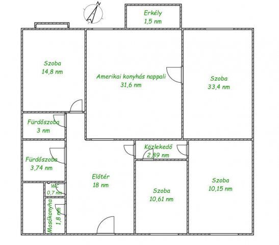
5 szoba
121 m2
építés éve:1910

Részletes adatok

Állapot: Felújított
Fűtés: Gázkazán
Extrák: Lift
Energetikai besorolás: Nem adta meg a hirdető

Az OTP Bank lakáshitel ajánlataFizetett hirdetés

+36 20 371
Antal Enikő
referens

Érdekel az OTP Bank kedvezményes lakáshitel ajánlata? *

* A kérdésre „Igen” válasz bejelölése esetén, az „Üzenet küldése” gombra kattintva kijelentem, hogy az OTP Bank Nyrt. Adatkezelési tájékoztatójának tartalmát megismertem és tudomásul vettem.

Eladó téglalakás leírása

Tágas, exkluzív lakás eladó Palotanegyedben!

Eladó egy 121 nm-es, teljeskörűen és igényesen felújított lakás egy szép, liftes társasház harmadik emeletén.
A minőségi anyagokkal végzett felújítás során a praktikum és az elegancia tökéletes egyensúlyára törekedtek, így egy tágas, világos, jól átgondolt elrendezésű otthon született.

A nappali és a konyha egy térben kapott helyet, így kiváló közösségi élményt nyújt, míg a négy külön nyíló hálószoba biztosítja a család minden tagjának a nyugalmat. A korszerű cirkófűtés és a klímaberendezés gondoskodik az otthon kényelméről télen-nyáron.

Főbb jellemzők:
- 121 nm-es, tágas lakótér
- Amerikai konyhás nappali + 4 hálószoba
- Cirkó fűtés és klíma
- Teljes körű, minőségi felújítás
- Szép, rendezett, liftes társasház
- Kiváló közlekedés, belvárosi elhelyezkedés.

Ha exkluzív, mégis otthonos lakást keres Budapesten, ez a lehetőség Önre vár!
Ha további kérdése van, vagy szeretné megtekinteni az ingatlant, kérem, keressen a megadott elérhetőségeken!
Antal Enikő
+36/20-371-2105

Hirdetés feltöltve: 2025. 11. 27. Utoljára módosítva: 2026. 01. 13.

5 szobás téglalakások ára Budapesten

Ebből az összehasonlításból megtudhatod, hogyan viszonyul a lakás ára a környékbeli téglalakások átlagos árához. Ez nem azt jelenti, hogy ennyivel olcsóbb vagy drágább, mint amennyit a lakás ér, hanem hogy ennyivel tér el a környékbeli átlagtól.

Ennek a m² ára
Palotanegyed m² ár
VIII. kerület m² ár
Budapest m² ár
1446 e Ft
1377 e Ft -5%
1171 e Ft -23%
1632 e Ft 11%
Ennek az ára
Palotanegyed átlagár
VIII. kerület átlagár
Budapest átlagár
175 M Ft m Ft
185.4 m Ft 6%
141.7 m Ft -23%
247.3 m Ft 29%

Az ingatlan elhelyezkedése

Cím: Budapest, VIII. kerület, Palotanegyed

Eladó ingatlanok a környékről

Eladó panellakás
Eladó panellakás

XI. kerület, Kelenföld, Etele út

89 M Ft
2 + 1 szoba
51 m2
Eladó téglalakás
Eladó téglalakás

VIII. kerület, Palotanegyed, Békési utca

44.7 M Ft
2 szoba
42 m2
Eladó téglalakás
Eladó téglalakás

VIII. kerület, Futó utca

101.107 M Ft
2 szoba
49 m2
Eladó téglalakás
Eladó téglalakás

VII. kerület, Belső Erzsébetváros, Erzsébet körút

160 M Ft
3 szoba
88 m2
Eladó téglalakás
Eladó téglalakás

VIII. kerület, Palotanegyed, Rákóczi út

185 M Ft
5 szoba
121 m2
Eladó téglalakás
Eladó téglalakás

IV. kerület

87.5 M Ft
3 szoba
60 m2
Eladó téglalakás
Eladó téglalakás

VII. kerület, Belső Erzsébetváros, Rózsa utca

170 M Ft
5 szoba
124 m2
Eladó téglalakás
Eladó téglalakás

VIII. kerület, Józsefváros

199 M Ft
1 szoba
859 m2
Eladó téglalakás
Eladó téglalakás

VI. kerület, Külső Terézváros, Szív utca

124.9 M Ft
3 szoba
94 m2
Eladó téglalakás
Eladó téglalakás

VIII. kerület, Futó utca

104.667 M Ft
2 szoba
43 m2
Eladó családi ház
Eladó családi ház

II. kerület

224.8 M Ft
5 szoba
240 m2
Eladó téglalakás
Eladó téglalakás

XI. kerület, Nádorkert, Szerémi út

90 M Ft
2 szoba
52 m2
Eladó téglalakás
Eladó téglalakás

I. kerület, Krisztinaváros, Széna tér

189 M Ft
4 szoba
90 m2
Eladó téglalakás
Eladó téglalakás

VIII. kerület, Józsefváros, 8. Népszínház u

79.8 M Ft
3 + 1 szoba
100 m2
Eladó téglalakás
Eladó téglalakás

VIII. kerület, Józsefváros

199 M Ft
18 szoba
859 m2
Eladó téglalakás
Eladó téglalakás

VIII. kerület, Józsefváros, Baross utca

95 M Ft
3 + 1 szoba
100 m2
Eladó téglalakás
Eladó téglalakás

XI. kerület, Gellérthegy, Gyula utca

130 M Ft
2 szoba
56 m2
Eladó téglalakás
Eladó téglalakás

V. kerület, Belváros, Petőfi Sándor utca

134 M Ft
2 szoba
59 m2
Eladó téglalakás
Eladó téglalakás

XVIII. kerület

85.5 M Ft
3 szoba
67 m2
Eladó téglalakás
Eladó téglalakás

VIII. kerület, Józsefváros, Kálvária utca 16

67 M Ft
1 + 1 szoba
47 m2
Eladó téglalakás
Eladó téglalakás

VIII. kerület, Futó utca

104.563 M Ft
2 szoba
49 m2
Eladó téglalakás
Eladó téglalakás

IV. kerület, Újpest, Kassai utca

84.9 M Ft
2 + 1 szoba
71 m2
Eladó téglalakás
Eladó téglalakás

VIII. kerület, Józsefváros, Kálvária utca 16

109.9 M Ft
4 szoba
79 m2
Eladó téglalakás
Eladó téglalakás

VIII. kerület, Rákóczi út

90 M Ft
4 szoba
100 m2

Falusi CSOK ingatlanok

Eladó családi ház
Eladó családi ház

Darnózseli

79.9 M Ft
4 szoba
104 m2
Eladó családi ház
Eladó családi ház

Balatonkeresztúr, Berek utca

149 M Ft
4 szoba
185 m2
Eladó családi ház
Eladó családi ház

Kesztölc

129.9 M Ft
8 szoba
210 m2
Eladó családi ház
Eladó családi ház

Hercegszántó

29.9 M Ft
4 szoba
130 m2
Eladó családi ház
Eladó családi ház

Szomolya

57.85 M Ft
4 szoba
117 m2
Eladó családi ház
Eladó családi ház

Törtel

59.9 M Ft
3 szoba
66 m2
Eladó családi ház
Eladó családi ház

Nagyberki

39.9 M Ft
5 szoba
170 m2
Eladó családi ház
Eladó családi ház

Verseg

54 M Ft
2 szoba
92 m2