Aerogate Homes

Eladó téglalakás
Budapest, VIII. kerület

+ 17 kép 1/20
63 000 000 Ft63 M Ft 1 575 000 Ft/m2
3 szoba
40 m²
építés éve:1871

Részletes adatok

Állapot: Újszerű
Fűtés: Egyéb
Energetikai besorolás: Nem adta meg a hirdető

Az OTP Bank lakáshitel ajánlataFizetett hirdetés

+36 70 389
Varga István Ferenc
referens

Érdekel az OTP Bank kedvezményes lakáshitel ajánlata? *

* A kérdésre „Igen” válasz bejelölése esetén, az „Üzenet küldése” gombra kattintva kijelentem, hogy az OTP Bank Nyrt. Adatkezelési tájékoztatójának tartalmát megismertem és tudomásul vettem.

Eladó téglalakás leírása

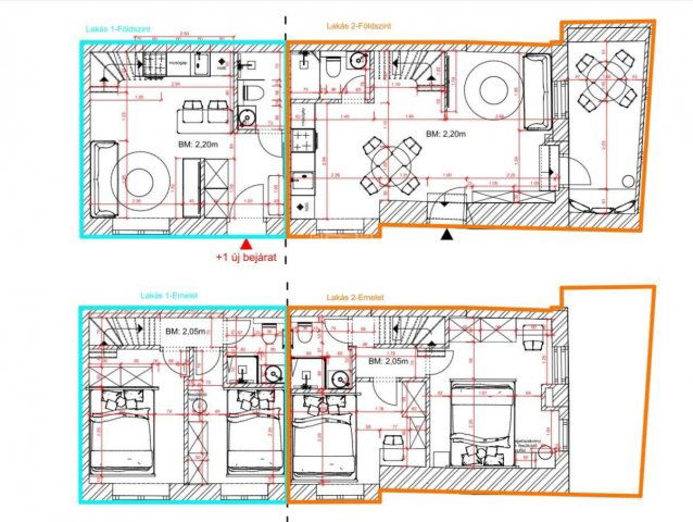
Eladó két külön bejáratú, prémium minőségű, belső kétszintes lakás a Horváth Mihály tér mellett!

Budapest VIII. kerületében, a Német utcában, a Horváth Mihály tér közvetlen közelében, egy hangulatos, szép állapotú társasház földszintjén eladó két külön bejáratú, ügyvédi használati megosztással elválasztott, teljeskörűen felújított, bútorozott és gépesített lakás

Mindkét lakás belső kétszintes, duplakomfortos, és kiváló elosztású:

A földszinten: nappali + konyha + fürdő + WC

Az emeleten: két, egymástól külön zárható hálószoba, valamint további fürdő és WC

Az alsó szinten 220 cm, a felsőn 205 cm a belmagasság.
A lakások külön villany- és vízórával rendelkeznek, fűtésüket BVF elektromos padlófűtés, hűtésüket pedig inverteres klímák (lent és fent) biztosítják.

A vételár tartalmazza a teljes bútorzatot és gépesítést, így az ingatlanok azonnal költözhetők vagy kiadhatók!

"A " LAKÁS

Hasznos alapterület: 40 m²

Alsó szint: 20,3 m²

Felső szint: 19,7 m²

Elrendezés:

Földszint: nappali + konyha + fürdő + WC

Emelet: 2 külön hálószoba + további fürdő és WC

Teljesen felújított, bútorozott, gépesített

Külön mérőórák, BVF padlófűtés, inverteres klíma

Ár: 63.000.000 Ft

"B" LAKÁS

Hasznos alapterület: 51 m²

Alsó szint: 26 m²

Felső szint: 25 m²

Különlegesség: egy 11 m²-es beépített télikert, amely a zöld udvarra néz – igazi ritkaság a belvárosban!
(A télikert nem része az alapterületnek, ezzel együtt kb. 62 m².)

Elrendezés:

Földszint: nappali + konyha + fürdő + WC

Emelet: 2 külön hálószoba + további fürdő és WC

Teljesen bútorozott, gépesített, prémium kivitel

Ár: 73.000.000 Ft

Miért különleges ez az ajánlat?

Két külön bejáratú, külön mérőórás lakás – ideális befektetésre vagy kétgenerációs otthonnak

Központi elhelyezkedés, mégis csendes, zöld udvarra néző környezet

Modern, energiatakarékos megoldások (elektromos padlófűtés, inverteres klímák)

Teljesen bútorozott és gépesített – csak a bőröndöt kell hozni

Kiváló közlekedés: pár perc sétára a Blaha Lujza tér, Rákóczi tér, 4-6-os villamos, M2 és M4 metró ...TOVÁBBI, TÖBBEZRES INGATLAN KÍNÁLAT: www.gdn-ingatlan.hu - GDN azonosító: 389622

Hirdetés feltöltve: 2025. 11. 14. Utoljára módosítva: 2026. 01. 13.

3 szobás téglalakások ára Budapesten

Ebből az összehasonlításból megtudhatod, hogyan viszonyul a lakás ára a környékbeli téglalakások átlagos árához. Ez nem azt jelenti, hogy ennyivel olcsóbb vagy drágább, mint amennyit a lakás ér, hanem hogy ennyivel tér el a környékbeli átlagtól.

Ennek a m² ára
VIII. kerület m² ár
Budapest m² ár
1575 e Ft
1397 e Ft -13%
1700 e Ft 7%
Ennek az ára
VIII. kerület átlagár
Budapest átlagár
63 M Ft m Ft
99.7 m Ft 37%
131.5 m Ft 52%

Az ingatlan elhelyezkedése

Cím: Budapest, VIII. kerület

Eladó ingatlanok a környékről

VII. kerület, Belső Erzsébetváros, Erzsébet körút
Eladó téglalakás

Budapest, VII. kerület

104.9 M Ft
2 szoba
74 m²
IV. kerület, Megyer, Káposztásmegyeri út
Eladó téglalakás

Budapest, IV. kerület

63.9 M Ft
2 szoba
56 m²
VIII. kerület, Józsefváros, Kálvária utca 16
Eladó téglalakás

Budapest, VIII. kerület

67 M Ft
1 + 1 szoba
47 m²
VIII. kerület
Eladó téglalakás

Budapest, VIII. kerület

123.9 M Ft
3 szoba
98 m²
VI. kerület, Diplomatanegyed, Rippl-Rónai utca
Eladó téglalakás

Budapest, VI. kerület

74.9 M Ft
2 szoba
62 m²
VIII. kerület, Józsefváros, József körút
Eladó téglalakás

Budapest, VIII. kerület

104.9 M Ft
2 szoba
96 m²
VII. kerület, Király utca 30
Eladó téglalakás

Budapest, VII. kerület

114.9 M Ft
2 szoba
91 m²
VIII. kerület, Józsefváros, Budapest VIII., Corvin sétány
Eladó téglalakás

Budapest, VIII. kerület

74.9 M Ft
1 szoba
34 m²
VII. kerület, Külső Erzsébetváros, Wesselényi utca
Eladó téglalakás

Budapest, VII. kerület

119.9 M Ft
2 + 1 szoba
93 m²
VIII. kerület, Józsefváros, Baross utca
Eladó téglalakás

Budapest, VIII. kerület

199 M Ft
859 m²
VII. kerület
Eladó téglalakás

Budapest, VII. kerület

198 M Ft
5 szoba
136 m²
XIV. kerület, Törökőr, Hungária körút
Eladó téglalakás

Budapest, XIV. kerület

67.9 M Ft
2 szoba
72 m²
VIII. kerület, Józsefváros, Kálvária utca 16
Eladó téglalakás

Budapest, VIII. kerület

109.9 M Ft
4 szoba
79 m²
VIII. kerület
Eladó téglalakás

Budapest, VIII. kerület

61.6 M Ft
1 szoba
80 m²
VIII. kerület, Józsefváros
Eladó téglalakás

Budapest, VIII. kerület

199 M Ft
18 szoba
859 m²
VIII. kerület, Palotanegyed, Békési utca
Eladó téglalakás

Budapest, VIII. kerület

38.8 M Ft
1 szoba
33 m²
XIII. kerület, Angyalföld, Reitter utca
Eladó téglalakás

Budapest, XIII. kerület

77.5 M Ft
1 + 2 szoba
60 m²
XVII. kerület
Eladó ikerház

Budapest, XVII. kerület

155.9 M Ft
5 szoba
220 m²
VIII. kerület, Rákóczi út
Eladó téglalakás

Budapest, VIII. kerület

90 M Ft
4 szoba
100 m²
VIII. kerület, Józsefváros, Baross utca
Eladó téglalakás

Budapest, VIII. kerület

95 M Ft
3 + 1 szoba
100 m²
VIII. kerület, Józsefváros, Teleki tér
Eladó téglalakás

Budapest, VIII. kerület

47.9 M Ft
1 szoba
30 m²
XVIII. kerület
Eladó téglalakás

Budapest, XVIII. kerület

74 M Ft
2 szoba
57 m²
IX. kerület, Ferencváros, Ferenc körút
Eladó téglalakás

Budapest, IX. kerület

104.9 M Ft
4 szoba
106 m²
VIII. kerület
Eladó téglalakás

Budapest, VIII. kerület

67 M Ft
2 szoba
47 m²

Falusi CSOK ingatlanok

Bugac
Eladó családi ház

Bugac

55 M Ft
3 szoba
90 m²
Kaposgyarmat
Eladó családi ház

Kaposgyarmat

695 M Ft
6 szoba
610 m²
Sumony
Eladó családi ház

Sumony

19 M Ft
4 szoba
120 m²
Lovasberény
Eladó családi ház

Lovasberény

34.9 M Ft
3 szoba
87 m²
Somogyszil
Eladó családi ház

Somogyszil

27.9 M Ft
3 szoba
140 m²
Marcaltő
Eladó családi ház

Marcaltő

26 M Ft
3 szoba
103 m²
Egerág
Eladó családi ház

Egerág

159 M Ft
5 szoba
178 m²
Enese
Eladó családi ház

Enese

72.025 M Ft
4 szoba
75 m²