Oasis Residence

Eladó téglalakás
Budapest, VIII. kerület, Józsefváros, Leonardo da Vinci utca, 1. emelet

+ 12 kép 1/15
102 000 000 Ft102 M Ft 1 085 106 Ft/m2
2 + 1 szoba
94 m2
1. emelet
építés éve:1920

Részletes adatok

Állapot: Átlagos
Fűtés: Gázkazán
Energetikai besorolás: Nem adta meg a hirdető

Az OTP Bank lakáshitel ajánlataFizetett hirdetés

+36 70 383
Szimeth Norbert
Balla Ingatlan - XVIII. kerület, Gyál, Üllő, Vecsés, Péteri

Érdekel az OTP Bank kedvezményes lakáshitel ajánlata? *

* A kérdésre „Igen” válasz bejelölése esetén, az „Üzenet küldése” gombra kattintva kijelentem, hogy az OTP Bank Nyrt. Adatkezelési tájékoztatójának tartalmát megismertem és tudomásul vettem.

Eladó téglalakás leírása

Tágas polgári lakás a belváros szívében, ahol a tér, a fény és a karakter találkozik
Budapest VIII. kerületének egyik legjobb adottságú utcájában, a Leonardo da Vinci utcában kínáljuk megvételre ezt az első emeleti, 94 m²-es, gázcirkó fűtéses lakást, azoknak, akik nem érik be a hétköznapival.
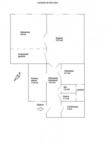
A lakás klasszikus polgári hangulatot áraszt: 370 cm-es belmagasság, tágas nappali (27,5 m²), két hálószoba, külön fürdő és WC, valamint eredeti fa ablakok, fa tokozással. A nagyobbik hálószoba 26 m²-es, melynek egy részét gardróbszobaként választották le, praktikus és elegáns megoldás. A kisebbik hálószoba 6,7 m²-es, korábban fürdőszoba volt, de így egy második, szeparált hálóhelyiség is rendelkezésre áll. A két hálószoba diszkréten a nappali két oldalán helyezkedik el, így a lakás belső elrendezése ideális családok számára is.
A konyha ablaka a belső udvarra néz, míg a két nagyobbik szoba az utcára – így a lakás világos, jól szellőző, mégis csendes. A gépészet modern: rézvezetékes elektromos hálózat, bélelt kémény, gázcirkó fűtés radiátorokon keresztül, amely a meleg vizet is biztosítja. A lakás esztétikailag felújítandó, de szerkezetileg és gépészetileg jó állapotban van – így egyéni ízlés szerint könnyedén alakítható.

Alacsony fenntartási költségek, kiváló elhelyezkedés
A közös költség mindössze 25.000 Ft havonta, a fűtés pedig csupán 10.000 Ft körül alakul – köszönhetően a vastag falaknak és a lakás kedvező pozíciójának, amelyet minden irányból szomszédos lakások határolnak. Ez nemcsak energiatakarékos, hanem gazdaságos is.

Környezet és közlekedés, a város lüktetése karnyújtásnyira
A Leonardo da Vinci utca a Palotanegyed és a Klinikák határán fekszik, egy dinamikusan fejlődő, mégis nyugodt városrészben. A környék infrastruktúrája kiváló: egyetemek, kórházak, boltok, éttermek, kávézók, kulturális intézmények mind elérhetők gyalogosan. A közlekedés kiemelkedő: pár perc sétára található a 3-as metró (Corvin negyed), valamint több villamos- és buszjárat is biztosítja a gyors kapcsolatot a belváros és más kerületek felé.

Ez az ingatlan ideális választás lehet családoknak, akik értékelik a tágas tereket, a nagy belmagasságot, és nem szeretnének magas fenntartási költségeket vállalni. De befektetőknek, fiatal pároknak vagy akár diákoknak is remek lehetőség, akik a belváros szívében keresnek karakteres, jól alakítható otthont.
Ha szeretné megtapasztalni, milyen érzés lehet itt élni, szívesen megmutatom, és garantálom, hogy már az első pillanatban otthon fogja érezni magát.

Hirdetés feltöltve: 2025. 10. 10. Utoljára módosítva: 2025. 11. 25.

3 szobás téglalakások ára Budapesten

Ebből az összehasonlításból megtudhatod, hogyan viszonyul a lakás ára a környékbeli téglalakások átlagos árához. Ez nem azt jelenti, hogy ennyivel olcsóbb vagy drágább, mint amennyit a lakás ér, hanem hogy ennyivel tér el a környékbeli átlagtól.

Ennek a m² ára
Józsefváros m² ár
VIII. kerület m² ár
Budapest m² ár
1085 e Ft
1332 e Ft 19%
1391 e Ft 22%
1692 e Ft 36%
Ennek az ára
Józsefváros átlagár
VIII. kerület átlagár
Budapest átlagár
102 M Ft m Ft
85.5 m Ft -19%
98.6 m Ft -3%
131.9 m Ft 23%

Az ingatlan elhelyezkedése

Cím: Budapest, VIII. kerület, Józsefváros, Leonardo da Vinci utca, 1. emelet

Eladó ingatlanok a környékről

Eladó téglalakás
Eladó téglalakás

VIII. kerület, Józsefváros, Kálvária utca 16

65 M Ft
1 + 1 szoba
44 m2
Eladó téglalakás
Eladó téglalakás

III. kerület, Rómaifürdő, Királyok útja

139 M Ft
3 szoba
65 m2
Eladó téglalakás
Eladó téglalakás

VIII. kerület, Józsefváros, Kálvária utca 16

85.5 M Ft
2 + 1 szoba
63 m2
Eladó téglalakás
Eladó téglalakás

VII. kerület, Belső Erzsébetváros, Erzsébet körút

89.9 M Ft
1 + 1 szoba
71 m2
Eladó téglalakás
Eladó téglalakás

XVIII. kerület

62.9 M Ft
2 szoba
43 m2
Eladó téglalakás
Eladó téglalakás

XIII. kerület, Angyalföld, Fiastyúk utca

39.9 M Ft
1 + 1 szoba
34 m2
Eladó téglalakás
Eladó téglalakás

II. kerület

169 M Ft
4 szoba
104 m2
Eladó téglalakás
Eladó téglalakás

V. kerület, Belváros, Petőfi Sándor utca

134 M Ft
2 szoba
59 m2
Eladó téglalakás
Eladó téglalakás

VII. kerület, Belső Erzsébetváros, Erzsébet körút

160 M Ft
3 szoba
88 m2
Eladó téglalakás
Eladó téglalakás

VIII. kerület, Futó utca

85.521 M Ft
1 szoba
39 m2
Eladó téglalakás
Eladó téglalakás

VIII. kerület, Futó utca

104.667 M Ft
2 szoba
43 m2
Eladó téglalakás
Eladó téglalakás

VIII. kerület, Palotanegyed, Békési utca

44.7 M Ft
2 szoba
42 m2
Eladó téglalakás
Eladó téglalakás

VI. kerület, Külső Terézváros, Szófia utca

114.9 M Ft
4 szoba
103 m2
Eladó téglalakás
Eladó téglalakás

VIII. kerület, Józsefváros, Corvin negyed

39.8 M Ft
2 szoba
42 m2
Eladó téglalakás
Eladó téglalakás

VIII. kerület, Futó utca

79.12 M Ft
1 szoba
39 m2
Eladó téglalakás
Eladó téglalakás

V. kerület, Belváros, Belgrád rakpart

78 M Ft
1 + 1 szoba
42 m2
Eladó téglalakás
Eladó téglalakás

III. kerület, Óbudaisziget, Folyamőr utca

76.9 M Ft
1 szoba
25 m2
Eladó téglalakás
Eladó téglalakás

VIII. kerület

80 M Ft
2 + 1 szoba
79 m2
Eladó téglalakás
Eladó téglalakás

VIII. kerület, Józsefváros, Baross utca

95 M Ft
3 + 1 szoba
100 m2
Eladó téglalakás
Eladó téglalakás

I. kerület, Krisztinaváros, Feszty Árpád utca

78.99 M Ft
1 szoba
28 m2
Eladó téglalakás
Eladó téglalakás

XI. kerület, Gellérthegy, Gombócz Zoltán utca

142 M Ft
2 + 1 szoba
71 m2
Eladó téglalakás
Eladó téglalakás

VIII. kerület, Futó utca

101.107 M Ft
2 szoba
49 m2
Eladó téglalakás
Eladó téglalakás

VI. kerület, Külső Terézváros, Szív utca

119.5 M Ft
3 szoba
94 m2

Falusi CSOK ingatlanok

Eladó családi ház
Eladó családi ház

Püspökhatvan

44.9 M Ft
3 szoba
80 m2
Eladó családi ház
Eladó családi ház

Vasvár

64.9 M Ft
3 szoba
91 m2
Eladó családi ház
Eladó családi ház

Nagybörzsöny

36 M Ft
2 + 1 szoba
74 m2
Eladó családi ház
Eladó családi ház

Kenyeri

39.9 M Ft
3 szoba
94 m2
Eladó családi ház
Eladó családi ház

Gyömöre

45.99 M Ft
2 szoba
118 m2
Eladó családi ház
Eladó családi ház

Szigliget

299 M Ft
3 szoba
95 m2
Eladó téglalakás
Eladó téglalakás

Nagyharsány

22.5 M Ft
3 szoba
71 m2
Eladó családi ház
Eladó családi ház

Törtel

10 M Ft
2 szoba
43 m2