NapForrás 20 - Buda

Eladó téglalakás
Budapest, VIII. kerület, Józsefváros, 1. emelet

+ 17 kép 1/20
149 900 000 Ft149.9 M Ft 1 529 592 Ft/m2
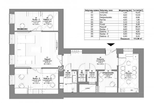
3 + 1 szoba
98 m2
1. emelet
építés éve:1900

Részletes adatok

Állapot: Felújított
Fűtés: Gázkazán
Energetikai besorolás: Nem adta meg a hirdető

Az OTP Bank lakáshitel ajánlataFizetett hirdetés

+36 30 755
Marton Luca Karolina
referens

Érdekel az OTP Bank kedvezményes lakáshitel ajánlata? *

* A kérdésre „Igen” válasz bejelölése esetén, az „Üzenet küldése” gombra kattintva kijelentem, hogy az OTP Bank Nyrt. Adatkezelési tájékoztatójának tartalmát megismertem és tudomásul vettem.

Eladó téglalakás leírása

Belvárosi különlegesség, otthon és befektetés egyben

A VII. és VIII. kerület határán, csendes mellékutcában található ez a napfényes, első emeleti, 113 m2-es lakás, amelyet építészcsalád tervei alapján, kompromisszumok nélkül újítottak fel. A letisztult, modern stílus és az egyedi részletmegoldások harmóniája olyan otthont eredményezett, amely valóban azonnal költözhető, és hosszú távon is értékálló befektetést jelent.

A lakás teljes körű, dokumentált felújításon esett át: minden közmű, burkolat és nyílászáró megújult, a fűtést gazdaságos kondenzációs gázkazán, a hűtést álmennyezetbe rejtett, WiFi-ről vezérelhető klíma biztosítja. Az alacsony rezsiköltségek (átlagosan villany 6.000 Ft, gáz 7.000 Ft, víz 4.000 Ft, közös költség 34.000 Ft) kényelmes fenntarthatóságot kínálnak a belváros szívében.

A vételár része a modern, beépített Gorenje konyhai gépekkel felszerelt konyha, valamint az egyedileg tervezett bútorok, lámpák és kanapé, így az új tulajdonos valóban csak a személyes tárgyait kell, hogy hozza. A további berendezési tárgyak megegyezés szerint elérhetők.

A környék kivételes: néhány perc sétára találhatók az M2 és M4 metróvonalak, a 4-6-os villamos, valamint több busz- és troli járat. A Keleti pályaudvar 6 perc alatt elérhető, így a város bármely pontja gyorsan megközelíthető. A II. János Pál Pápa tér közelsége sportolásra, kikapcsolódásra kínál lehetőséget, míg a környék üzletei, színházai és bevásárlóközpontjai a mindennapok kényelmét szolgálják.

A rendezett, liftes társasház hangulatos, zöld belső udvarral, erős közös képviselettel és stabil pénzügyi háttérrel rendelkezik, ami szintén hozzájárul az ingatlan biztonságos értéknövekedéséhez.

Ez a lakás nemcsak egy stílusos és tágas otthon, hanem egy megbízható befektetés is, amely rövid határidővel birtokba vehető.

Amennyiben az ingatlan felkeltette az érdeklődését, kérem, vegye fel velem a kapcsolatot!
Az adásvételi szerződés megkötéséhez igény szerint megbízható ügyvédi és hitelügyintézői közreműködést biztosítunk, és segítséget nyújtunk az adásvételhez kapcsolódó ügyek intézéséhez.

Hirdetés feltöltve: 2025. 09. 30. Utoljára módosítva: 2025. 11. 26.

4 szobás téglalakások ára Budapesten

Ebből az összehasonlításból megtudhatod, hogyan viszonyul a lakás ára a környékbeli téglalakások átlagos árához. Ez nem azt jelenti, hogy ennyivel olcsóbb vagy drágább, mint amennyit a lakás ér, hanem hogy ennyivel tér el a környékbeli átlagtól.

Ennek a m² ára
Józsefváros m² ár
VIII. kerület m² ár
Budapest m² ár
1530 e Ft
1286 e Ft -19%
1341 e Ft -14%
1736 e Ft 12%
Ennek az ára
Józsefváros átlagár
VIII. kerület átlagár
Budapest átlagár
149.9 M Ft m Ft
100.4 m Ft -49%
110.4 m Ft -36%
181.7 m Ft 18%

Az ingatlan elhelyezkedése

Cím: Budapest, VIII. kerület, Józsefváros, 1. emelet

Eladó ingatlanok a környékről

Eladó téglalakás
Eladó téglalakás

VIII. kerület, Futó utca

74.721 M Ft
1 szoba
34 m2
Eladó téglalakás
Eladó téglalakás

VIII. kerület, Palotanegyed, Békési utca

38.8 M Ft
1 szoba
33 m2
Eladó téglalakás
Eladó téglalakás

VIII. kerület, Futó utca

101.107 M Ft
2 szoba
49 m2
Eladó téglalakás
Eladó téglalakás

VIII. kerület, Józsefváros, Kálvária utca 16

79.9 M Ft
1 + 3 szoba
75 m2
Eladó téglalakás
Eladó téglalakás

VIII. kerület, Palotanegyed

157 M Ft
3 szoba
131 m2
Eladó panellakás
Eladó panellakás

XXI. kerület, Csillagtelep

63.9 M Ft
2 szoba
55 m2
Eladó családi ház
Eladó családi ház

XVII. kerület, Rákoskert

79.9 M Ft
5 szoba
103 m2
Eladó téglalakás
Eladó téglalakás

VIII. kerület, Józsefváros, Baross utca

199 M Ft
859 m2
Eladó családi ház
Eladó családi ház

XXII. kerület, Budafok, Baross utca

199 M Ft
6 + 1 szoba
200 m2
Eladó téglalakás
Eladó téglalakás

VIII. kerület, Józsefváros, Kálvária utca 16

85.5 M Ft
2 + 1 szoba
63 m2
Eladó téglalakás
Eladó téglalakás

VIII. kerület, Józsefváros, Kálvária utca 16

109.9 M Ft
4 szoba
79 m2
Eladó téglalakás
Eladó téglalakás

VIII. kerület

69.9 M Ft
3 szoba
51 m2
Eladó téglalakás
Eladó téglalakás

XIV. kerület, Kiszugló, Kövér Lajos utca

168 M Ft
3 + 1 szoba
84 m2
Eladó téglalakás
Eladó téglalakás

XI. kerület, Gellérthegy, Gombócz Zoltán utca

142 M Ft
2 + 1 szoba
71 m2
Eladó téglalakás
Eladó téglalakás

VIII. kerület, Józsefváros, 8. Népszínház u

79.8 M Ft
3 + 1 szoba
100 m2
Eladó téglalakás
Eladó téglalakás

VIII. kerület, Futó utca

104.563 M Ft
2 szoba
49 m2
Eladó téglalakás
Eladó téglalakás

VIII. kerület, Futó utca

85.521 M Ft
1 szoba
39 m2
Eladó téglalakás
Eladó téglalakás

VIII. kerület, Palotanegyed, Békési utca

44.7 M Ft
2 szoba
42 m2
Eladó téglalakás
Eladó téglalakás

XIV. kerület, Törökőr, Thököly út

77.9 M Ft
2 szoba
78 m2
Eladó téglalakás
Eladó téglalakás

X. kerület, Gyárdűlő

43.6 M Ft
1 szoba
34 m2
Eladó téglalakás
Eladó téglalakás

VIII. kerület, Rákóczi út

90 M Ft
4 szoba
100 m2
Eladó családi ház
Eladó családi ház

XV. kerület, Rákospalota, Bercsényi Miklós utca

110 M Ft
3 szoba
110 m2
Eladó téglalakás
Eladó téglalakás

XIII. kerület, Angyalföld, Fiastyúk utca

39.9 M Ft
1 + 1 szoba
34 m2
Eladó téglalakás
Eladó téglalakás

XI. kerület, Gellérthegy, Gyula utca

130 M Ft
2 szoba
56 m2

Falusi CSOK ingatlanok

Eladó családi ház
Eladó családi ház

Adásztevel

8.9 M Ft
2 szoba
63 m2
Eladó családi ház
Eladó családi ház

Kislőd

53.2 M Ft
3 szoba
86 m2
Eladó családi ház
Eladó családi ház

Vácszentlászló

45 M Ft
4 szoba
100 m2
Eladó családi ház
Eladó családi ház

Pétfürdő

36.5 M Ft
3 szoba
100 m2
Eladó családi ház
Eladó családi ház

Törtel

13.5 M Ft
5 szoba
74 m2
Eladó családi ház
Eladó családi ház

Vajszló

18 M Ft
2 szoba
91 m2
Eladó családi ház
Eladó családi ház

Enese

82.9 M Ft
4 szoba
90 m2
Eladó panellakás
Eladó panellakás

Pétfürdő

49.9 M Ft
3 szoba
71 m2