Oasis Residence

Eladó téglalakás
Budapest, VII. kerület, földszint

+ 17 kép 1/20
104 900 000 Ft104.9 M Ft 1 104 211 Ft/m2
2 szoba
95 m²
földszint
építés éve:1896

Részletes adatok

Állapot: Felújítandó
Fűtés: Gázkonvektor
Emelet: földszint
Komfort: Összkomfortos
Extrák: Lift
Energetikai besorolás: Nem adta meg a hirdető

Az OTP Bank lakáshitel ajánlataFizetett hirdetés

+36 30 942
Szekeres Tünde
OTPIP I. kerület Zsolt utcai iroda

Érdekel az OTP Bank kedvezményes lakáshitel ajánlata? *

* A kérdésre „Igen” válasz bejelölése esetén, az „Üzenet küldése” gombra kattintva kijelentem, hogy az OTP Bank Nyrt. Adatkezelési tájékoztatójának tartalmát megismertem és tudomásul vettem.

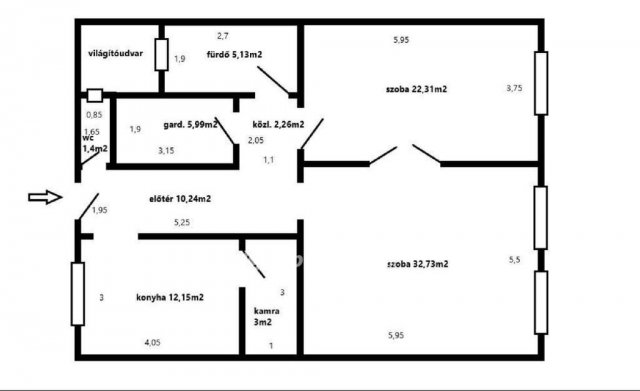
Eladó téglalakás leírása

Budapest VII. kerületében, Ligetvárosban 95 m2-es lakás ELADÓ!

A VII. kerület közkedvelt részen, a Damjanich utcában kínálunk eladásra egy magasföldszinti, 95 m2-es lakást.

Az ingatlan egy téglaépítésű, liftes társasház magasföldszintjén helyezkedik el, a ház kívül-belül rendkívül jó állapotú, rendszeresen karbantartott, jó lakóközösséggel és közös képviselettel rendelkezik.
A lakás jelenleg 2 szobás, azonban könnyen 3 szobássá alakítható, ezzel is növelve az életteret. Minden helysége tágas, külön nyíló.
Állapotát tekintve felújításra szorul, új tulajdonosa saját ízlése szerint alakíthatja.
Utcai nézetének és K-i tájolásának köszönhetően kimondottan világos.

Mind saját, mind befektetési céllal jó választás lehet, hiszen a környék kimondottan jó infrastruktúrával rendelkezik. Az utcában több bevásárlási lehetőség, étterem is található.

Pár perc séta távolságon belül több tömeg közlekedni eszköz is elérhető, buszmegálló, troli.
A Városliget is csupán 10 perc sétára található.

Tehermentes, 1/1-es tulajdonjogú.
Rugalmasan megtekinthető.

Kérdés esetén forduljon hozzám bizalommal, a hét bármely napján!

Az energetikai tanúsítvány készítése folyamatban van, amint rendelkezésre áll, úgy azzal a hirdetés frissítésre kerül.

Referencia szám: M320126

Hirdetés feltöltve: 2026. 04. 22. Utoljára módosítva: 2026. 05. 12.

2 szobás téglalakások ára Budapesten

Ebből az összehasonlításból megtudhatod, hogyan viszonyul a lakás ára a környékbeli téglalakások átlagos árához. Ez nem azt jelenti, hogy ennyivel olcsóbb vagy drágább, mint amennyit a lakás ér, hanem hogy ennyivel tér el a környékbeli átlagtól.

Ennek a m² ára
VII. kerület m² ár
Budapest m² ár
1104 e Ft
1504 e Ft 27%
1690 e Ft 35%
Ennek az ára
VII. kerület átlagár
Budapest átlagár
104.9 M Ft m Ft
198.7 m Ft 47%
88.7 m Ft -18%

Az ingatlan elhelyezkedése

Cím: Budapest, VII. kerület, földszint

Eladó ingatlanok a környékről

VII. kerület
Eladó téglalakás

Budapest, VII. kerület

105 M Ft
2 szoba
42 m²
VII. kerület
Eladó téglalakás

Budapest, VII. kerület

185 M Ft
3 szoba
128 m²
VII. kerület
Eladó téglalakás

Budapest, VII. kerület

117.3 M Ft
4 szoba
138 m²
VII. kerület, Dohány-Kazinczy sarok
Eladó téglalakás

Budapest, VII. kerület

95.5 M Ft
2 szoba
68 m²
V. kerület, Lipótváros, Akadémia utca
Eladó téglalakás

Budapest, V. kerület

110 M Ft
3 szoba
61 m²
XIV. kerület
Eladó téglalakás

Budapest, XIV. kerület

65 M Ft
2 szoba
60 m²
VII. kerület
Eladó téglalakás

Budapest, VII. kerület

124 M Ft
3 szoba
69 m²
VII. kerület, Belső Erzsébetváros, Klauzál tér
Eladó téglalakás

Budapest, VII. kerület

85 M Ft
2 szoba
77 m²
VII. kerület
Eladó téglalakás

Budapest, VII. kerület

139 M Ft
3 szoba
86 m²
VII. kerület, Külső Erzsébetváros, Erzsébet körút
Eladó téglalakás

Budapest, VII. kerület

195 M Ft
4 szoba
93 m²
XV. kerület
Eladó családi ház

Budapest, XV. kerület

119.9 M Ft
5 szoba
144 m²
VI. kerület
Eladó téglalakás

Budapest, VI. kerület

493 M Ft
5 szoba
285 m²
XIII. kerület, Angyalföld, Szent László út
Eladó téglalakás

Budapest, XIII. kerület

67.5 M Ft
2 szoba
38 m²
VII. kerület, Külső Erzsébetváros, István utca
Eladó téglalakás

Budapest, VII. kerület

84 M Ft
2 szoba
47 m²
VII. kerület
Eladó téglalakás

Budapest, VII. kerület

99.99 M Ft
4 szoba
67 m²
III. kerület
Eladó panellakás

Budapest, III. kerület

64.9 M Ft
3 szoba
50 m²
VIII. kerület
Eladó téglalakás

Budapest, VIII. kerület

39.99 M Ft
1 szoba
30 m²
VII. kerület, Belső Erzsébetváros, Dob utca
Eladó téglalakás

Budapest, VII. kerület

212 M Ft
4 szoba
180 m²
VII. kerület, Külső Erzsébetváros, Klauzál utca
Eladó téglalakás

Budapest, VII. kerület

63.4 M Ft
1 szoba
39 m²
VII. kerület, Külső Erzsébetváros, Rottenbiller utca
Eladó téglalakás

Budapest, VII. kerület

95 M Ft
5 szoba
108 m²
VII. kerület
Eladó téglalakás

Budapest, VII. kerület

83 M Ft
2 szoba
44 m²
XI. kerület
Eladó téglalakás

Budapest, XI. kerület

149.9 M Ft
4 szoba
139 m²
VII. kerület
Eladó téglalakás

Budapest, VII. kerület

185 M Ft
3 szoba
128 m²
VII. kerület
Eladó téglalakás

Budapest, VII. kerület

124.9 M Ft
3 szoba
74 m²

Falusi CSOK ingatlanok

Tass
Eladó családi ház

Tass

37 M Ft
2 szoba
75 m²
Mándok, Mónus Illés utca 12
Eladó családi ház

Mándok

0.1 M Ft
2 szoba
99 m²
Vatta
Eladó családi ház

Vatta

28.3 M Ft
2 szoba
56 m²
Tápiószőlős
Eladó családi ház

Tápiószőlős

9.9 M Ft
3 szoba
0 m²
Vép
Eladó családi ház

Vép

75.9 M Ft
5 szoba
150 m²
Kaposgyarmat
Eladó családi ház

Kaposgyarmat

695 M Ft
6 szoba
610 m²
Csárdaszállás
Eladó családi ház

Csárdaszállás

11.99 M Ft
3 + 2 szoba
100 m²
Levelek
Eladó családi ház

Levelek

74 M Ft
6 + 1 szoba
190 m²