Avico Greentop

Eladó téglalakás
Budapest, VII. kerület, földszint

+ 6 kép 1/9
39 800 000 Ft39.8 M Ft 1 730 435 Ft/m2
2 szoba
23 m²
földszint
építés éve:1900

Részletes adatok

Állapot: Felújított
Fűtés: Elektromos
Emelet: földszint
Energetikai besorolás: Nem adta meg a hirdető

Az OTP Bank lakáshitel ajánlataFizetett hirdetés

+36 1 690
Szabó-Lévai Annamária
Duna House Kispest

Érdekel az OTP Bank kedvezményes lakáshitel ajánlata? *

* A kérdésre „Igen” válasz bejelölése esetén, az „Üzenet küldése” gombra kattintva kijelentem, hogy az OTP Bank Nyrt. Adatkezelési tájékoztatójának tartalmát megismertem és tudomásul vettem.

Eladó téglalakás leírása

MINIGARZON ELADÓ!

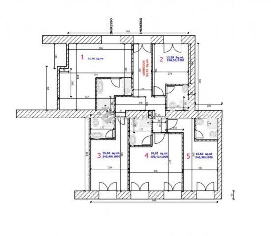
7. kerületben, Szinva utcában, rendezett társasház magasföldszintjén, 89 nm alapterület + 46 nm ingatlan, 5 lakóegységre osztott egyik lakását kínáljuk eladásra.

A felújítás még zajlik, de már rugalmasan megtekinthetőek. 2026 márciusában költözhetőek. Minden lakás konyhával, nappalival, fürdőszobával és galériás hálószobával rendelkezik. 4.2 m. belmagasságával kényelmes otthont biztosít. Észak keleti fekvésű, külön villany és vízórával felszereltek. Az ár tartalmazza a beépített bútorokat.

A lakások külön, ügyvédi megosztással megvásárolhatóak, de az 5 minigarzon egyben is eladó.

3. lakás: 16,6 nm + 7,8 nm galéria

További információkért, megtekintésre, hívjon bizalommal!

Irányár: 39800000 Ft
Érd.: Szabó-Lévai Annamária, +36 70 307 7503

Referencia szám: LK064830-ZE

Hirdetés feltöltve: 2026. 02. 19. Utoljára módosítva: 2026. 04. 08.

2 szobás téglalakások ára Budapesten

Ebből az összehasonlításból megtudhatod, hogyan viszonyul a lakás ára a környékbeli téglalakások átlagos árához. Ez nem azt jelenti, hogy ennyivel olcsóbb vagy drágább, mint amennyit a lakás ér, hanem hogy ennyivel tér el a környékbeli átlagtól.

Ennek a m² ára
VII. kerület m² ár
Budapest m² ár
1730 e Ft
1593 e Ft -9%
1617 e Ft -7%
Ennek az ára
VII. kerület átlagár
Budapest átlagár
39.8 M Ft m Ft
81.3 m Ft 51%
240.9 m Ft 83%

Az ingatlan elhelyezkedése

Cím: Budapest, VII. kerület, földszint

Eladó ingatlanok a környékről

VII. kerület, Dohány-Kazinczy sarok
Eladó téglalakás

Budapest, VII. kerület

95.5 M Ft
2 szoba
68 m²
XVIII. kerület
Eladó téglalakás

Budapest, XVIII. kerület

139.9 M Ft
4 szoba
117 m²
VII. kerület
Eladó téglalakás

Budapest, VII. kerület

124.9 M Ft
3 szoba
74 m²
XVIII. kerület
Eladó téglalakás

Budapest, XVIII. kerület

139.9 M Ft
4 szoba
117 m²
VII. kerület, Belső Erzsébetváros, Klauzál tér
Eladó téglalakás

Budapest, VII. kerület

85 M Ft
2 szoba
77 m²
IV. kerület, Székesdűlő, Székesdüló sor
Eladó családi ház

Budapest, IV. kerület

75 M Ft
2 szoba
60 m²
VII. kerület, Külső Erzsébetváros, Dohány utca
Eladó téglalakás

Budapest, VII. kerület

135 M Ft
3 szoba
86 m²
IV. kerület
Eladó panellakás

Budapest, IV. kerület

96 M Ft
3 szoba
74 m²
XIV. kerület
Eladó téglalakás

Budapest, XIV. kerület

69.9 M Ft
2 szoba
68 m²
XX. kerület
Eladó téglalakás

Budapest, XX. kerület

66.9 M Ft
3 szoba
57 m²
XV. kerület
Eladó családi ház

Budapest, XV. kerület

99 M Ft
2 + 3 szoba
144 m²
XVIII. kerület
Eladó panellakás

Budapest, XVIII. kerület

51.9 M Ft
1 + 1 szoba
35 m²
XV. kerület
Eladó családi ház

Budapest, XV. kerület

79.9 M Ft
3 szoba
78 m²
X. kerület, Óhegy, Gergely utca
Eladó téglalakás

Budapest, X. kerület

18.9 M Ft
1 szoba
14 m²
VII. kerület
Eladó téglalakás

Budapest, VII. kerület

65 M Ft
2 szoba
55 m²
VII. kerület
Eladó téglalakás

Budapest, VII. kerület

125 M Ft
4 szoba
118 m²
VII. kerület, Zsinagógával szemben
Eladó téglalakás

Budapest, VII. kerület

89 M Ft
2 szoba
62 m²
XXI. kerület
Eladó téglalakás

Budapest, XXI. kerület

63.5 M Ft
2 szoba
58 m²
XXI. kerület
Eladó téglalakás

Budapest, XXI. kerület

66.9 M Ft
2 + 2 szoba
70 m²
XXI. kerület
Eladó panellakás

Budapest, XXI. kerület

63.9 M Ft
2 szoba
63 m²
VII. kerület
Eladó téglalakás

Budapest, VII. kerület

125 M Ft
3 szoba
128 m²
VII. kerület
Eladó téglalakás

Budapest, VII. kerület

124 M Ft
3 szoba
69 m²
VII. kerület, Külső Erzsébetváros, Rottenbiller utca
Eladó téglalakás

Budapest, VII. kerület

95 M Ft
5 szoba
108 m²
XV. kerület
Eladó családi ház

Budapest, XV. kerület

64.9 M Ft
2 szoba
60 m²

Falusi CSOK ingatlanok

Balatonakali
Eladó ikerház

Balatonakali

560 M Ft
4 szoba
140 m²
Devecser
Eladó családi ház

Devecser

44.9 M Ft
3 szoba
97 m²
Hosszúhetény, Petőfi Sándor utca 10
Eladó családi ház

Hosszúhetény

20.65 M Ft
4 + 2 szoba
133 m²
Balatonkeresztúr, Kanizsai utca
Eladó ikerház

Balatonkeresztúr

32.9 M Ft
3 szoba
30 m²
Kamond
Eladó családi ház

Kamond

39.9 M Ft
4 szoba
101 m²
Fülöpszállás
Eladó családi ház

Fülöpszállás

69.9 M Ft
4 szoba
190 m²
Villány
Eladó családi ház

Villány

65 M Ft
3 szoba
95 m²
Kéthely
Eladó családi ház

Kéthely

97 M Ft
3 szoba
109 m²