Kedves Felhasználónk! Rendszerfrissítés miatt az oldalunk 2026. február 9-én 12 órától várhatóan 20 óráig nem lesz elérhető. Köszönjük megértésed!
City Pearl

Eladó téglalakás
Budapest, VII. kerület, földszint

+ 7 kép 1/10
59 800 000 Ft59.8 M Ft 2 718 182 Ft/m2
2 szoba
22 m2
földszint
építés éve:1900

Részletes adatok

Állapot: Felújított
Fűtés: Elektromos
Emelet: földszint
Energetikai besorolás: Nem adta meg a hirdető

Az OTP Bank lakáshitel ajánlataFizetett hirdetés

+36 1 444
Balázs István Jácint
Duna House Kispest

Érdekel az OTP Bank kedvezményes lakáshitel ajánlata? *

* A kérdésre „Igen” válasz bejelölése esetén, az „Üzenet küldése” gombra kattintva kijelentem, hogy az OTP Bank Nyrt. Adatkezelési tájékoztatójának tartalmát megismertem és tudomásul vettem.

Eladó téglalakás leírása

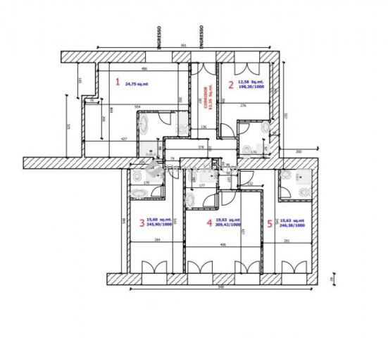
MINIGARZON ELADÓ!

7. kerületben, Szinva utcában, rendezett társasház magasföldszintjén,
89 nm alapterület + 46 nm ingatlan, 5 lakóegységre osztott egyik lakását kínáljuk eladásra.

A felújítás még zajlik, de már rugalmasan megtekinthetőek.
2026 márciusában költözhetőek.
Minden lakás konyhával, nappalival, fürdőszobával és galériás hálószobával rendelkezik. 4.2 m. belmagasságával kényelmes otthont biztosít.
Észak keleti fekvésű, külön villany és vízórával felszereltek.
Az ár tartalmazza a beépített bútorokat.

A lakások külön, ügyvédi megosztással megvásárolhatóak, de az 5 minigarzon egyben is eladó.

5. lakás: 15,6 nm + 7,2 nm galéria

További információkért, megtekintésre, hívjon bizalommal!
A Duna House teljes kínálatával kapcsolatban segítségére tudok lenni.
Amennyiben telefonon nem ér el, kérem küldjön érdeklődő üzenetet.
Szükség esetén román nyelven is tudok segíteni

Referencia szám: LK019907

Hirdetés feltöltve: 2026. 02. 09. Utoljára módosítva: 2026. 02. 09.

2 szobás téglalakások ára Budapesten

Ebből az összehasonlításból megtudhatod, hogyan viszonyul a lakás ára a környékbeli téglalakások átlagos árához. Ez nem azt jelenti, hogy ennyivel olcsóbb vagy drágább, mint amennyit a lakás ér, hanem hogy ennyivel tér el a környékbeli átlagtól.

Ennek a m² ára
VII. kerület m² ár
Budapest m² ár
2718 e Ft
1597 e Ft -70%
1698 e Ft -60%
Ennek az ára
VII. kerület átlagár
Budapest átlagár
59.8 M Ft m Ft
95.8 m Ft 38%
90.5 m Ft 34%

Az ingatlan elhelyezkedése

Cím: Budapest, VII. kerület, földszint

Eladó ingatlanok a környékről

Eladó téglalakás
Eladó téglalakás

VII. kerület

125 M Ft
4 szoba
118 m2
Eladó ikerház
Eladó ikerház

XVIII. kerület

91 M Ft
2 szoba
74 m2
Eladó téglalakás
Eladó téglalakás

IV. kerület

68.5 M Ft
2 szoba
49 m2
Eladó panellakás
Eladó panellakás

III. kerület

82 M Ft
3 szoba
66 m2
Eladó téglalakás
Eladó téglalakás

VII. kerület

139 M Ft
3 szoba
86 m2
Eladó téglalakás
Eladó téglalakás

VII. kerület

87.5 M Ft
3 + 1 szoba
104 m2
Eladó téglalakás
Eladó téglalakás

VII. kerület

210 M Ft
5 szoba
124 m2
Eladó téglalakás
Eladó téglalakás

VII. kerület

185 M Ft
3 szoba
128 m2
Eladó téglalakás
Eladó téglalakás

XIX. kerület, Kispest

34.9 M Ft
1 szoba
33 m2
Eladó téglalakás
Eladó téglalakás

X. kerület

61 M Ft
2 szoba
49 m2
Eladó családi ház
Eladó családi ház

II. kerület

499 M Ft
6 szoba
400 m2
Eladó téglalakás
Eladó téglalakás

VII. kerület, Külső Erzsébetváros, Izabella utca

89 M Ft
3 szoba
106 m2
Eladó téglalakás
Eladó téglalakás

XIV. kerület

69.9 M Ft
1 + 1 szoba
54 m2
Eladó téglalakás
Eladó téglalakás

VII. kerület

75 M Ft
1 + 2 szoba
60 m2
Eladó családi ház
Eladó családi ház

XXIII. kerület, Soroksár, Csendes utca

255 M Ft
5 szoba
400 m2
Eladó téglalakás
Eladó téglalakás

VII. kerület, Külső Erzsébetváros, Hársfa utca

90 M Ft
2 szoba
69 m2
Eladó ikerház
Eladó ikerház

XI. kerület

850 M Ft
8 szoba
401 m2
Eladó ikerház
Eladó ikerház

II. kerület

165 M Ft
3 szoba
93 m2
Eladó téglalakás
Eladó téglalakás

VII. kerület, Belső Erzsébetváros, Klauzál tér

85 M Ft
2 szoba
77 m2
Eladó téglalakás
Eladó téglalakás

VII. kerület, Belső Erzsébetváros, Dob utca

212 M Ft
4 szoba
180 m2
Eladó téglalakás
Eladó téglalakás

VIII. kerület

74 M Ft
2 szoba
45 m2
Eladó téglalakás
Eladó téglalakás

VII. kerület

65 M Ft
2 szoba
55 m2
Eladó téglalakás
Eladó téglalakás

VII. kerület

155.9 M Ft
3 szoba
129 m2
Eladó téglalakás
Eladó téglalakás

VII. kerület

170 M Ft
6 szoba
104 m2

Falusi CSOK ingatlanok

Eladó családi ház
Eladó családi ház

Bakonyszentkirály

99.99 M Ft
5 szoba
126 m2
Eladó családi ház
Eladó családi ház

Tésenfa, Kossuth utca 23/a

5.55 M Ft
1 + 1 szoba
109 m2
Eladó családi ház
Eladó családi ház

Szigliget

299 M Ft
3 szoba
95 m2
Eladó családi ház
Eladó családi ház

Kesztölc

129.9 M Ft
8 szoba
210 m2
Eladó családi ház
Eladó családi ház

Ónod, Szent István u. 9

9.24 M Ft
1 + 1 szoba
155 m2
Eladó családi ház
Eladó családi ház

Tarján

29.9 M Ft
3 szoba
120 m2
Eladó családi ház
Eladó családi ház

Legyesbénye, Monoki út 17

11.86 M Ft
1 + 1 szoba
126 m2
Eladó családi ház
Eladó családi ház

Bugac

15 M Ft
3 szoba
52 m2