Metrodom

Eladó téglalakás
Budapest, VII. kerület, földszint

+ 7 kép 1/10
37 800 000 Ft37.8 M Ft 1 989 474 Ft/m2
2 szoba
19 m²
földszint
építés éve:1900

Részletes adatok

Állapot: Felújított
Fűtés: Elektromos
Emelet: földszint
Komfort: Összkomfortos
Energetikai besorolás: Nem adta meg a hirdető

Az OTP Bank lakáshitel ajánlataFizetett hirdetés

+36 1 444
Balázs István Jácint
Duna House Kispest

Érdekel az OTP Bank kedvezményes lakáshitel ajánlata? *

* A kérdésre „Igen” válasz bejelölése esetén, az „Üzenet küldése” gombra kattintva kijelentem, hogy az OTP Bank Nyrt. Adatkezelési tájékoztatójának tartalmát megismertem és tudomásul vettem.

Eladó téglalakás leírása

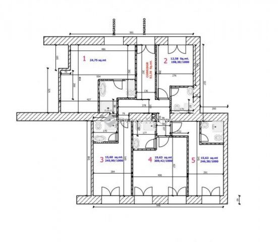
MINIGARZON ELADÓ!

7. kerületben, Szinva utcában, rendezett társasház magasföldszintjén,
89 nm alapterület + 46 nm ingatlan, 5 lakóegységre osztott egyik lakását kínáljuk eladásra.

A felújítás még zajlik, de már rugalmasan megtekinthetőek.
2026 márciusában költözhetőek. Minden lakás konyhával, nappalival, fürdőszobával és galériás hálószobával rendelkezik. 4.2 m. belmagasságával kényelmes otthont biztosít.
Észak keleti fekvésű, külön villany és vízórával felszereltek.
Az ár tartalmazza a beépített bútorokat.

A lakások külön, ügyvédi megosztással megvásárolhatóak, de az 5 minigarzon egyben is eladó.

2. lakás: 12,6 nm + 6,7 nm galéria

További inofrmációkért, megtekintésre hívjon bizalommal!

Az energetikai tanúsítvány készítése folyamatban van, amint rendelkezésre áll, úgy azzal a hirdetés frissítésre kerül.

A Duna House teljes kínálatával kapcsolatban segítségére tudok lenni.
Amennyiben telefonon nem ér el, kérem küldjön érdeklődő üzenetet.
Szükség esetén román nyelven is tudok segíteni

Referencia szám: LK061675

Hirdetés feltöltve: 2026. 02. 09. Utoljára módosítva: 2026. 05. 20.

2 szobás téglalakások ára Budapesten

Ebből az összehasonlításból megtudhatod, hogyan viszonyul a lakás ára a környékbeli téglalakások átlagos árához. Ez nem azt jelenti, hogy ennyivel olcsóbb vagy drágább, mint amennyit a lakás ér, hanem hogy ennyivel tér el a környékbeli átlagtól.

Ennek a m² ára
VII. kerület m² ár
Budapest m² ár
1989 e Ft
1570 e Ft -27%
1675 e Ft -19%
Ennek az ára
VII. kerület átlagár
Budapest átlagár
37.8 M Ft m Ft
81.1 m Ft 53%
88.4 m Ft 57%

Az ingatlan elhelyezkedése

Cím: Budapest, VII. kerület, földszint

Eladó ingatlanok a környékről

XX. kerület
Eladó téglalakás

Budapest, XX. kerület

79.9 M Ft
3 szoba
62 m²
VII. kerület
Eladó téglalakás

Budapest, VII. kerület

170 M Ft
6 szoba
104 m²
XIII. kerület
Eladó téglalakás

Budapest, XIII. kerület

129.9 M Ft
3 szoba
96 m²
VII. kerület
Eladó téglalakás

Budapest, VII. kerület

124 M Ft
3 szoba
69 m²
VII. kerület, Külső Erzsébetváros, Rottenbiller utca
Eladó téglalakás

Budapest, VII. kerület

95 M Ft
5 szoba
108 m²
II. kerület
Eladó téglalakás

Budapest, II. kerület

134.9 M Ft
3 szoba
78 m²
VII. kerület
Eladó téglalakás

Budapest, VII. kerület

75 M Ft
1 + 2 szoba
60 m²
XIII. kerület
Eladó téglalakás

Budapest, XIII. kerület

109.99 M Ft
2 szoba
72 m²
VII. kerület
Eladó téglalakás

Budapest, VII. kerület

85 M Ft
2 szoba
77 m²
VII. kerület, Belső Erzsébetváros, Madách Imre út
Eladó téglalakás

Budapest, VII. kerület

124.9 M Ft
3 szoba
74 m²
VI. kerület
Eladó téglalakás

Budapest, VI. kerület

98 M Ft
2 szoba
70 m²
XVIII. kerület
Eladó téglalakás

Budapest, XVIII. kerület

90 M Ft
3 szoba
73 m²
VII. kerület
Eladó téglalakás

Budapest, VII. kerület

117.3 M Ft
4 szoba
138 m²
VII. kerület
Eladó téglalakás

Budapest, VII. kerület

117.3 M Ft
4 szoba
138 m²
VII. kerület
Eladó téglalakás

Budapest, VII. kerület

83 M Ft
2 szoba
44 m²
VII. kerület
Eladó téglalakás

Budapest, VII. kerület

185 M Ft
3 szoba
128 m²
XXI. kerület
Eladó téglalakás

Budapest, XXI. kerület

24.9 M Ft
1 szoba
25 m²
XIV. kerület
Eladó téglalakás

Budapest, XIV. kerület

76.8 M Ft
2 szoba
43 m²
VII. kerület, Külső Erzsébetváros, Szenes Hanna Parknál eladó nagypolgári lakás
Eladó téglalakás

Budapest, VII. kerület

125 M Ft
4 szoba
118 m²
XI. kerület
Eladó panellakás

Budapest, XI. kerület

78 M Ft
2 szoba
49 m²
VII. kerület, Külső Erzsébetváros, Dohány utca
Eladó téglalakás

Budapest, VII. kerület

135 M Ft
3 szoba
86 m²
VII. kerület
Eladó téglalakás

Budapest, VII. kerület

155.9 M Ft
3 szoba
129 m²
VI. kerület
Eladó téglalakás

Budapest, VI. kerület

28 M Ft
1 + 1 szoba
45 m²
XXI. kerület
Eladó iroda

Budapest, XXI. kerület

32 M Ft
2 szoba
35 m²

Falusi CSOK ingatlanok

Seregélyes
Eladó családi ház

Seregélyes

87 M Ft
4 szoba
96 m²
Bakonycsernye
Eladó családi ház

Bakonycsernye

39 M Ft
3 szoba
350 m²
Tápiószőlős
Eladó családi ház

Tápiószőlős

39.9 M Ft
4 szoba
120 m²
Tápióság
Eladó családi ház

Tápióság

71.5 M Ft
4 szoba
72 m²
Hosszúpereszteg
Eladó családi ház

Hosszúpereszteg

27.9 M Ft
4 szoba
0 m²
Zsámbok
Eladó családi ház

Zsámbok

54.85 M Ft
3 szoba
120 m²
Tápiógyörgye
Eladó családi ház

Tápiógyörgye

19.9 M Ft
3 szoba
100 m²
Vép
Eladó családi ház

Vép

75.9 M Ft
5 szoba
150 m²