Kedves Felhasználónk! Rendszerfrissítés miatt az oldalunk 2026. február 9-én 12 órától várhatóan 20 óráig nem lesz elérhető. Köszönjük megértésed!
Aerogate Homes

Eladó téglalakás
Budapest, VII. kerület, 4. emelet

+ 1 kép 1/4
81 141 730 Ft81.142 M Ft 1 979 067 Ft/m2
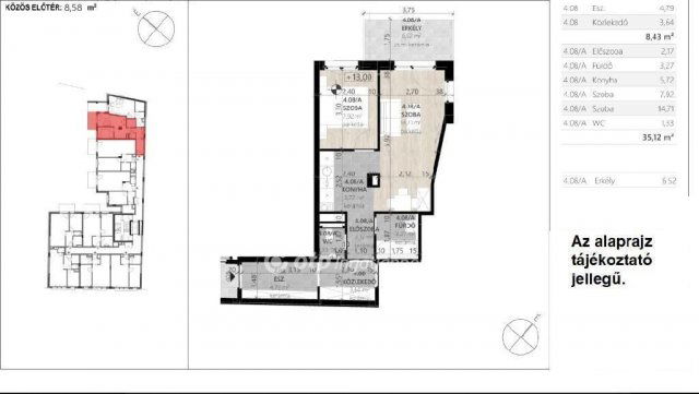
2 szoba
41 m2
4. emelet
építés éve:2025

Részletes adatok

Fűtés: Egyéb
Emelet: 4. emelet
Extrák: Lift
Energetikai besorolás: A

Az OTP Bank lakáshitel ajánlataFizetett hirdetés

+36 30 353
Sasaran-Kereki Katalin
referens

Érdekel az OTP Bank kedvezményes lakáshitel ajánlata? *

* A kérdésre „Igen” válasz bejelölése esetén, az „Üzenet küldése” gombra kattintva kijelentem, hogy az OTP Bank Nyrt. Adatkezelési tájékoztatójának tartalmát megismertem és tudomásul vettem.

Eladó téglalakás leírása

ÉRTÉKÁLLÓSÁG, KORSZERŰSÉG, GAZDASÁGOSSÁG, KIVÁLÓ BEFEKTETÉS. Könnyű megközelíthetőséggel, kiváló infrastruktúra mellett a 7. kerületben Erzsébetváros szívében kínálunk újépítésű, kiemelkedő minőségű 2, - 3 szobás, teraszos lakásokat. Hőszivattyúss fűtés/hűtés rendszerű a társasház, itt a rezsiárak emelkedése nem befolyásolja a fűtési díjat.. Ezeket a lakásokat azoknak ajánljuk, akiknek fontos az energiatakarékosság és a környezetkímélő élet. A belvárosi élet kedvelőinek ideális lakhatási lehetőséget kínál, túristáknak remek szálláslehetőség, így értékálló befektetésnek is remek választás. Köszönöm megtisztelő figyelmét. Amennyiben jelenlegi ingatlana értékesítésében is segítségére lehetek, illetve az OTP teljes ingatlankínálatával kapcsolatban kérem forduljon hozzám bizalommal. Az OTP Ingatlanpont, mint egyetlen közvetlen banki hátterű ingatlanközvetítő társaság teljes körű ügyintézéssel áll eladóik és vevőik rendelkezésére! Piaci és kedvezményes hitel- valamint lízingkonstrukciókat kínálunk mint lakásvásárlási hitel, szabad felhasználású hitel, babaváró hitel, CSOK Plusz-intézés, Otthonfelújítási Támogatás, egyéb felújítási hitelek. Az adásvételi szerződés megkötéséhez igény szerint megbízható ügyvédi közreműködést is biztosítunk. Ha felkeltettem érdeklődését, ne habozzon keresni a hét bármely napján reggel 9 és este 9 között. Ügyfeleinknek minden szolgáltatásunk (valóban) díjmentes. WE SPEAK ENGLISH, FEEL FREE TO CALL ME!

81141730 Ft

Referencia szám: M319363

Hirdetés feltöltve: 2026. 02. 05. Utoljára módosítva: 2026. 02. 06.

2 szobás téglalakások ára Budapesten

Ebből az összehasonlításból megtudhatod, hogyan viszonyul a lakás ára a környékbeli téglalakások átlagos árához. Ez nem azt jelenti, hogy ennyivel olcsóbb vagy drágább, mint amennyit a lakás ér, hanem hogy ennyivel tér el a környékbeli átlagtól.

Ennek a m² ára
VII. kerület m² ár
Budapest m² ár
1979 e Ft
1597 e Ft -24%
1698 e Ft -17%
Ennek az ára
VII. kerület átlagár
Budapest átlagár
81.142 M Ft m Ft
95.8 m Ft 15%
90.5 m Ft 10%

Az ingatlan elhelyezkedése

Cím: Budapest, VII. kerület, 4. emelet

Eladó ingatlanok a környékről

Eladó téglalakás
Eladó téglalakás

VII. kerület

124.9 M Ft
3 szoba
74 m2
Eladó téglalakás
Eladó téglalakás

IV. kerület, Újpest, Kassai utca

84.9 M Ft
2 + 1 szoba
71 m2
Eladó téglalakás
Eladó téglalakás

VII. kerület

185 M Ft
3 szoba
128 m2
Eladó téglalakás
Eladó téglalakás

VIII. kerület, Palotanegyed, Rákóczi út

180 M Ft
5 szoba
121 m2
Eladó téglalakás
Eladó téglalakás

VII. kerület, Külső Erzsébetváros, Hársfa utca

90 M Ft
2 szoba
69 m2
Eladó ikerház
Eladó ikerház

XVIII. kerület

124.9 M Ft
4 szoba
180 m2
Eladó téglalakás
Eladó téglalakás

VIII. kerület, Józsefváros

82 M Ft
2 szoba
72 m2
Eladó téglalakás
Eladó téglalakás

VI. kerület

120 M Ft
3 szoba
86 m2
Eladó téglalakás
Eladó téglalakás

VII. kerület

87.5 M Ft
3 + 1 szoba
104 m2
Eladó téglalakás
Eladó téglalakás

VI. kerület, Külső Terézváros, Szófia utca

112.9 M Ft
4 szoba
103 m2
Eladó téglalakás
Eladó téglalakás

VII. kerület, Külső Erzsébetváros, Izabella utca

89 M Ft
3 szoba
106 m2
Eladó téglalakás
Eladó téglalakás

VII. kerület

139 M Ft
3 szoba
86 m2
Eladó téglalakás
Eladó téglalakás

V. kerület, Belváros, Petőfi Sándor utca

134 M Ft
2 szoba
59 m2
Eladó téglalakás
Eladó téglalakás

VII. kerület

170 M Ft
6 szoba
104 m2
Eladó téglalakás
Eladó téglalakás

VII. kerület

75 M Ft
1 + 2 szoba
60 m2
Eladó téglalakás
Eladó téglalakás

VII. kerület, Belső Erzsébetváros, Murányi

75 M Ft
3 szoba
76 m2
Eladó téglalakás
Eladó téglalakás

VII. kerület

125 M Ft
4 szoba
118 m2
Eladó téglalakás
Eladó téglalakás

I. kerület, Krisztinaváros, Feszty Árpád utca

78.99 M Ft
1 szoba
28 m2
Eladó téglalakás
Eladó téglalakás

XI. kerület, Gellérthegy, Gyula utca

130 M Ft
2 szoba
56 m2
Eladó téglalakás
Eladó téglalakás

VII. kerület

125 M Ft
3 szoba
128 m2
Eladó téglalakás
Eladó téglalakás

VII. kerület, Külső Erzsébetváros, Dohány utca

135 M Ft
3 szoba
86 m2
Eladó téglalakás
Eladó téglalakás

VII. kerület

209 M Ft
5 szoba
124 m2
Eladó téglalakás
Eladó téglalakás

VIII. kerület, Józsefváros

78.5 M Ft
2 szoba
55 m2
Eladó téglalakás
Eladó téglalakás

VII. kerület

117.3 M Ft
4 szoba
138 m2

Falusi CSOK ingatlanok

Eladó családi ház
Eladó családi ház

Parád

47.9 M Ft
3 szoba
85 m2
Eladó családi ház
Eladó családi ház

Szabadbattyán

67.5 M Ft
5 szoba
180 m2
Eladó családi ház
Eladó családi ház

Lippó

10 M Ft
2 + 3 szoba
95 m2
Eladó családi ház
Eladó családi ház

Kaposgyarmat

695 M Ft
6 szoba
610 m2
Eladó családi ház
Eladó családi ház

Illocska

15 M Ft
2 szoba
105 m2
Eladó családi ház
Eladó családi ház

Tápszentmiklós

59.8 M Ft
5 szoba
110 m2
Eladó téglalakás
Eladó téglalakás

Balatonszemes

123.3 M Ft
2 szoba
70 m2
Eladó családi ház
Eladó családi ház

Ádánd

69.9 M Ft
6 szoba
251 m2