Metrodom

Eladó téglalakás
Budapest, VII. kerület

+ 17 kép 1/20
104 900 000 Ft104.9 M Ft 1 104 211 Ft/m2
2 szoba
95 m²
építés éve:1896

Részletes adatok

Állapot: Felújítandó
Fűtés: Gázkonvektor
Extrák: Lift
Energetikai besorolás: Nem adta meg a hirdető

Az OTP Bank lakáshitel ajánlataFizetett hirdetés

+36 30 246
Molnár Annamária
referens

Érdekel az OTP Bank kedvezményes lakáshitel ajánlata? *

* A kérdésre „Igen” válasz bejelölése esetén, az „Üzenet küldése” gombra kattintva kijelentem, hogy az OTP Bank Nyrt. Adatkezelési tájékoztatójának tartalmát megismertem és tudomásul vettem.

Eladó téglalakás leírása

Budapest VII. kerületében, Ligetvárosban 95 m2-es lakás ELADÓ!

A VII. kerület közkedvelt részen, a Damjanich utcában kínálunk eladásra egy magasföldszinti, 95 m2-es lakást.

Az ingatlan egy téglaépítésű, liftes társasház magasföldszintjén helyezkedik el, a ház kívül-belül rendkívül jó állapotú, rendszeresen karbantartott, jó lakóközösséggel és közös képviselettel rendelkezik.
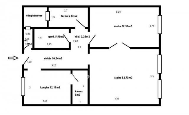
A lakás jelenleg 2 szobás, azonban könnyen 3 szobássá alakítható, ezzel is növelve az életteret. Minden helysége tágas, külön nyíló.
Állapotát tekintve felújításra szorul, új tulajdonosa saját ízlése szerint alakíthatja.
Utcai nézetének és K-i tájolásának köszönhetően kimondottan világos.

Mind saját, mind befektetési céllal jó választás lehet, hiszen a környék kimondottan jó infrastruktúrával rendelkezik. Az utcában több bevásárlási lehetőség, étterem is található.

Pár perc séta távolságon belül több tömeg közlekedni eszköz is elérhető, buszmegálló, troli.
A Városliget is csupán 10 perc sétára található.

Tehermentes, 1/1-es tulajdonjogú.
Rugalmasan megtekinthető.

Kérdés esetén forduljon hozzám bizalommal, a hét bármely napján!

Hirdetés feltöltve: 2026. 01. 24. Utoljára módosítva: 2026. 05. 10.

2 szobás téglalakások ára Budapesten

Ebből az összehasonlításból megtudhatod, hogyan viszonyul a lakás ára a környékbeli téglalakások átlagos árához. Ez nem azt jelenti, hogy ennyivel olcsóbb vagy drágább, mint amennyit a lakás ér, hanem hogy ennyivel tér el a környékbeli átlagtól.

Ennek a m² ára
VII. kerület m² ár
Budapest m² ár
1104 e Ft
1570 e Ft 30%
1675 e Ft 34%
Ennek az ára
VII. kerület átlagár
Budapest átlagár
104.9 M Ft m Ft
81.1 m Ft -29%
88.4 m Ft -19%

Az ingatlan elhelyezkedése

Cím: Budapest, VII. kerület

Eladó ingatlanok a környékről

VII. kerület
Eladó téglalakás

Budapest, VII. kerület

139 M Ft
3 szoba
86 m²
VI. kerület
Eladó ipari ingatlan

Budapest, VI. kerület

141.6 M Ft
90 m²
VII. kerület
Eladó téglalakás

Budapest, VII. kerület

155.9 M Ft
3 szoba
129 m²
VII. kerület
Eladó téglalakás

Budapest, VII. kerület

65 M Ft
2 szoba
55 m²
VII. kerület, Belső Erzsébetváros, Madách Imre út
Eladó téglalakás

Budapest, VII. kerület

124.9 M Ft
3 szoba
74 m²
VII. kerület
Eladó téglalakás

Budapest, VII. kerület

75 M Ft
1 + 2 szoba
60 m²
VII. kerület, Külső Erzsébetváros, Szenes Hanna Parknál eladó nagypolgári lakás
Eladó téglalakás

Budapest, VII. kerület

125 M Ft
4 szoba
118 m²
VI. kerület, Belső Terézváros, Lovag utca
Eladó téglalakás

Budapest, VI. kerület

110 M Ft
3 szoba
83 m²
VII. kerület, Külső Erzsébetváros, Dohány utca
Eladó téglalakás

Budapest, VII. kerület

135 M Ft
3 szoba
86 m²
XVII. kerület
Eladó családi ház

Budapest, XVII. kerület

82 M Ft
3 szoba
80 m²
II. kerület
Eladó családi ház

Budapest, II. kerület

499 M Ft
6 szoba
288 m²
VII. kerület
Eladó téglalakás

Budapest, VII. kerület

117.3 M Ft
4 szoba
138 m²
XXI. kerület
Eladó üzlethelyiség

Budapest, XXI. kerület

90 M Ft
2 szoba
69 m²
VII. kerület
Eladó téglalakás

Budapest, VII. kerület

117.3 M Ft
4 szoba
138 m²
VII. kerület, Zsinagógával szemben
Eladó téglalakás

Budapest, VII. kerület

89 M Ft
2 szoba
62 m²
VII. kerület
Eladó téglalakás

Budapest, VII. kerület

99.99 M Ft
4 szoba
67 m²
VII. kerület, Belső Erzsébetváros, Dob utca
Eladó téglalakás

Budapest, VII. kerület

212 M Ft
4 szoba
180 m²
VII. kerület
Eladó téglalakás

Budapest, VII. kerület

185 M Ft
3 szoba
128 m²
XVII. kerület
Eladó családi ház

Budapest, XVII. kerület

64 M Ft
2 szoba
40 m²
VII. kerület
Eladó téglalakás

Budapest, VII. kerület

124 M Ft
3 szoba
69 m²
VII. kerület
Eladó téglalakás

Budapest, VII. kerület

170 M Ft
6 szoba
104 m²
XI. kerület
Eladó téglalakás

Budapest, XI. kerület

123 M Ft
1 szoba
66 m²
VII. kerület, Belső Erzsébetváros, Klauzál tér
Eladó téglalakás

Budapest, VII. kerület

85 M Ft
2 szoba
77 m²
XXIII. kerület
Eladó telek

Budapest, XXIII. kerület

80 M Ft
3254 m²
0 m²

Falusi CSOK ingatlanok

Sződ
Eladó családi ház

Sződ

116 M Ft
5 szoba
136 m²
Letenye
Eladó családi ház

Letenye

35.9 M Ft
3 szoba
105 m²
Fonyód
Eladó téglalakás

Fonyód

175 M Ft
3 szoba
79 m²
Mencshely
Eladó családi ház

Mencshely

99 M Ft
3 szoba
126 m²
Sormás
Eladó családi ház

Sormás

105 M Ft
4 szoba
188 m²
Balatonszárszó
Eladó családi ház

Balatonszárszó

178 M Ft
6 szoba
260 m²
Fertőszentmiklós
Eladó családi ház

Fertőszentmiklós

249 M Ft
3 szoba
1200 m²
Rakamaz
Eladó családi ház

Rakamaz

86.9 M Ft
5 szoba
280 m²