River Life

Eladó téglalakás
Budapest, VII. kerület, 3. emelet

+ 12 kép 1/15
122 550 000 Ft122.55 M Ft 1 392 614 Ft/m2
3 szoba
88 m²
3. emelet
építés éve:1920

Részletes adatok

Állapot: Felújítandó
Fűtés: Gázkonvektor
Emelet: 3. emelet
Extrák: Lift
Energetikai besorolás: Nem adta meg a hirdető

Az OTP Bank lakáshitel ajánlataFizetett hirdetés

+36 30 894
Csiszér Jolán
referens

Érdekel az OTP Bank kedvezményes lakáshitel ajánlata? *

* A kérdésre „Igen” válasz bejelölése esetén, az „Üzenet küldése” gombra kattintva kijelentem, hogy az OTP Bank Nyrt. Adatkezelési tájékoztatójának tartalmát megismertem és tudomásul vettem.

Eladó téglalakás leírása

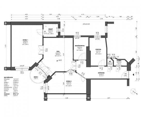
Eladásra kínálunk egy felújítandó állapotú, téglaépítésű lakást Budapest Hernád utcájában.
A lakás 92 négyzetméteres, helyet kapott benne 3 szoba, konyha, fürdőszoba, WC külön helyiségben, kamra előszoba, 3,5 m beltéri magassággal, nagy nyílászárókkal. Az ingatlanhoz tartozik egy 4 négyzetméteres erkély is, amely utcai kilátást nyújt.
A lakóegység a ház 3. emeletén található körfolyosóról nyílik, a házban lift biztosítja a kényelmes közlekedést.
A társasház egy impozáns épület, kívülről felújításra szorul, a lépcsőház új bejárati ajtóval, szépen felújított ikonikus mozaikcsempével díszített, tiszta lépcsőház.
A fűtésről gázkonvektorok, a melegvízről villanybojler gondoskodik.
Boltok közelben.
Közlekedés jó.
A környék csendes és nyugodt, egyirányú forgalom a ház előtt, ideális választás lehet azok számára, akik nyugalmat keresnek.
ID.389923 ...TOVÁBBI, TÖBBEZRES INGATLAN KÍNÁLAT: www.gdn-ingatlan.hu - GDN azonosító: 389923

Hirdetés feltöltve: 2025. 11. 25. Utoljára módosítva: 2026. 04. 30.

3 szobás téglalakások ára Budapesten

Ebből az összehasonlításból megtudhatod, hogyan viszonyul a lakás ára a környékbeli téglalakások átlagos árához. Ez nem azt jelenti, hogy ennyivel olcsóbb vagy drágább, mint amennyit a lakás ér, hanem hogy ennyivel tér el a környékbeli átlagtól.

Ennek a m² ára
VII. kerület m² ár
Budapest m² ár
1393 e Ft
1554 e Ft 10%
1706 e Ft 18%
Ennek az ára
VII. kerület átlagár
Budapest átlagár
122.55 M Ft m Ft
116.7 m Ft -5%
131.2 m Ft 7%

Az ingatlan elhelyezkedése

Cím: Budapest, VII. kerület, 3. emelet

Eladó ingatlanok a környékről

XI. kerület, Kőérberek, Kánai út 31
Eladó téglalakás

Budapest, XI. kerület

117.49 M Ft
3 szoba
63 m²
VII. kerület
Eladó téglalakás

Budapest, VII. kerület

170 M Ft
6 szoba
104 m²
XIII. kerület, Paszomány utca
Eladó panellakás

Budapest, XIII. kerület

96.8 M Ft
2 + 1 szoba
73 m²
XI. kerület, Kőérberek, Kánai út 31
Eladó téglalakás

Budapest, XI. kerület

160.99 M Ft
3 szoba
74 m²
XI. kerület, Kőérberek, Kánai út 31
Eladó téglalakás

Budapest, XI. kerület

254.99 M Ft
5 szoba
118 m²
XI. kerület, Kőérberek, Kánai út 31
Eladó téglalakás

Budapest, XI. kerület

121.99 M Ft
3 szoba
61 m²
VII. kerület, Zsinagógával szemben
Eladó téglalakás

Budapest, VII. kerület

89 M Ft
2 szoba
62 m²
XI. kerület, Kőérberek, Kánai út 31
Eladó téglalakás

Budapest, XI. kerület

170.99 M Ft
4 szoba
88 m²
VII. kerület
Eladó téglalakás

Budapest, VII. kerület

75 M Ft
1 + 2 szoba
60 m²
VII. kerület
Eladó téglalakás

Budapest, VII. kerület

125 M Ft
4 szoba
118 m²
VII. kerület
Eladó téglalakás

Budapest, VII. kerület

117.3 M Ft
4 szoba
138 m²
XI. kerület, Kőérberek, Kánai út 31
Eladó téglalakás

Budapest, XI. kerület

179.99 M Ft
4 szoba
88 m²
XI. kerület, Kőérberek, Kánai út 31
Eladó téglalakás

Budapest, XI. kerület

101.99 M Ft
2 szoba
49 m²
VII. kerület
Eladó téglalakás

Budapest, VII. kerület

185 M Ft
3 szoba
128 m²
VII. kerület
Eladó téglalakás

Budapest, VII. kerület

155.9 M Ft
3 szoba
129 m²
XI. kerület, Kőérberek, Kánai út 31
Eladó téglalakás

Budapest, XI. kerület

125.99 M Ft
3 szoba
63 m²
XII. kerület, Kissvábhegy, Határőr út
Eladó ikerház

Budapest, XII. kerület

960 M Ft
7 + 3 szoba
399 m²
VII. kerület
Eladó téglalakás

Budapest, VII. kerület

65 M Ft
2 szoba
55 m²
VII. kerület
Eladó téglalakás

Budapest, VII. kerület

105 M Ft
2 szoba
42 m²
VII. kerület
Eladó téglalakás

Budapest, VII. kerület

85 M Ft
2 szoba
77 m²
XI. kerület, Kőérberek, Kánai út 31
Eladó téglalakás

Budapest, XI. kerület

135.49 M Ft
3 szoba
65 m²
XI. kerület, Kőérberek, Kánai út 31
Eladó téglalakás

Budapest, XI. kerület

246.99 M Ft
4 szoba
100 m²
XI. kerület, Kőérberek, Kánai út 31
Eladó téglalakás

Budapest, XI. kerület

127.99 M Ft
3 szoba
55 m²
VII. kerület
Eladó téglalakás

Budapest, VII. kerület

98.9 M Ft
2 szoba
71 m²

Falusi CSOK ingatlanok

Levelek
Eladó családi ház

Levelek

74 M Ft
6 + 1 szoba
190 m²
Bernecebaráti
Eladó családi ház

Bernecebaráti

83.99 M Ft
4 szoba
95 m²
Táborfalva, Tarcsay út
Eladó téglalakás

Táborfalva

33 M Ft
2 + 1 szoba
68 m²
Badacsonytördemic
Eladó családi ház

Badacsonytördemic

90 M Ft
3 szoba
130 m²
Nagyszénás
Eladó családi ház

Nagyszénás

14 M Ft
3 szoba
81 m²
Balatonszemes
Eladó téglalakás

Balatonszemes

199.9 M Ft
4 szoba
90 m²
Ceglédbercel
Eladó családi ház

Ceglédbercel

67 M Ft
3 szoba
97 m²
Somogygeszti
Eladó családi ház

Somogygeszti

38.6 M Ft
3 + 1 szoba
98 m²