Metrodom

Eladó téglalakás
Budapest, VII. kerület, 1. emelet

+ 15 kép 1/18
68 500 000 Ft68.5 M Ft 1 670 732 Ft/m2
2 szoba
41 m2
1. emelet
építés éve:1910

Részletes adatok

Fűtés: Gázkazán
Extrák: Lift
Energetikai besorolás: Nem adta meg a hirdető

Az OTP Bank lakáshitel ajánlataFizetett hirdetés

+36 70 942
Kalmár Edit Virág
Szeged Széchenyi tér 6 - OTP Ingatlanpont Iroda

Érdekel az OTP Bank kedvezményes lakáshitel ajánlata? *

* A kérdésre „Igen” válasz bejelölése esetén, az „Üzenet küldése” gombra kattintva kijelentem, hogy az OTP Bank Nyrt. Adatkezelési tájékoztatójának tartalmát megismertem és tudomásul vettem.

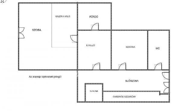
Eladó téglalakás leírása

Budapest VII. kerület Erzsébet város szívében, 41 nm felújított, + 9 nm galériás I. emeleti lakás eladó. A lakás néhány éve teljes felújításon esett át, minden vezeték a falban futva ki lett cserélve. Gáz kombi kazán biztosítja a központi fűtést és melegvizet is. A lakásban hűtő fűtő klíma gondoskodik a mindig temperált hőmérsékletről. A lakás egyedileg legyártott bútorokkal berendezett, minden centimért kihasználva. + 9 nm galéria biztosítja az intim hálóhelyet. A szoba ablakából rálátunk a New York Kávéházra. Totál belváros, jó közlekedéssel. Az Önkormányzat 100 méterre helyezkedik el. Az előszobában még egy infraszauna is helyet kapott, mely megvásárolható. A lakás ára most, február 13-ig 63.500.000,- Ft , azt követően 5 millió ft áremelés lesz!
Amennyiben érdekli a lakás, kérem ne habozzon, Hívjon most. Hivatkozzon az M296568 megbízási számra. Az ingatlan megvásárlásához kedvező hitel is igényelhető, melynek intézéséhez szakszerű segítség áll a leendő vásárló rendelkezésére.

Hirdetés feltöltve: 2025. 11. 20.

2 szobás téglalakások ára Budapesten

Ebből az összehasonlításból megtudhatod, hogyan viszonyul a lakás ára a környékbeli téglalakások átlagos árához. Ez nem azt jelenti, hogy ennyivel olcsóbb vagy drágább, mint amennyit a lakás ér, hanem hogy ennyivel tér el a környékbeli átlagtól.

Ennek a m² ára
VII. kerület m² ár
Budapest m² ár
1671 e Ft
1596 e Ft -5%
1682 e Ft 1%
Ennek az ára
VII. kerület átlagár
Budapest átlagár
68.5 M Ft m Ft
83.1 m Ft 18%
90.8 m Ft 25%

Az ingatlan elhelyezkedése

Cím: Budapest, VII. kerület, 1. emelet

Eladó ingatlanok a környékről

Eladó téglalakás
Eladó téglalakás

II. kerület

142.9 M Ft
3 szoba
61 m2
Eladó családi ház
Eladó családi ház

XII. kerület

1490 M Ft
6 szoba
400 m2
Eladó téglalakás
Eladó téglalakás

XI. kerület

109 M Ft
2 szoba
70 m2
Eladó téglalakás
Eladó téglalakás

VII. kerület

155.9 M Ft
3 szoba
129 m2
Eladó panellakás
Eladó panellakás

XXI. kerület

53.8 M Ft
2 szoba
48 m2
Eladó téglalakás
Eladó téglalakás

VII. kerület, Külső Erzsébetváros, Izabella utca

89 M Ft
3 szoba
106 m2
Eladó téglalakás
Eladó téglalakás

VII. kerület

125 M Ft
3 szoba
128 m2
Eladó családi ház
Eladó családi ház

XI. kerület

127 M Ft
3 szoba
120 m2
Eladó téglalakás
Eladó téglalakás

XVIII. kerület

27 M Ft
0 + 2 szoba
36 m2
Eladó téglalakás
Eladó téglalakás

VII. kerület, Külső Erzsébetváros, Rottenbiller utca

95 M Ft
5 szoba
108 m2
Eladó téglalakás
Eladó téglalakás

VII. kerület

105 M Ft
2 szoba
42 m2
Eladó téglalakás
Eladó téglalakás

VII. kerület, Külső Erzsébetváros, Dohány utca

119.9 M Ft
2 szoba
55 m2
Eladó téglalakás
Eladó téglalakás

VII. kerület, Külső Erzsébetváros, Damjanich utca

179 M Ft
7 szoba
157 m2
Eladó panellakás
Eladó panellakás

IX. kerület

65.929 M Ft
2 szoba
41 m2
Eladó téglalakás
Eladó téglalakás

VIII. kerület

64.9 M Ft
1 szoba
43 m2
Eladó téglalakás
Eladó téglalakás

XI. kerület

104 M Ft
3 szoba
68 m2
Eladó téglalakás
Eladó téglalakás

VII. kerület

124.9 M Ft
3 szoba
74 m2
Eladó téglalakás
Eladó téglalakás

II. kerület

105 M Ft
2 szoba
53 m2
Eladó téglalakás
Eladó téglalakás

X. kerület

75.9 M Ft
2 szoba
55 m2
Eladó téglalakás
Eladó téglalakás

IX. kerület

112 M Ft
2 szoba
56 m2
Eladó téglalakás
Eladó téglalakás

VIII. kerület

92 M Ft
3 szoba
59 m2
Eladó téglalakás
Eladó téglalakás

XIII. kerület

110 M Ft
2 szoba
50 m2
Eladó téglalakás
Eladó téglalakás

VII. kerület, Külső Erzsébetváros, Dohány utca

124.5 M Ft
2 szoba
84 m2
Eladó téglalakás
Eladó téglalakás

IX. kerület

195 M Ft
4 szoba
99 m2

Falusi CSOK ingatlanok

Eladó családi ház
Eladó családi ház

Emőd

31.99 M Ft
2 szoba
75 m2
Eladó családi ház
Eladó családi ház

Pétfürdő

48 M Ft
2 szoba
55 m2
Eladó családi ház
Eladó családi ház

Ábrahámhegy

139 M Ft
4 szoba
106 m2
Eladó családi ház
Eladó családi ház

Dombrád

8 M Ft
2 szoba
85 m2
Eladó családi ház
Eladó családi ház

Pannonhalma

159 M Ft
5 szoba
240 m2
Eladó családi ház
Eladó családi ház

Pápateszér

28.99 M Ft
4 + 1 szoba
151 m2
Eladó családi ház
Eladó családi ház

Újszilvás

20.9 M Ft
3 szoba
66 m2
Eladó családi ház
Eladó családi ház

Vilonya

71.9 M Ft
5 szoba
105 m2